
Omschrijving
WANT TO VIEW? Please request a viewing by Funda, we do not schedule by phone. Requests are called based on the order of receipt. By many requests, it may be that it is not possible to schedule a viewing.
WILT U BEZICHTIGEN? Vraag een bezichtiging aan via Funda, telefonisch wordt er niet ingepland. Aanvragen worden gebeld op basis van volgorde binnenkomst. Bij veel aanvragen kan het zijn dat er geen mogelijkheid meer is om een bezichtiging in te plannen.
Let op: Dit betreft een bieden vanaf prijs!
Deze goed onderhouden speelse 3-kamer maisonnette met balkon op het zonnige zuidwesten ligt in de populaire wijk Filmwijk Zuid. De maisonnette is door de twee slaapkamers zeer geschikt voor starters of jonge gezinnen. De woning ligt gelegen aan een straat die is vernoemd naar Joris Ivens. Joris Ivens was een Nederlandse filmregisseur en filmmaker met name gericht op documentaires.
Bouwjaar 1995, woonopp. 70 m2, energielabel A.
Zeer betrokken en actieve VVE, makkelijk benaderbaar in het geval van vragen.
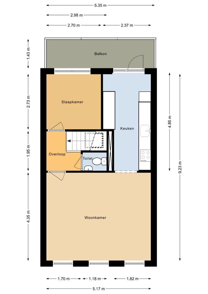
Entree:
- Centrale hal met bellentableau met intercomsysteem en de brievenbussen;
- Het appartement is tevens voorzien van berging deze is buitenom bereikbaar;
- Trappenhuis naar de 1e verdieping waar zich de entree bevindt van het appartement.
1e verdieping:
- Entree/hal is ruim opgezet en vanuit hier zijn er diverse ruimtes te betreden;
- Master bedroom en de badkamer. Ook is hier de meterkast te vinden;
- Gloednieuwe badkamer met douchecabine, wastafel op meubel, vrijhangend toilet, betegeling tot 2,10 meter hoog en wasmachine-aansluiting;
- De master bedroom van circa 12m² bevindt zich aan de voorzijde van het appartement.
2e verdieping:
- Vaste trap naar de 2e verdieping van het appartement;
- Op deze verdieping is de tweede slaapkamer van circa 7m² aan de voorzijde;
- Separaat toilet;
- Vanuit de overloop stap je tevens de ruime woonkamer in;
- De woonkamer is voorzien van veel lichtinval door de grote ramen aan de achterzijde van de woning;
- De moderne keuken is opgesteld in lichte kleur en is voorzien van inductie kookplaat, oven, vaatwasser, koel-/vries combinatie, spoelbak en RVS-afzuigkap;
- In de keuken bevindt zich tevens een tweede keukenblok met voldoende opbergruimte en werkruimte;
- Vanuit de keuken toegang tot het ruime zonnige balkon op het zuidwesten. Een heerlijk plekje waar je tot in de late uurtjes nog kan zitten en genieten.
Het ruime appartement is goed bereikbaar met zowel de auto als het openbaar vervoer. Je kunt je auto gratis parkeren op de openbare parkeerplekken voor het complex. De dichtstbijzijnde bushalte ligt op circa 400m van het appartement. Met circa 5 minuten fietsen bereik je tevens Almere-Centrum. Vanaf station Almere Centrum heb je alle belangrijke treinverbindingen in diverse richtingen zoals: Amsterdam, Hilversum, Schiphol, Leiden, Lelystad, Groningen etc. De uitvalsweg A6 richting Amsterdam en Lelystad zijn goed met de auto te bereiken in circa 5 minuten.
BIJZONDERHEDEN:
• 70 m2: 3 kamer appartement met 2 slaapkamers;
• Filmwijk Zuid, Almere Stad: Perfect gelegen ten opzichte van voorzieningen;
• Eigen berging op de begane grond, balkon op het zonnige zuidwesten;
• Gloednieuwe badkamer en moderne inbouwkeuken met nodige apparatuur;
• Gasloze woning met stadsverwarming, energielabel A;
• VVE kosten: circa €157 per maand.
Oplevering: in overleg
Kenmerken
Overdracht
- Laatste vraagprijs
- € 325.000 kosten koper
- Vraagprijs per m²
- € 4.577
- Status
- Verkocht
- Bijdrage VvE
- € 157,00 per maand
Bouw
- Soort appartement
- Maisonnette (appartement)
- Soort bouw
- Bestaande bouw
- Bouwjaar
- 1995
- Specifiek
- Gedeeltelijk gestoffeerd
- Soort dak
- Plat dak
Oppervlakten en inhoud
- Gebruiksoppervlakten
- Wonen
- 71 m²
- Gebouwgebonden buitenruimte
- 8 m²
- Externe bergruimte
- 5 m²
- Inhoud
- 222 m³
Indeling
- Aantal kamers
- 3 kamers (2 slaapkamers)
- Aantal badkamers
- 1 badkamer en 1 apart toilet
- Badkamervoorzieningen
- Douche, toilet, en wastafelmeubel
- Aantal woonlagen
- 2 woonlagen
- Voorzieningen
- Mechanische ventilatie en TV kabel
- Gelegen op
- 3e woonlaag
Energie
- Energielabel
- Isolatie
- Dakisolatie, dubbel glas, muurisolatie, vloerisolatie en volledig geïsoleerd
- Verwarming
- Stadsverwarming
- Warm water
- Stadsverwarming
Kadastrale gegevens
- ALMERE U 6578
- Kadastrale kaart
- Eigendomssituatie
- Volle eigendom
Buitenruimte
- Ligging
- Aan rustige weg, in woonwijk en vrij uitzicht
- Balkon/dakterras
- Dakterras aanwezig
Bergruimte
- Schuur/berging
- Inpandig
Parkeergelegenheid
- Soort parkeergelegenheid
- Openbaar parkeren
VvE checklist
- Inschrijving KvK
- Ja
- Jaarlijkse vergadering
- Ja
- Periodieke bijdrage
- Ja (€ 157,00 per maand)
- Reservefonds aanwezig
- Ja
- Onderhoudsplan
- Ja
- Opstalverzekering
- Ja
Foto's 34
© 2001-2026 funda

































