
Omschrijving
Hierbij bieden wij een goed onderhouden en sfeervolle bovenwoning (2 kamer appartement) aan. Het appartement is gelegen in Almere Buiten en "Ideaal voor starters." Het appartement heeft een woonoppervlakte van ca. 46 m2, 1 slaapkamer, lichte woonkamer met een zonnig balkon op het zuidwesten, separate berging en gelegen aan het Meridiaanpark.
Het appartement is erg rustig gelegen tegenover een singel en het Meridiaanpark. Dit is het bos tussen de Molenbuurt en de Seizoenenbuurt. Er is dus veel groen, rust, water en ruimte in de buurt van het appartement. levens ligt het appartement op loopafstand van het centrum van Almere Buiten met winkels, supermarkten, restaurants en het NS-station met een directe treinverbinding richting Amsterdam en Lelystad. De uitvalswegen (A6 en A27) en de recreatievoorzieningen, waaronder de Oostvaardersplassen, zijn binnen een paar minuten te bereiken.
Indeling begane grond:
De eigen berging voorzien van elektra is gelegen om de hoek van het complex.
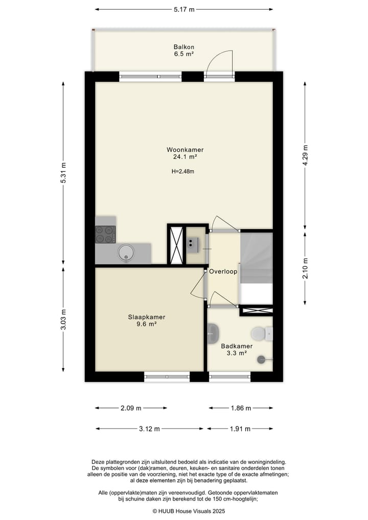
Middels eigen entree is de hal met meterkast en trap naar de eerste verdieping bereikbaar.
1e verdieping:
Vanuit de overloop bereikt u de slaapkamer, badkamer en woonkamer. De lichte woonkamer is goed ingedeeld met een woongedeelte en een open keuken. Het balkon over de hele breedte is op het Zuidwesten georiënteerd en te bereiken vanuit de woonkamer. De keuken is voorzien van een koelkast, kookplaat met afzuigkap, magnetron en oven. verder heeft de keuken voldoende bergruimte in onder en bovenkasten. De slaapkamer heeft voldoende ruimte een 2-persoons bed en een kledingkasten. De slaapkamer is aan de voorzijde van het appartement met uitzicht op de singel en het Meridiaanpark. De badkamer is voorzien van een douchehoek, toilet, wastafel, wasmachine aansluiting en een raam voor extra ventilatie. Zowel de wanden als de vloeren (laminaat) zijn netjes afgewerkt.
Bijzonderheden:
- LET OP! Het betreft een bieden vanaf prijs;
- lichte woonkamer met open keuken;
- Zonnig balkon op zuidwesten;
- Cv-ketel 2012 eigendom (warme lucht);
- Voldoende algemene parkeerplaatsen aanwezig;
- Laadpaal voor een elektrische auto voor de deur beschikbaar;
- Een actieve en goed geregelde VvE, maandelijkse kosten € 156,-;
- Oplevering ion overleg.
Bezichtiging aanvragen?
Aanmelden voor een bezichtiging kan via Funda of onze website.
De aanvragen worden op volgorde van binnenkomst behandeld.
Kenmerken
Overdracht
- Laatste vraagprijs
- € 235.000 kosten koper
- Vraagprijs per m²
- € 5.109
- Status
- Verkocht
- Bijdrage VvE
- € 156,00 per maand
Bouw
- Soort appartement
- Bovenwoning (appartement)
- Soort bouw
- Bestaande bouw
- Bouwjaar
- 1985
- Soort dak
- Plat dak
Oppervlakten en inhoud
- Gebruiksoppervlakten
- Wonen
- 46 m²
- Gebouwgebonden buitenruimte
- 7 m²
- Externe bergruimte
- 5 m²
- Inhoud
- 161 m³
Indeling
- Aantal kamers
- 2 kamers (1 slaapkamer)
- Aantal badkamers
- 1 badkamer
- Badkamervoorzieningen
- Douche, toilet, en wastafel
- Aantal woonlagen
- 1 woonlaag
- Voorzieningen
- Mechanische ventilatie
- Gelegen op
- 2e woonlaag
Energie
- Energielabel
- C
- Verwarming
- Cv-ketel en heteluchtverwarming
- Warm water
- Cv-ketel
- Cv-ketel
- Gas gestookt combiketel uit 2012, eigendom
Kadastrale gegevens
- ALMERE N 5684
- Kadastrale kaart
- Eigendomssituatie
- Volle eigendom
Buitenruimte
- Ligging
- Aan park, aan rustige weg, in woonwijk en vrij uitzicht
- Balkon/dakterras
- Balkon aanwezig
Bergruimte
- Schuur/berging
- Box
- Voorzieningen
- Elektra
Parkeergelegenheid
- Soort parkeergelegenheid
- Openbaar parkeren
VvE checklist
- Inschrijving KvK
- Ja
- Jaarlijkse vergadering
- Ja
- Periodieke bijdrage
- Ja (€ 156,00 per maand)
- Reservefonds aanwezig
- Ja
- Onderhoudsplan
- Nee
- Opstalverzekering
- Ja
Foto's 26
© 2001-2025 funda

























