
Omschrijving
Unieke, duurzame twee-onder-een-kapwoningen in Amersfoort!
Deze fraai vormgegeven 2-onder-1-kap-woning wordt binnenkort gerealiseerd op een zeer aantrekkelijke plek aan de Roerstraat, in de Amersfoortse wijk "Soesterkwartier".
Het Soesterkwartier is de laatste tijd erg populair en dat is niet zonder reden. De wijk heeft een uitstekende ligging ten opzichte van het Centraal-Station, het Amersfoortse Centrum en uitvalswegen richting A1 of A28. Daarnaast vind je alle dagelijkse voorzieningen in de directe omgeving.
Het jaren 30 ontwerp van de woningen sluit naadloos aan bij de omliggende woningen. Met de keuze in materialen en kleuren is er door de architect een uitstraling gecreëerd, waardoor een prachtige eenduidig straatbeeld ontstaat. Het roodbruine metselwerk en de rode dakpannen sluiten aan op het kleurenpallet van de omliggende woningen.
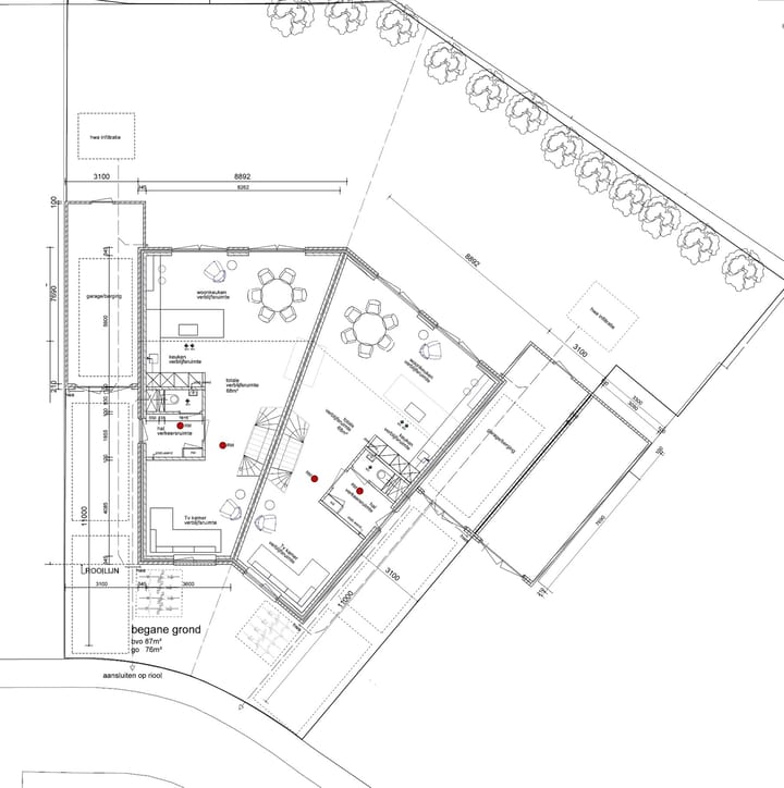
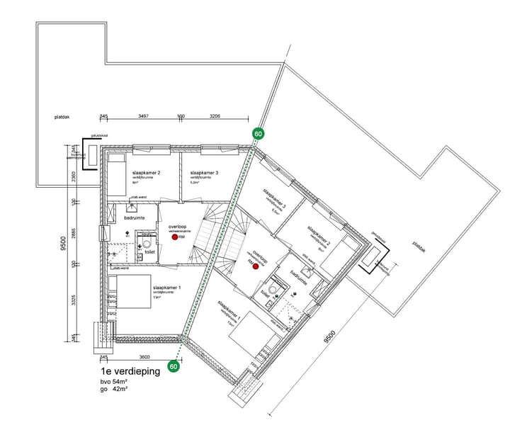
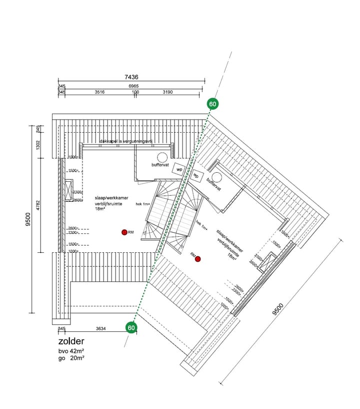
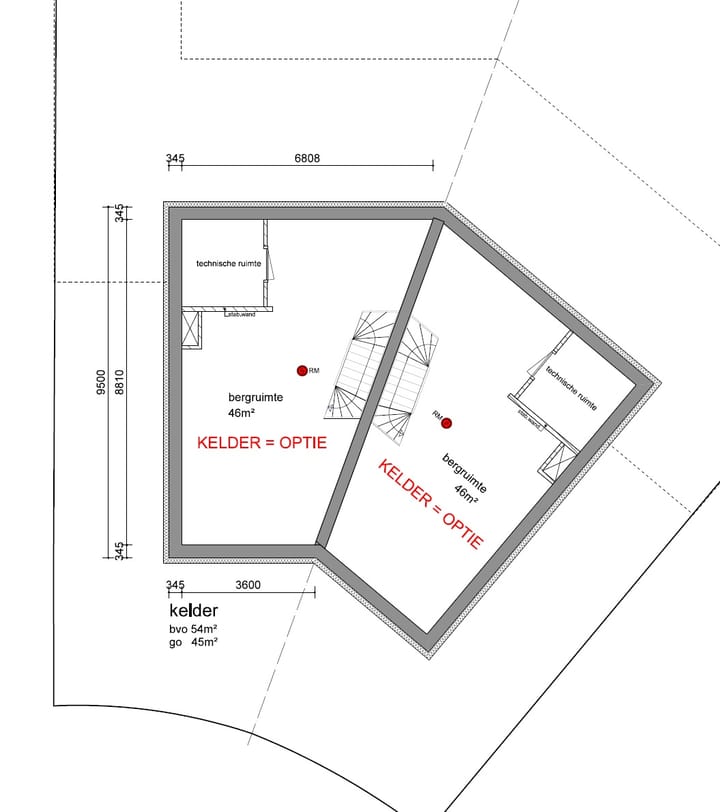
De woningen hebben verrassend veel ruimte. Het totale woonoppervlak van 138 m2 is verdeeld over een woonkamer én een woonkeuken, 4 slaapkamers en een badkamer. Voldoende ruimte om zelfs een tweede badkamer te realiseren. Daarnaast wordt een garage van 24m2 aangebouwd en is het mogelijk een optionele kelder van 45m2 te realiseren. De kelder is ideaal te gebruiken als extra opslag of wijnkelder.
Ook rondom de woningen zul je veel ruimte ervaren. De oprit aan de voorzijde naast de woning biedt de mogelijkheid om 2 auto’s te parkeren op eigen terrein en achter de woningen ligt een riante tuin van ca. 10m diep en 13m breed.
Door de ligging op het westen en dankzij de positionering ten opzichte van de omliggende woningen heb je hier nagenoeg de hele dag zon.
Naast de vele ruimte is er veel aandacht besteed aan duurzaamheid. De woningen worden gebouwd volgens de BENG-Norm (Bijna Energieneutraal Gebouw) en beschikken over een warmtepomp, zonnepanelen, vloerverwarming op elke verdieping en hoge isolatiewaarde.
Door op het dak van de garage 10 extra zonnepanelen te plaatsen kunnen de woningen nog duurzamer gemaakt worden. De gemiddelde energiebehoefte komt dan uit op slechts € 90,- per maand.
Niet voor niets krijgen de woningen een energielabel A+++.
Naar verwachting start de bouw van de woningen in het tweede kwartaal van 2024 en in het eerste kwartaal van 2025 kun je je nieuwe woning betrekken.
Benieuwd of deze woning financieel binnen de mogelijkheden past? Laat je gegevens achter en onze hypotheekadviseur neemt graag contact met je op voor een vrijblijvende toets.
Kenmerken
Overdracht
- Laatste vraagprijs
- € 850.000 vrij op naam
- Vraagprijs per m²
- € 6.159
- Status
- Verkocht
Bouw
- Bouwjaar
- Na 2020
- Soort woonhuis
- Eengezinswoning, 2-onder-1-kapwoning
- Soort bouw
- Nieuwbouw
- Soort dak
- Samengesteld dak bedekt met pannen
- Keurmerken
- Woningborg Garantiecertificaat
Oppervlakten en inhoud
- Gebruiksoppervlakten
- Wonen
- 138 m²
- Overige inpandige ruimte
- 24 m²
- Perceel
- 322 m²
- Inhoud
- 565 m³
Indeling
- Aantal kamers
- 5 kamers (4 slaapkamers)
- Aantal badkamers
- 1 badkamer en 2 aparte toiletten
- Badkamervoorzieningen
- Douche, vloerverwarming, wastafel, en wastafelmeubel
- Aantal woonlagen
- 3 woonlagen en een kelder
- Voorzieningen
- Dakraam, glasvezelkabel, mechanische ventilatie, en zonnepanelen
Energie
- Energielabel
- A+++
- Isolatie
- Eco-bouw en volledig geïsoleerd
- Verwarming
- Gehele vloerverwarming en warmtepomp
- Warm water
- Centrale voorziening en elektrische boiler
Kadastrale gegevens
- AMERSFOORT X 0000
- Kadastrale kaart
- Oppervlakte
- 322 m²
- Eigendomssituatie
- Volle eigendom
Buitenruimte
- Ligging
- In woonwijk
- Tuin
- Achtertuin, voortuin en zijtuin
- Achtertuin
- 178 m² (9,90 meter diep en 18,00 meter breed)
- Ligging tuin
- Gelegen op het westen
Garage
- Soort garage
- Aangebouwde stenen garage
- Capaciteit
- 1 auto
- Voorzieningen
- Elektra
- Isolatie
- Volledig geïsoleerd
Parkeergelegenheid
- Soort parkeergelegenheid
- Op eigen terrein
Foto's 9
© 2001-2025 funda








