
Omschrijving
*** See english version below ***
Aan het Westelijk Halfrond 409, op de 11e verdieping, ligt dit keurig afgewerkte appartement op een ideale locatie. De woning beschikt over een mooie keuken met kookeiland, een luxe badkamer, 3 ruime slaapkamers, 2 grote balkons en voldoende bergruimte. Wordt dit straks jouw nieuwe thuis?
INDELING
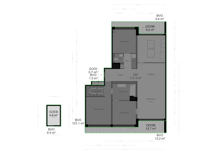
Houd je van ruimte en licht? Dan zal je blij verrast zijn als je hier voor het eerst binnenkomt. Via de royale entreehal kom je direct in de woonkamer die maar liefst 8 meter lang is en 4 meter breed. Door de grote raampartij over de hele breedte, is het mooi licht in huis. En dan dat uitzicht… Het balkon strekt zich uit over de gehele breedte van het appartement en ligt op het westen. Hier heb je middag- en avondzon. Doordat je hier op de 11e verdieping woont, heb je heel veel privacy.
De keuken bevindt zich in een aparte ruimte aan de oostkant. Ook hier heb je een balkon en geniet je van koffie in de ochtendzon. De moderne keuken met kookeiland is voorzien van alle gemakken en heel veel kastruimte. De Amerikaanse koelkast is een echte blikvanger.
Dit appartement heeft 3 slaapkamers, waarvan er 2 directe toegang hebben tot de badkamer. 1 van deze kamers heeft ook nog een inloopkast. De 3e slaapkamer bevindt zich aan de kant van de keuken. In de hal naar de 3e slaapkamer is veel praktische opbergruimte gemaakt, waar ook plaats is voor de wasmachine en de droger.
De badkamer is luxe en compleet. Je hebt een ligbad met whirlpool en op het brede wastafelmeubel staan 2 kommen. De spiegelkast en zwevende kast naast het bad zijn van hetzelfde hout gemaakt. Leuk detail bij het ligbad zijn de nisjes met licht. Het toilet is separaat en bevindt zich in de hal bij de 3e slaapkamer.
OMGEVING
De ligging van het Westelijke Halfrond is ideaal. Enerzijds ben je zo op de snelweg (A9 en A10), anderzijds fiets je in 5 minuten naar het mooie, zeer complete Amstelveense Stadshart.
Verder stoppen de bus en de tram voor de deur. Zin in meer? Amsterdam Zuid en de Zuidas bereik je met een kwartier fietsen. Het fijne aan Amstelveen is dat er naast goede voorzieningen en leuke horeca ook heel veel natuur is. De Middelpolder ligt praktisch om de hoek en dan is er ook nog het Amsterdamse Bos met talloze sport- en recreatiemogelijkheden. Voor je dagelijkse boodschappen hoef je trouwens niet ver. Je neemt de lift naar beneden en met een minuut lopen sta je in Albert Heijn.
BIJZONDERHEDEN
- Luxe en licht apartment met circa 117 m² woonoppervlakte (NEN2580 gemeten)
- Gelegen op de 11e verdieping (van 15) dus prachtig, vrij uitzicht
- Drie volwaardig slaapkamers
- Energielabel B – comfortabel en energiezuinig
- Woonkeuken met kookeiland en veel bergruimte.
- Badkamer met separaat toilet
- Dubbel glas
- Professioneel beheerde actieve en gezonde VVE, MJOP aanwezig
- Servicekosten €259,61 per maand (exclusief voorschot stookkosten €291,00)
- 2 balkons op het westen en oosten
- Ruime privé berging voorzien van elektra op de begane grond
- Parkeren voor de deur voor vergunninghouders
- Gelegen op eigen grond dus geen erfpacht
- Oplevering in overleg
Bent u op zoek naar een royaal, licht en comfortabel appartement op een centrale en groene locatie in Amstelveen? Neem dan snel contact met ons op voor een bezichtiging – u bent van harte welkom!
De verkoopinformatie is met grote zorgvuldigheid samengesteld doch voor de juistheid van de inhoud kunnen wij niet instaan en er kunnen derhalve geen rechten aan worden ontleend. De inhoud is puur informatief en mag niet worden beschouwd als een aanbod. Daar waar gesproken wordt over inhoud, oppervlakten of afmetingen moeten deze worden beschouwd als indicatief en als circa maten. U dient als koper zelf onderzoek te verrichten naar zaken die voor u van belang zijn. Wij raden u in dat verband aan uw eigen NVM-makelaar in te schakelen.
----------------------------------------------------
At Westelijk Halfrond 409, on the 11th floor, is this nicely finished apartment in an ideal location. The property features a beautiful kitchen with cooking island, a luxurious bathroom, 3 spacious bedrooms, 2 large balconies and plenty of storage space. Will this soon be your new home?
LAYOUT
Do you love space and light? Then you will be pleasantly surprised when you first enter here. The spacious entrance hall leads directly into the living room, which is no less than 8 metres long and 4 metres wide. Thanks to the large windows across the entire width, the house is beautifully light. And then that view... you have the ultimate view. The balcony stretches the entire width of the apartment and faces west. Here you have afternoon and evening sun. Because you live here on the 11th floor, you have a lot of privacy.
The kitchen is in a separate room on the east side. Here, too, you have a balcony and enjoy coffee in the morning sun. The modern kitchen with cooking island has all the conveniences and lots of cupboard space. The American fridge is a real eye-catcher.
This apartment has 3 bedrooms, 2 of which have direct access to the bathroom. 1 of these bedrooms also has a walk-in closet. The 3rd bedroom is on the kitchen side. The hallway to the 3rd bedroom has plenty of practical storage space, where there is also room for the washing machine and dryer.
The bathroom is luxurious and complete. You have a whirlpool bathtub and on the wide washbasin stand 2 bowls. The mirror cabinet and floating cabinet next to the bath are made of the same wood. Nice detail near the bath are the recesses with light. The toilet is separate and is located in the hall near the 3rd bedroom.
ENVIRONMENT
The location of Westelijk Halfrond is ideal. On the one hand you are on the motorway (A9 and A10) in no time, on the other hand you cycle in 5 minutes to the beautiful, very complete Amstelveen city centre.
Furthermore, the bus and tram stop in front of the door. Fancy more? Amsterdam Zuid and the Zuidas can be reached in 15 minutes by bike. The great thing about Amstelveen is that besides good amenities and nice restaurants, there is also lots of nature. The Middelpolder is practically around the corner and then there is the Amsterdamse Bos with countless sports and recreational possibilities. For your daily shopping, you don't have to go far, anyway. You take the lift down and with a minute's walk you are at Albert Heijn.
PARTICULARS
- Luxurious and light apartment with approximately 117 m² living space (NEN2580 measured)
- Located on the 11th floor (of 15) so beautiful, unobstructed view
- Three spacious bedrooms
- Energy label B - comfortable and energy efficient
- Living kitchen with cooking island and lots of storage space.
- Bathroom with separate toilet
- Double glazing
- Professionally managed active and healthy VVE, MJOP available
- Service costs €259.61 per month (excluding advance heating costs €291.00)
- 2 balconies facing west and east
- Spacious private storage room with electricity on the ground floor
- Parking in front of the door for permit holders
- Located on private land so no leasehold
- Delivery in consultation
Are you looking for a spacious, bright, and comfortable apartment in a central and green location in Amstelveen? Contact us today to arrange a viewing – we’d love to welcome you!
The sales information has been compiled with great care; however, we cannot guarantee its accuracy, and no rights can be derived from it. The content is purely informative and should not be considered an offer. All mentioned sizes and measurements are indicative. As a buyer, you are advised to conduct your own research on matters of importance. We recommend hiring your own NVM real estate agent.
Kenmerken
Overdracht
- Laatste vraagprijs
- € 575.000 kosten koper
- Vraagprijs per m²
- € 4.915
- Status
- Verkocht
- Bijdrage VvE
- € 259,61 per maand
Bouw
- Soort appartement
- Portiekflat (appartement)
- Soort bouw
- Bestaande bouw
- Bouwjaar
- 1967
- Soort dak
- Samengesteld dak bedekt met bitumineuze dakbedekking
Oppervlakten en inhoud
- Gebruiksoppervlakten
- Wonen
- 117 m²
- Overige inpandige ruimte
- 1 m²
- Gebouwgebonden buitenruimte
- 22 m²
- Externe bergruimte
- 5 m²
- Inhoud
- 376 m³
Indeling
- Aantal kamers
- 4 kamers (3 slaapkamers)
- Aantal badkamers
- 1 badkamer en 1 apart toilet
- Badkamervoorzieningen
- Douche, jacuzzi, ligbad, wastafel, en wastafelmeubel
- Aantal woonlagen
- 1 woonlaag
- Voorzieningen
- Lift, mechanische ventilatie, natuurlijke ventilatie, en TV kabel
- Gelegen op
- 11e woonlaag
Energie
- Energielabel
- B
- Isolatie
- Dubbel glas
- Verwarming
- Blokverwarming
- Warm water
- Centrale voorziening en gasboiler
Kadastrale gegevens
- AMSTELVEEN I 4428
- Kadastrale kaart
- Eigendomssituatie
- Volle eigendom
Buitenruimte
- Ligging
- Aan rustige weg, in woonwijk en vrij uitzicht
- Balkon/dakterras
- Balkon aanwezig
Bergruimte
- Schuur/berging
- Box
- Voorzieningen
- Elektra
Parkeergelegenheid
- Soort parkeergelegenheid
- Betaald parkeren, openbaar parkeren en parkeervergunningen
VvE checklist
- Inschrijving KvK
- Ja
- Jaarlijkse vergadering
- Ja
- Periodieke bijdrage
- Ja (€ 259,61 per maand)
- Reservefonds aanwezig
- Ja
- Onderhoudsplan
- Ja
- Opstalverzekering
- Ja
Foto's 52
© 2001-2025 funda



















































