
Omschrijving
*ENGLISH VERSION BELOW*
Sfeervol en licht wonen in Amsterdam-West: Instapklaar appartement van ca. 73,4 m² met twee ruime slaapkamers en een zonnig balkon op het zuidwesten.
Aan de statige Admiraal de Ruijterweg, midden in het populaire stadsdeel Bos en Lommer, ligt dit charmante en lekker lichte appartement op de tweede verdieping. De woning combineert het comfort van modern wonen met de charme van een karakteristiek jaren ’30-pand. Dankzij de centrale ligging in Amsterdam-West geniet je hier van de dynamiek van de stad én van de rust van omliggende parken.
LIGGING
Het appartement bevindt zich op een ideale locatie, op loopafstand van het winkelcentrum aan het Bos en Lommerplein, diverse supermarkten, gezellige cafés en eetgelegenheden. Ook het Westerpark en het Erasmuspark liggen dichtbij, net als de culturele hotspots van de Westergasfabriek. De bereikbaarheid is uitstekend: met de auto ben je zo op de Ring A10 (afslag S104/S105) en bij luchthaven Schiphol. Ook Station Sloterdijk en diverse tram- en busverbindingen zijn snel bereikbaar. Of je nu naar het centrum wilt of juist de stad uit, hier woon je precies goed.
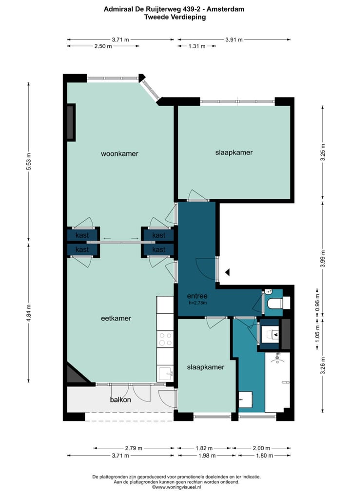
INDELING
De woning is heerlijk ruim en licht, met een doorzonwoonkamer die is voorzien van een charmante erker aan de voorzijde, authentieke en-suitekasten met schuifdeuren en openslaande deuren naar het balkon aan de achterzijde. Het balkon ligt op het zuidwesten, waardoor je hier tot in de avond van de zon kunt genieten. Aan de voorzijde bevindt zich een ruime slaapkamer. De tweede slaapkamer is gelegen aan de achterzijde en kijkt uit op de rustige binnentuin. De badkamer is modern afgewerkt en voorzien van een ligbad met douchegedeelte, een wastafel en een aparte kast voor de wasmachine en de combiketel. Daarnaast is er een aparte WC. De moderne open keuken aan de achterzijde beschikt over inbouwapparatuur, een Quooker en is aansluitend aan het eetgedeelte.
Dit appartement combineert ruimte, licht en een geweldige ligging tot een bijzonder fijne plek om te wonen. Of je nu starter bent, een stel of een stadsgenieter die op zoek is naar comfort in een levendige buurt – deze woning heeft alles in huis!
BIJZONDERHEDEN
- Woonoppervlak 73,4 m² conform NEN 2580 meetrapport;
- Twee volwaardige en ruime slaapkamers;
- Moderne keuken uit 2022 met hoogwaardige inbouwapparatuur en een Quooker;
- Balkon op het zuidwesten;
- Dubbel glas;
- Energielabel C;
- Aparte WC;
- Ruime badkamer met daglicht;
- Pand in 2008 gerenoveerd;
- Appartement in 2018 updates gehad (vloer, schilderwerk);
- CV Ketel (Remeha) uit 2021 in eigendom;
- Kleinschalige, gezonde VvE (met reserve en MJOP);
- Maandelijkse VvE bijdrage: €50,-;
- Erfpacht (jaarlijkse canon €383,58 - huidig tijdvak t/m 01-08-2049/ daarna is reeds de overstap gemaakt naar eeuwigdurende erfpacht onder gunstige voorwaarden/ jaarlijkse canon €562,59 bij vastzetten);
- De niet zelfbewoning - en ouderdomsclausule zijn van toepassing;
- Koopakte volgens ring model Amsterdam, bij een Amsterdamse notaris naar keuze kopers;
- Oplevering in overleg (kan snel).
---------------------------------------------------------------------------------------------------------------------
Ready-to-move-in apartment of approx. 73,4 m² with two spacious bedrooms and a sunny balcony facing southwest.
This charming wonderfully bright apartment on the second floor is located on the stately Admiraal de Ruijterweg, in the middle of the popular Bos en Lommer district. The house combines the comfort of modern living with the charm of a characteristic 1930s building. Thanks to its central location in Amsterdam-West, you can enjoy the dynamics of the city as well as the tranquility of the surrounding green parks.
LOCATION
The apartment is ideally located, within walking distance of the shopping centre at Bos en Lommerplein, various supermarkets, cosy cafés and eateries. The Westerpark and Erasmuspark are also close by, as are the cultural hotspots of the Westergasfabriek. The accessibility is excellent: by car you can quickly reach the Ring A10 (exit S104/S105) abd Schiphol Airport. Sloterdijk Station and various tram and bus connections are also quickly accessible. Whether you want to go to the city centre or get out of the city, this is the perfect place to live.
LAYOUT
This house is wonderfully spacious and light, with a living room with a charming bay window at the front and patio doors to the balcony at the rear. Autenthic room divider with storage and sliding doors and patio doors to the balcony at the rear. The balcony faces southwest, so you can enjoy the sun here until the evening. There is a spacious bedroom at the front and a second bedroom located at the back overlooking the quiet and green innergarden. The bathroom has a modern finish and is equipped with a bath with shower, a sink and a separate cupboard for the washing machine and the combi boiler. There is also a separate toilet. The modern open kitchen at the rear has built-in appliances, a Quooker and is adjacent to the dining area.
This apartment combines space, light and a great location into a particularly nice place to live. Whether you are a starter, a couple or a city lover looking for comfort in a lively neighbourhood - this house has everything!
DETAILS
- Living area 73,4 m² in accordance with NEN 2580 measurement report;
- Two full and spacious bedrooms;
- Modern kitchen from 2022 with high-quality built-in appliances and a Quooker;
- Balcony facing southwest;
- Double glazing;
- Energy label C;
- Separate toilet;
- Spacious bathroom with daylight;
- Building renovated in 2008;
- Apartment updated in 2018 (floor, painting);
- CV boiler (Remeha) from 2021 in ownership;
- Small-scale, healthy VvE (with reserve and MJOP);
- Monthly VvE contribution: €50,-; - Leasehold (annual fee €383.58 - current period until 01-08-2049 / after which the switch has already been made to perpetual leasehold under favorable conditions / annual fee €562.59 when fixed);
- The non-self-occupation and old age clauses apply;
- Purchase deed according to ring model Amsterdam, at an Amsterdam notary of the buyers' choice;
- Delivery in consultation (can be quick).
DISCLAIMER
Deze informatie is door ons met de nodige zorgvuldigheid samengesteld. Onzerzijds wordt echter geen enkele aansprakelijkheid aanvaard voor enige onvolledigheid, onjuistheid of anderszins, dan wel de gevolgen daarvan. Koper heeft zijn eigen onderzoek plicht naar alle zaken die voor hem of haar van belang zijn. Met betrekking tot deze woning is de makelaar adviseur van verkoper. Wij adviseren u een deskundige (NVM-)makelaar in te schakelen die u begeleidt bij het aankoopproces. Indien u specifieke wensen heeft omtrent de woning, adviseren wij u deze tijdig kenbaar te maken aan uw aankopend makelaar en hiernaar zelfstandig onderzoek te (laten) doen. Indien u geen deskundige vertegenwoordiger inschakelt, acht u zich volgens de wet deskundige genoeg om alle zaken die van belang zijn te kunnen overzien. Van toepassing zijn de NVM voorwaarden.
NEN CLAUSULE
De gebruiksoppervlakte is berekend conform de branche vastgestelde NEN 2580- norm. De oppervlakte kan derhalve afwijken van vergelijkbare panden en/of oude referenties. Dit heeft vooral te maken met deze (nieuwe) rekenmethode. Koper verklaart voldoende te zijn geïnformeerd over de hiervoor bedoelde normering. Verkoper en diens makelaar doen hun uiterste best de juiste oppervlakte en inhoud te berekenen aan de hand van eigen metingen en dit zoveel mogelijk te ondersteunen door het plaatsen van plattegronden met maatvoering. Mocht de maatvoering onverhoopt niet (volledig) overeenkomstig de normering zijn vastgesteld, wordt dit door koper aanvaard. Koper is voldoende in de gelegenheid gesteld de maatvoering zelf te (laten) controleren. Verschillen in de opgegeven maat en grootte geven geen der partijen enig recht, zo ook niet op aanpassing van de koopsom. Verkoper en diens makelaar aanvaarden geen enkele aansprakelijkheid in deze.
Kenmerken
Overdracht
- Laatste vraagprijs
- € 619.000 kosten koper
- Vraagprijs per m²
- € 8.479
- Status
- Verkocht
- Bijdrage VvE
- € 50,00 per maand
Bouw
- Soort appartement
- Tussenverdieping
- Soort bouw
- Bestaande bouw
- Bouwjaar
- 1925
Oppervlakten en inhoud
- Gebruiksoppervlakten
- Wonen
- 73 m²
- Gebouwgebonden buitenruimte
- 3 m²
- Inhoud
- 252 m³
Indeling
- Aantal kamers
- 4 kamers (2 slaapkamers)
- Aantal badkamers
- 1 badkamer en 1 apart toilet
- Badkamervoorzieningen
- Douche, ligbad, en wastafel
- Aantal woonlagen
- 1 woonlaag
- Gelegen op
- 3e woonlaag
Energie
- Energielabel
- C
- Verwarming
- Cv-ketel
- Warm water
- Cv-ketel
- Cv-ketel
- Remeha Tzerra Ace 39c (gas gestookt combiketel uit 2021, eigendom)
Kadastrale gegevens
- SLOTEN N 614
- Kadastrale kaart
- Eigendomssituatie
- Gemeentelijk eigendom belast met erfpacht
- Lasten
- € 383,58 per jaar
Buitenruimte
- Balkon/dakterras
- Balkon aanwezig
Parkeergelegenheid
- Soort parkeergelegenheid
- Betaald parkeren, openbaar parkeren en parkeervergunningen
VvE checklist
- Inschrijving KvK
- Ja
- Jaarlijkse vergadering
- Ja
- Periodieke bijdrage
- Ja (€ 50,00 per maand)
- Reservefonds aanwezig
- Ja
- Onderhoudsplan
- Ja
- Opstalverzekering
- Ja
Foto's 28
© 2001-2025 funda



























