
Omschrijving
Welkom in dit heerlijke, lichte en ruime appartement van circa 117 m² met berging in de onderbouw aan de Beethovenstraat 261. Een appartement op de achtste etage dat al bij binnenkomst uitnodigt om van het spectaculaire uitzicht te genieten. Met maar liefst vier balkons, waar van twee zeer ruime, kunt u al vanaf de vroege ochtend tot de late middag genieten van de zon.
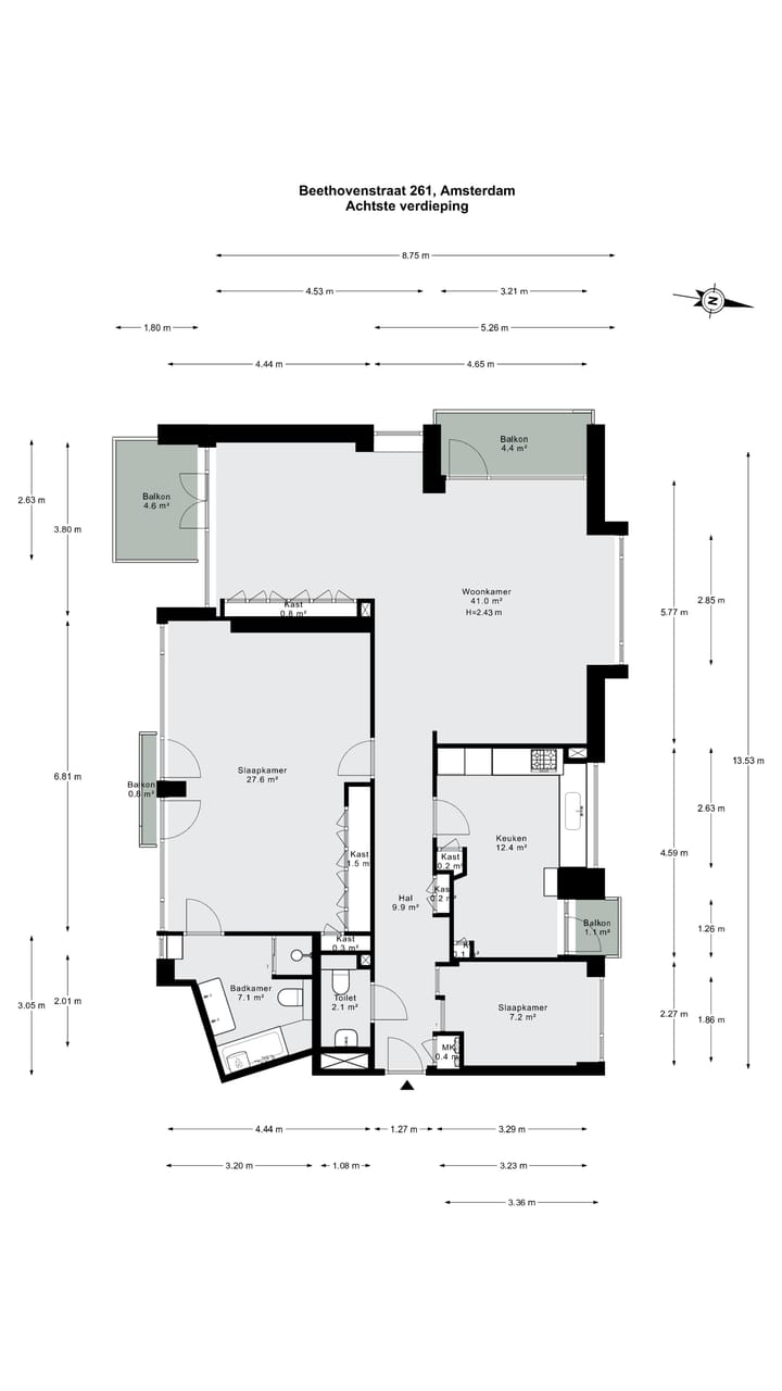
In de huidige opzet beschikt het appartement over twee mooie slaapkamers, waarvan één uitzonderlijk royale met badkamer en-suite, een separaat toilet, een ruime keuken en een zeer lichte woonkamer. In de fotopresentatie en in de plattegronden treft u verschillende “artist impressions” die u een indruk geven hoe het appartement er na verbouwing uit kan zien met drie slaapkamers en een royale open keuken.
Daarnaast beschikt het appartement over een garagebox, die separaat aangeboden wordt voor € 125.000,- k.k.
Gelegen aan de geliefde Beethovenstraat in de gewilde Rijksmonumentale Princesseflat, direct aan het groene Beatrixpark in Amsterdam Zuid, biedt dit appartement een perfecte combinatie van comfort, stijl en rust in de stad. Recent verscheen er een boeiende column van de hand van Felix Rottenberg in Ons Amsterdam, waarin hij uiteenzet wat de Princesseflat zo bijzonder maakt: onder meer de positionering aan de rand van het Beatrixpark; het ontwerp waardoor de appartementen bij alle seizoenen zoveel mogelijk opschuivend zonlicht vangen en het uitzicht dat volgens de schrijver al vanaf de vijfde verdieping formidabel is.
Kortom, dit is een unieke kans om te wonen op een toplocatie in het geliefde Amsterdam Zuid.
INDELING
Bij binnenkomst via de verzorgde gemeenschappelijke entree, neemt u de lift naar de achtste verdieping. Vanaf de voordeur van het appartement betreedt u de hal met veel inbouwkasten en toegang tot de eerste slaapkamer met inbouwkast, het ruime gasten toilet, de garderobe, toegang tot de uitzonderlijk royale hoofdslaapkamer met en-suite badkamer, voorzien van dubbele wastafel, tweede toilet, inloopdouche, ligbad en was-droogopstelling.
Centraal in het appartement bevindt zich de keuken in een L-opstelling, voorzien van hoogwaardige inbouwapparatuur en veel opbergruimte. Ook vanuit de keuken geniet u van prachtig uitzicht en is er bovendien toegang tot het zijbalkon.
De royale woonkamer geniet van lichtinval vanuit drie zijden dankzij de hoekligging. Vanuit hier heeft u toegang tot een ruim balkon op het oosten en een tweede balkon op het zuiden, ideaal om het hele jaar door van de zon te genieten. Een bijzonder detail is de zonwering aan alle zijden van het appartement.
Tot slot beschikt het appartement over een eigen berging in de onderbouw, evenals toegang tot de gemeenschappelijke fietsenberging en een gemeenschappelijk dakterras op de negende verdieping.
LIGGING
Dit exclusieve appartement is gelegen aan de Beethovenstraat in het gewilde Amsterdam Zuid, aan het Beatrixpark en nabij de Zuidas. De Beethovenstraat, het Olympiaplein en Gelderlandplein in Buitenveldert bieden een uitstekende keuze voor de dagelijkse boodschappen en een scala aan eet- en drinkgelegenheden.
De bereikbaarheid is uitstekend: zowel per auto (via de Ring A10) als met het openbaar vervoer (treinstation Zuid, diverse tram-, bus- en metroverbindingen).
BIJZONDERHEDEN
- Rijksmonumentale ‘Princesseflat’, ontworpen door architect Mart Stam in 1961
- Woonoppervlak van circa 117 m² (conform NEN2580 meetinstructies)
- Externe bergruimte circa 4,8 m² (conform NEN2580 meetinstructies) in de onderbouw
- Dubbele beglazing voor optimaal comfort
- Lift aanwezig in het gebouw
- Twee slaapkamers en een goede mogelijkheid voor een derde slaapkamer
- Hoekligging met ramen aan drie zijden, dus veel lichtinval
- Vier balkons, waarvan twee ruime
- Een gemeenschappelijke fietsenberging
- Canon circa € 155,- (vast) per jaar, looptijd tot 15-08-2034
- Erfpacht eeuwigdurend vastgeklikt vanaf 16-08-2034, canon circa € 1.490,- per jaar, jaarlijks geïndexeerd
- Actieve en gezonde Vereniging van Eigenaren (VvE)
- Professioneel beheerde VvE, beheerd door Servus Beheer
- VvE-bijdrage circa €390,- per maand, VvE-bijdrage garage circa € 54,- per maand
- Bijbehorend garagebox, circa 16 m² (conform NEN2580 meetinstructies), te koop voor € 125.000,- k.k.
- Erfpacht garage, canon circa € 33,- vast per jaar
- Erfpacht garage, eeuwigdurend vastgeklikt vanaf 16-08-2034, canon circa € 293,- per jaar, jaarlijks geïndexeerd
- Oplevering in overleg, kan spoedig
- Niet-zelfbewoningsclausule, “as-is, where-is” en asbest clausule van toepassing
- Onder voorbehoud recht van gunning verkoper
Let op: de fotopresentatie bevat artist impressions, om een indruk te geven hoe het appartement er na verbouwing uit kan zien.
Deze informatie is door ons met de nodige zorgvuldigheid samengesteld. Onzerzijds wordt echter geen enkele aansprakelijkheid aanvaard voor enige onvolledigheid, onjuistheid of anderszins, dan wel de gevolgen daarvan. Alle opgegeven maten en oppervlakten zijn indicatief. Koper heeft zijn eigen onderzoek plicht naar alle zaken die voor hem of haar van belang zijn. Met betrekking tot deze woning is de makelaar adviseur van verkoper. Wij adviseren u een deskundige (NVM-)makelaar in te schakelen die u begeleidt bij het aankoopproces. Indien u specifieke wensen heeft omtrent de woning, adviseren wij u deze tijdig kenbaar te maken aan uw aankopend makelaar en hiernaar zelfstandig onderzoek te (laten) doen. Indien u geen deskundige vertegenwoordiger inschakelt, acht u zich volgens de wet deskundige genoeg om alle zaken die van belang zijn te kunnen overzien. Van toepassing zijn de NVM voorwaarden.
__________
Welcome to this lovely, light and spacious apartment of approximately 117 sqm, with storage in the basement at Beethovenstraat 261. An apartment on the eighth floor that invites you to enjoy the spectacular view as soon as you enter. With no fewer than four balconies, two of which are very spacious, you can enjoy the sun from early morning until late afternoon.
In the current layout, the apartment has two beautiful bedrooms, one of which is exceptionally spacious with en-suite bathroom, a separate toilet, a spacious kitchen and a very bright living room. In the photo presentation and in the floor plans you will find various "artist impressions" that give you an impression of what the apartment could look like after renovation with three bedrooms and a spacious open kitchen.
In addition, the apartment has a garage box, which is offered separately for € 125,000, - k.k.
Situated on the popular Beethovenstraat in the sought-after national monument Princesseflat, directly on the green Beatrixpark in Amsterdam Zuid, this apartment offers a perfect combination of comfort, style and tranquility in the city. A fascinating column by Felix Rottenberg recently appeared in Ons Amsterdam, in which he explains what makes the Princesseflat so special: including its positioning on the edge of the Beatrixpark; the design that allows the apartments to capture as much shifting sunlight as possible in all seasons and the view that, according to the writer, is formidable from the fifth floor.
In short, this is a unique opportunity to live in a top location in the popular Amsterdam Zuid.
LAYOUT
Upon entering through the well-maintained communal entrance, take the elevator to the eighth floor. From the front door of the apartment you enter the hall with many fitted wardrobes and access to the first bedroom with fitted wardrobe, the spacious guest toilet, the wardrobe, access to the exceptionally spacious master bedroom with en-suite bathroom, equipped with double sink, second toilet, walk-in shower, bath and washer-dryer.
The kitchen is centrally located in the apartment in an L-shape, equipped with high-quality built-in appliances and plenty of storage space. You can also enjoy a beautiful view from the kitchen and there is also access to the side balcony.
The spacious living room enjoys light from three sides thanks to its corner location. From here you have access to a spacious balcony facing east and a second balcony facing south, ideal for enjoying the sun all year round. A special detail is the sun blinds on all sides of the apartment.
Finally, the apartment has its own storage room in the basement, as well as access to the communal bicycle shed and a communal roof terrace on the ninth floor.
LOCATION
This exclusive apartment is located on the Beethovenstraat in the popular Amsterdam Zuid, at the Beatrixpark and near the Zuidas. The Beethovenstraat, the Olympiaplein and Gelderlandplein in Buitenveldert offer an excellent choice for daily shopping and a range of food and beverage outlets.
The accessibility is excellent: both by car (via the Ring A10) and by public transport (Zuid train station, various tram, bus and metro connections).
DETAILS
- National monument 'Princesseflat', designed by architect Mart Stam in 1961
- Living area of ??approximately 117 sqm (in accordance with NEN2580 measurement instructions)
- External storage space of approximately 4.8 sqm (in accordance with NEN2580 measurement instructions) in the
basement
- Double glazing for optimum comfort
- Elevator in the building
- Two bedrooms and a good possibility for a third bedroom
- Corner location with windows on three sides, so plenty of natural light
- Four balconies, two of which are spacious
- A communal bicycle shed
- Leasehold approximately € 155,- (fixed) yearly, term until 15-08-2034
- Leasehold perpetually fixed from 16-08-2034, leasehold approximately € 1,490,- yearly, indexed annually
- Active and healthy Owners' Association (VvE)
- Professionally managed VvE, managed by Servus Beheer
- Homeowners' association contribution approximately € 390,- monthly, homeowners' association contribution garage
approximately € 54,- monthly
- Associated garage box, approximately 16 sqm (in accordance with NEN2580 measurement instructions), for sale for
€ 125.000,- k.k. (buyers costs)
- Leasehold garage, canon approximately € 33,- fixed yearly
- Leasehold garage, perpetually fixed from 16-08-2034, canon approximately € 293,- yearly, indexed annually
- Delivery in consultation, can be soon
- Non-self-occupancy clause, "as-is, where-is" and asbestos clause apply
- Subject to the seller's right of award
Please note: the photo presentation contains artist impressions, to give an impression of how the apartment may look after renovation.
This information has been compiled by us with the necessary care. However, no liability is accepted on our part for any incompleteness, inaccuracy or otherwise, or the consequences thereof. All stated sizes and surfaces are indicative. The buyer has his own duty to investigate all matters that are important to him or her. With regard to this property, the broker is the advisor to the seller. We advise you to engage an expert (NVM) broker who will guide you through the purchasing process. If you have specific wishes regarding the property, we advise you to make these known to your purchasing broker in good time and to conduct (or have conducted) independent research into them. If you do not engage an expert representative, you consider yourself expert enough by law to be able to oversee all matters that are important. The NVM conditions apply.
Kenmerken
Overdracht
- Laatste vraagprijs
- € 975.000 kosten koper
- Vraagprijs per m²
- € 8.333
- Status
- Verkocht
- Bijdrage VvE
- € 389,36 per maand
Bouw
- Soort appartement
- Tussenverdieping (appartement)
- Soort bouw
- Bestaande bouw
- Bouwjaar
- 1961
- Specifiek
- Monument en monumentaal pand
- Soort dak
- Plat dak bedekt met bitumineuze dakbedekking
- Toegankelijkheid
- Toegankelijk voor ouderen
Oppervlakten en inhoud
- Gebruiksoppervlakten
- Wonen
- 117 m²
- Gebouwgebonden buitenruimte
- 11 m²
- Externe bergruimte
- 5 m²
- Inhoud
- 359 m³
Indeling
- Aantal kamers
- 4 kamers (2 slaapkamers)
- Aantal badkamers
- 1 badkamer en 1 apart toilet
- Badkamervoorzieningen
- Douche, dubbele wastafel, ligbad, en toilet
- Aantal woonlagen
- 1 woonlaag
- Voorzieningen
- Buitenzonwering, lift, natuurlijke ventilatie, en rookkanaal
- Gelegen op
- 8e woonlaag
Energie
- Energielabel
- Niet verplicht
- Isolatie
- Dubbel glas
- Verwarming
- Cv-ketel
- Warm water
- Cv-ketel
- Cv-ketel
- Nefit Proline HRC CW4 (gas gestookt combiketel uit 2016, eigendom)
Kadastrale gegevens
- AMSTERDAM AB 1960
- Kadastrale kaart
- Eigendomssituatie
- Gemeentelijk eigendom belast met erfpacht
- Lasten
- € 154,73 per jaar met optie tot afkopen
- AMSTERDAM AB 1960
- Kadastrale kaart
- Eigendomssituatie
- Gemeentelijk eigendom belast met erfpacht
- Lasten
- € 32,67 per jaar met optie tot afkopen
Buitenruimte
- Ligging
- Aan drukke weg, aan park en vrij uitzicht
- Balkon/dakterras
- Balkon aanwezig
Bergruimte
- Schuur/berging
- Box
- Voorzieningen
- Elektra
Garage
- Soort garage
- Garagebox
- Capaciteit
- 1 auto
- Voorzieningen
- Elektrische deur en elektra
Parkeergelegenheid
- Soort parkeergelegenheid
- Betaald parkeren en openbaar parkeren
VvE checklist
- Inschrijving KvK
- Ja
- Jaarlijkse vergadering
- Ja
- Periodieke bijdrage
- Ja (€ 389,36 per maand)
- Reservefonds aanwezig
- Ja
- Onderhoudsplan
- Ja
- Opstalverzekering
- Ja
Foto's 30
© 2001-2026 funda





























