
Omschrijving
Op zoek naar een heerlijk licht 2 kamer appartement op een fijne locatie, dan is dit je kans!
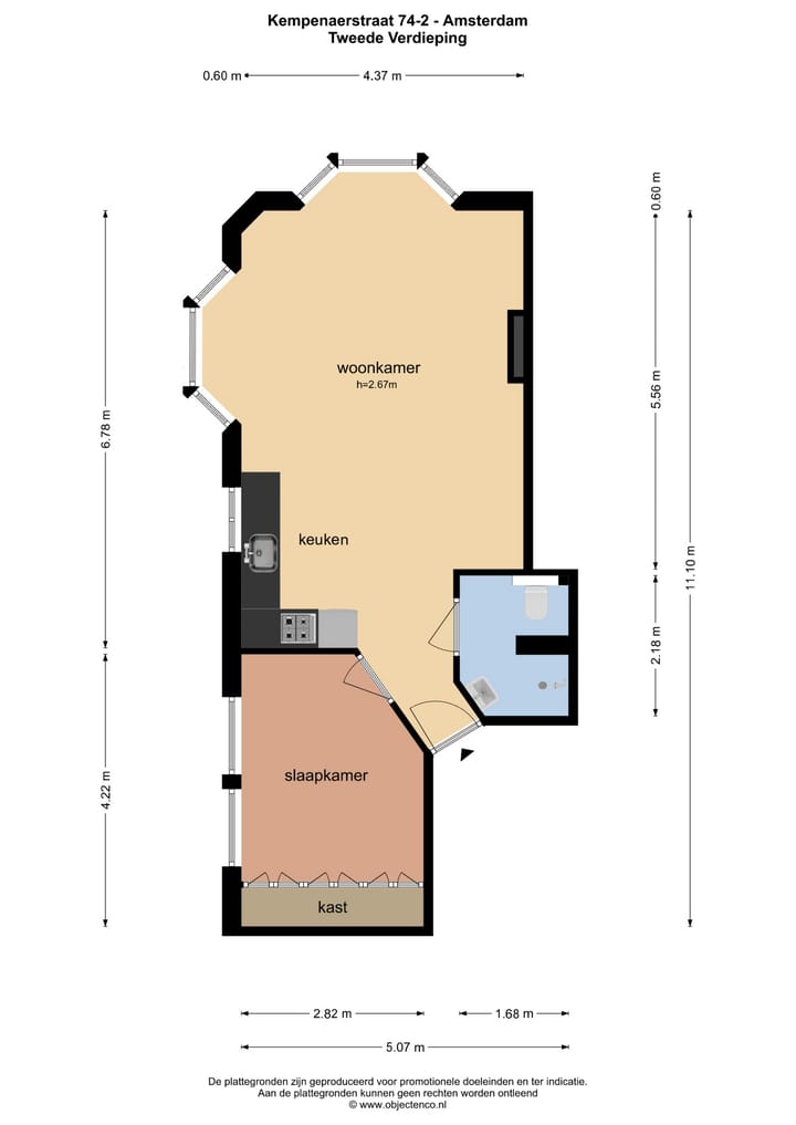
Het appartement heeft een woonoppervlak van ruim 47m2. Door de hoekligging is er veel daglicht en heeft het ook een vrij uitzicht.
Indeling: Via het nette gemeenschappelijke trappenhuis kom je op de tweede verdieping.
Entree, slaapkamer met handige kastenwand, nette badkamer met toilet, inloopdouche en wastafel. Nette open keuken voorzien van 4 pits gasfornuis, combi magnetron, koelkast met vriesvak en een vaatwasser. Lichte woon-eetkamer met 2 erkers.
Het appartement is rustig en zeer centraal gelegen in de populaire Staatsliedenbuurt. Winkels, gezellige restaurants en cafés en het Westerpark bevinden zich op loopafstand. Ook het openbaar vervoer is goed geregeld en je bent snel op de Ring A10.
Kortom dit appartement is een bezichtiging meer dan waard!
Maar we laten ook graag de eigenaar zelf ‘aan het woord’:
“Met toch wel een beetje pijn in mijn hart zet ik mijn heerlijke huisje te koop...
De afgelopen 15 jaar heb ik met ontzettend veel plezier in deze buurt en in dit appartement gewoond. Het is een plek die vanaf het eerste moment als thuis heeft gevoeld. Gelegen in een rustige en gezellige buurt, heb ik hier talloze mooie herinneringen opgebouwd. Wat deze plek zo bijzonder maakt, is de perfecte balans tussen de rust van een fijne woonomgeving en de levendigheid van de stad, die letterlijk om de hoek ligt. En het Westerpark, mijn favoriete plek om te wandelen, sporten of gewoon te ontspannen, is binnen een paar minuten lopen te bereiken.
Helaas wordt het nu te klein voor ons en dat is de reden dat ik mijn fijne huisje in de verkoop zet. Een nieuw avontuur in een andere stad. Ik hoop dat jullie als nieuwe bewoners hier met net zoveel plezier zullen wonen als dat wij dat hebben gedaan.
Benieuwd of dit jouw nieuwe thuis kan worden? Maak een afspraak en kom de sfeer zelf proeven!”
Bijzonderheden:
- Erfpacht € 225,- per jaar (2025) en wordt jaarlijks geïndexeerd (tot 16-4-2052)
- Overstap eeuwigdurend erfpacht gedaan, € 1067,65 vanaf 16-4-2052 (jaarlijkse indexatie)
- Meetrapport aanwezig
- Servicekosten € 116,-
- Actieve VvE met Meerjarenonderhoudsplan
- Energielabel C
- Geheel HR glas
- Aanvaarding in overleg
- Ouderdomsclausule van toepassing
********** English translation **********
Looking for a lovely, bright 2-room apartment in a great location? This is your chance!
The apartment has a living area of over 47m². Thanks to its corner position, it benefits from plenty of daylight and also offers an unobstructed view.
Layout: You enter the second floor via the neat shared staircase.
Entrance, bedroom with a convenient built-in wardrobe, tidy bathroom with a toilet, walk-in shower, and wash basin. Well-maintained open kitchen equipped with a 4-burner gas stove, microwave, fridge with freezer compartment, and a dishwasher. Bright living-dining room with two bay windows.
The apartment is located in a quiet yet very central spot in the popular Staatsliedenbuurt. Shops, cozy restaurants, cafes, and Westerpark are within walking distance. Public transport is well-organized, and the A10 Ring is easily accessible.
In short, this apartment is definitely worth a viewing!
But we’d also like to let the owner speak for themselves:
“With a bit of pain in my heart, I’m putting my lovely little house up for sale…
For the past 15 years, I have lived in this neighborhood and apartment with great pleasure. It has felt like home from the very first moment. Located in a quiet and friendly area, I’ve built countless beautiful memories here. What makes this place so special is the perfect balance between the tranquility of a nice living environment and the liveliness of the city, which is literally just around the corner. Westerpark, my favorite place to walk, exercise, or simply relax, is only a few minutes’ walk away.
Unfortunately, it’s now too small for us, and that’s why I’m selling my beloved home. A new adventure in another city. I hope that you, as the new residents, will enjoy living here as much as we have.
Curious if this could be your new home? Make an appointment and come experience the atmosphere for yourself!”
Particulars:
• Ground lease €225 per year (2025) and indexed annually (until 16-4-2052)
• Transfer to perpetual leasehold completed, € 1067.65 from 16-4-2052 (annual indexation)
• Service charges €116
• Active Homeowners Association with Long-Term Maintenance Plan
• Energy label C
• Fully double-glazed windows
• Available in consultation
Kenmerken
Overdracht
- Servicekosten
- € 116 per maand
- Laatste vraagprijs
- € 415.000 kosten koper
- Vraagprijs per m²
- € 8.830
- Status
- Verkocht
- Bijdrage VvE
- € 116,00 per maand
Bouw
- Soort appartement
- Bovenwoning (appartement)
- Soort bouw
- Bestaande bouw
- Bouwjaar
- 1927
Oppervlakten en inhoud
- Gebruiksoppervlakten
- Wonen
- 47 m²
- Inhoud
- 163 m³
Indeling
- Aantal kamers
- 2 kamers (1 slaapkamer)
- Aantal woonlagen
- 1 woonlaag
- Voorzieningen
- Natuurlijke ventilatie
- Gelegen op
- 2e woonlaag
Energie
- Energielabel
- C
- Verwarming
- Cv-ketel
- Warm water
- Cv-ketel
- Cv-ketel
- Gas gestookt combiketel uit 2009, eigendom
Kadastrale gegevens
- AMSTERDAM Y 4549
- Kadastrale kaart
- Eigendomssituatie
- Gemeentelijk eigendom belast met erfpacht
- Lasten
- € 225,00 per jaar
Buitenruimte
- Ligging
- Aan rustige weg, in woonwijk en vrij uitzicht
Parkeergelegenheid
- Soort parkeergelegenheid
- Betaald parkeren, openbaar parkeren en parkeervergunningen
VvE checklist
- Inschrijving KvK
- Ja
- Jaarlijkse vergadering
- Ja
- Periodieke bijdrage
- Ja (€ 116,00 per maand)
- Reservefonds aanwezig
- Ja
- Onderhoudsplan
- Ja
- Opstalverzekering
- Ja
Foto's 24
© 2001-2025 funda























