
Omschrijving
DE JACOB | Gerenoveerd en licht drielaags bovenhuis met eigen entree vanaf de straat en een woonoppervlakte van 186 m². Het is gelegen op eigen grond. Een woning waar sfeer en comfort mooi samenkomen. De afwerking is hoogwaardig met behoud van het originele karakter. Van de royale living met klassieke details tot het heerlijk dakterras met een panoramisch uitzicht.
De volledige woonbeleving is te ervaren op onze website of download ons magazine. Hier kun je ook eenvoudig zelf je bezichtiging inplannen. *See English translation below *
Rondleiding
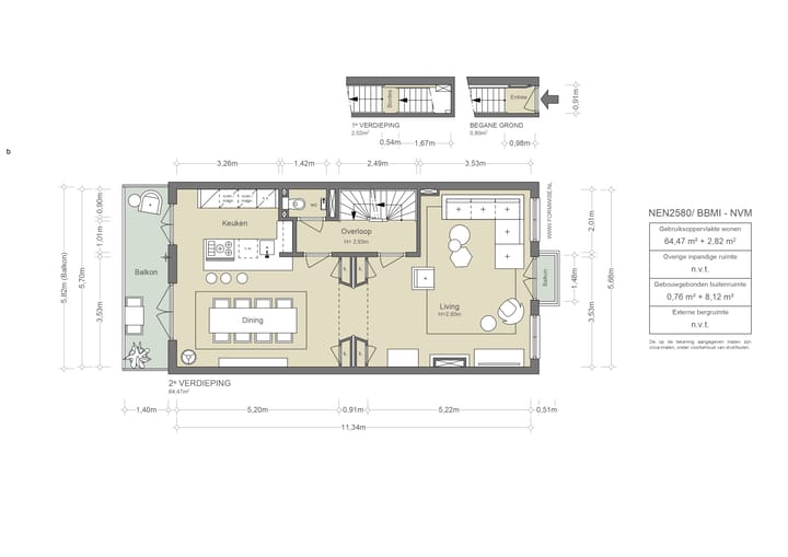
De woonverdieping is een stijlvolle ruimte waar het licht en ruimtelijke gevoel direct opvallen. Aan de voorzijde biedt de living een warme plek om te ontspannen. Klassieke details zoals de kamer ensuite, schouw en de hoge ramen versterken de sfeer, terwijl een royale zithoek met charmante franse balkon uitzicht biedt op de groene en brede straat.
De eetkamer vormt de schakel tussen de living en de open keuken. Hier is ruimte voor een lange eettafel onder sierlijke hanglampen, perfect voor gezellige diners. De keuken zelf is een combinatie van strakke lijnen en warme materialen. Een groot kookeiland met natuurstenen werkblad biedt ruimte om te koken, terwijl de witte kastenwand zorgt voor een rustige uitstraling. De moderne apparatuur, inclusief dubbele ovens en een ruime inductiekookplaat, quooker etc maakt koken hier een feest. De open planken bieden plaats aan stijlvolle accessoires en een gezellige koffiehoek met espressomachine maakt de ruimte compleet, ideaal voor een ontspannen start van de dag.
Op iedere etage ligt een hoogwaardige eiken vloer in visgraat patroon.
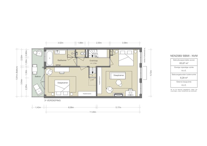
Het royale bovenhuis heeft vier zeer ruime slaapkamers en twee volwaardige badkamers verdeeld over twee woonlagen.
De slaapverdieping biedt rust en comfort. Aan de voorzijde bevindt zich de master bedroom, met grote ramen die zorgen voor veel natuurlijk licht. Er is meer dan voldoende ruimte voor een grote kastenwand. De badkamer is stijlvol afgewerkt met een inloopdouche, ligbad en dubbel wastafelmeubel. Er is gekozen voor een tijdloze en moderne afwerking door grijstinten en hout. Op deze etage is er een separaat toilet aanwezig. Aan de achterzijde bevindt zich een tweede slaapkamer met toegang tot een balkon.
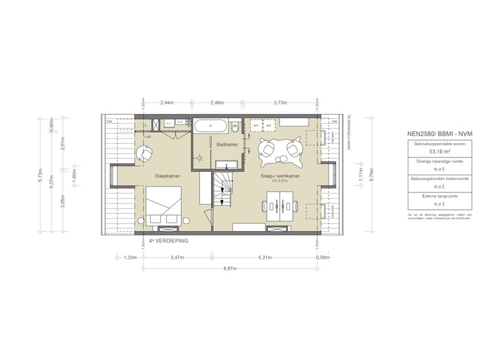
De bovenste verdieping heeft eveneens twee royale slaapkamers, ook kan dit uitstekend. Dankzij de grote dakramen in de schuine wanden voelt het hier licht en ruim aan. De tweede badkamer is modern, met een inloopdouche, ligbad, wastafel en toilet.
Buitenruimte
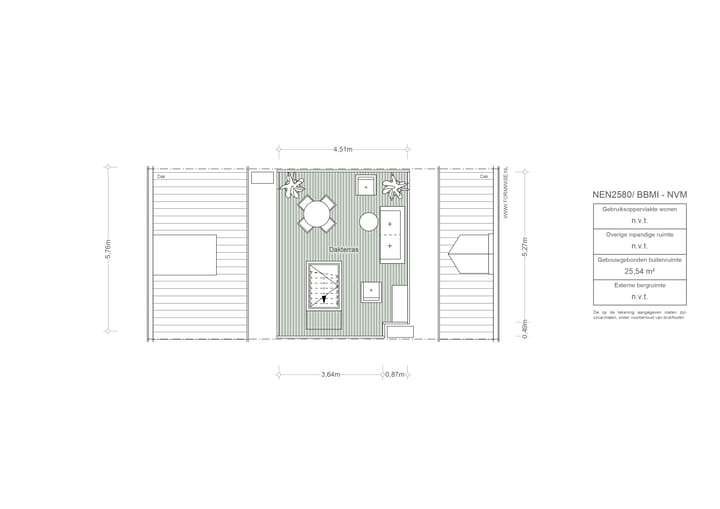
De buitenruimten van het pand biedt zowel drie prettige balkons als een royaal dakterras van ca. 26m². Het balkon aan de achterzijde is een ideale plek voor een rustige zitplek. Het dakterras biedt een panoramisch uitzicht over de stad, met ruimte om te loungen en te dineren. Planten zorgen voor privacy en sfeer, en een buitendouche biedt verkoeling op warme dagen. Vanuit hier prachtig uitzicht over de stad.
Buurtgids
De woning is gelegen in het geliefde Museumkwartier, bekend om zijn 19e-eeuwse architectuur, sfeervolle cafés, exclusieve winkels en iconische musea. Het Museumplein, het Vondelpark en de grachten bevinden zich op loopafstand.
In de directe omgeving liggen het Rijksmuseum en het Van Gogh Museum, beide wereldwijd bekend. Ook de P.C. Hooftstraat — dé luxe winkelstraat van Amsterdam — ligt op slechts enkele minuten lopen.
De buurt biedt een ruim aanbod aan restaurants, cafés en bars, met voor ieder wat wils. Voor dagelijkse boodschappen zijn er kwaliteitswinkels aan de Van Baerlestraat en Beethovenstraat. Elke zaterdag is er een biologische markt aan de Jacob Obrechtstraat.
De levendige Pijp, met de Albert Cuypmarkt, het Vondelpark en het stadscentrum zijn allemaal eenvoudig te voet bereikbaar.
Kortom, een ideale locatie voor wie wil wonen in een charmante en culturele omgeving in het hart van Amsterdam.
Bijzonderheden
• Gebruiksoppervlakte wonen circa 186 m²
• Dakterras van circa 26 m²
• Gelegen op eigen grond
• Energielabel A
• Intern gerenoveerd in 2021
• Airconditioning op de slaapverdiepingen
• Vve met 2 leden
• Servicekosten € 110,- per maand
• Gemeentelijk beschermd stadsgezicht
Deze informatie is door ons met de nodige zorgvuldigheid samengesteld. Onzerzijds wordt echter geen enkele aansprakelijkheid aanvaard voor enige onvolledigheid, onjuistheid of anderszins, dan wel de gevolgen daarvan. Alle opgegeven maten en oppervlakten zijn slechts indicatief
De Meetinstructie is gebaseerd op de NEN2580. De Meetinstructie is bedoeld om een meer eenduidige manier van meten toe te passen voor het geven van een indicatie van de gebruiksoppervlakte. De Meetinstructie sluit verschillen in meetuitkomsten niet volledig uit, door bijvoorbeeld interpretatieverschillen, afrondingen of beperkingen bij het uitvoeren van de meting
--------------------------
THE JACOB | Renovated and light-filled three-level lower residence with a private entrance from the street and a total living area of approximately 186 m². The property is freehold. A home where atmosphere and comfort go hand in hand. The finishes are of high quality, while original character has been carefully preserved. From the generous living space with classical detailing to the sunny rooftop terrace with panoramic views — every element exudes style and tranquillity.
Tour
The main living floor is a beautifully designed space where light and openness immediately stand out. At the front, the living area offers a warm and inviting atmosphere. Classical features such as the en suite layout, fireplace, and tall windows enhance the charm, while a generous seating area with a charming French balcony overlooks the wide, tree-lined street.
The dining room connects the living area with the open kitchen. There’s ample space for a long dining table beneath elegant pendant lights — ideal for relaxed dinners. The kitchen is a refined blend of clean lines and warm materials. A large island with a natural stone countertop offers plenty of workspace, while the white cabinetry creates a calm and understated look. High-end appliances — including double ovens, a spacious induction cooktop, Quooker, and more — make cooking a true pleasure. Open shelving offers room for decorative accents, and a cosy coffee corner with an espresso machine completes the space — perfect for a relaxed start to the day.
Each floor is finished with high-quality oak herringbone flooring.
The upper levels host four spacious bedrooms and two full bathrooms, spread over two floors.
The primary sleeping floor offers peace and comfort. At the front, the master bedroom benefits from large windows and ample space for a full wall of wardrobes. The bathroom is elegantly finished, featuring a walk-in shower, bathtub, and double vanity. The use of grey tones combined with wood results in a timeless and modern aesthetic. A separate toilet is also located on this floor. At the rear, the second bedroom has access to a balcony.
The top floor includes two more generously sized bedrooms, ideal for use as a home office or guest suite. Large skylights in the sloped ceilings bring in abundant natural light, creating a bright and open feel. The second bathroom is equally stylish, equipped with a walk-in shower, bathtub, vanity, and toilet.
Outdoor Space
The property offers three pleasant balconies and a generous rooftop terrace of approximately 26 m². The rear-facing balcony is perfect for quiet relaxation. The rooftop terrace offers panoramic views over the city, with plenty of room for lounging and outdoor dining. Greenery provides privacy and atmosphere, while an outdoor shower offers refreshment on warm days. From here, the views over Amsterdam are truly breathtaking.
Neighbourhood
The residence is located in the sought-after Museum Quarter, renowned for its 19th-century architecture, vibrant cafés, high-end boutiques, and world-class museums. Museumplein, Vondelpark, and the historic canals are all within walking distance.
Nearby are the world-famous Rijksmuseum and Van Gogh Museum. The P.C. Hooftstraat — Amsterdam’s premier luxury shopping street — is just a few minutes' walk away.
The neighbourhood offers a wide variety of restaurants, cafés, and bars, with something for every taste. For daily groceries, quality stores can be found on Van Baerlestraat and Beethovenstraat. Every Saturday, an organic market is held on Jacob Obrechtstraat.
The lively De Pijp district, the Albert Cuyp Market, Vondelpark, and the city centre are all easily accessible on foot.
In short, an ideal location for those seeking to live in a culturally rich and elegant setting in the heart of Amsterdam.
Details
• Living area approx. 186 m²
• Rooftop terrace approx. 26 m²
• Freehold property
• Energy label A
• Internally renovated in 2021
• Air conditioning on bedroom levels
• Owners’ association with 2 members
• Monthly service charges €110
• Municipal designated heritage cityscape
This information has been compiled with the utmost care. However, no rights can be derived from its content. All measurements and surface areas are indicative only.
The measurement guidelines are based on NEN2580, intended to ensure uniformity in determining usable floor space. Minor differences in measurements may still occur due to interpretation, rounding, or limitations during measurement.
Kenmerken
Overdracht
- Laatste vraagprijs
- € 1.880.000 kosten koper
- Vraagprijs per m²
- € 10.108
- Status
- Verkocht
- Bijdrage VvE
- € 110,00 per maand
Bouw
- Soort appartement
- Bovenwoning (appartement)
- Soort bouw
- Bestaande bouw
- Bouwjaar
- 1898
- Specifiek
- Beschermd stads- of dorpsgezicht
Oppervlakten en inhoud
- Gebruiksoppervlakten
- Wonen
- 186 m²
- Gebouwgebonden buitenruimte
- 43 m²
- Inhoud
- 440 m³
Indeling
- Aantal kamers
- 6 kamers (4 slaapkamers)
- Aantal badkamers
- 2 badkamers en 2 aparte toiletten
- Badkamervoorzieningen
- 2 douches, 2 ligbaden, 2 wastafels, en toilet
- Aantal woonlagen
- 3 woonlagen
- Voorzieningen
- Airconditioning, domotica, glasvezelkabel, mechanische ventilatie, en TV kabel
- Gelegen op
- 2e woonlaag
Energie
- Energielabel
- A
- Isolatie
- Dubbel glas
- Verwarming
- Cv-ketel
- Warm water
- Cv-ketel
- Cv-ketel
- Nefit (gas gestookt combiketel uit 2020, eigendom)
Kadastrale gegevens
- AMSTERDAM U 9945
- Kadastrale kaart
- Eigendomssituatie
- Volle eigendom
Buitenruimte
- Ligging
- Aan rustige weg en in woonwijk
- Balkon/dakterras
- Dakterras aanwezig en balkon aanwezig
Parkeergelegenheid
- Soort parkeergelegenheid
- Betaald parkeren en parkeervergunningen
VvE checklist
- Inschrijving KvK
- Ja
- Jaarlijkse vergadering
- Nee
- Periodieke bijdrage
- Nee
- Reservefonds aanwezig
- Nee
- Onderhoudsplan
- Nee
- Opstalverzekering
- Ja
Foto's 31
© 2001-2025 funda






























