
Omschrijving
George Ohm No. 1-3 - Een charmante jaren '50 woning van circa 75 m², gelegen in de herontdekte buurt Watergraafsmeer. Dit is de ideale plek om te ontsnappen aan de drukte van de stad en ruimte te vinden voor sportiviteit. Het 4-kamerappartement bevindt zich op de derde en tevens bovenste verdieping van het complex. Het appartement heeft een praktische indeling met drie slaapkamers, een woon-/eetkamer, een afgesloten keuken, en een heerlijk balkon van circa 5 m² op het zuidoosten. In de onderbouw is een aparte berging van circa 11 m² aanwezig.
Het betreft een voormalige huurwoning en dient gemoderniseerd te worden.
De volledige woonbeleving is te ervaren op onze website of download ons magazine. *See English translation below *
Rondleiding
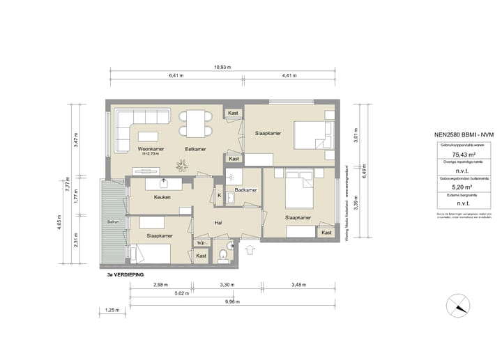
De gemeenschappelijke entree biedt toegang tot de berging in de onderbouw en het appartement, gelegen op de derde en tevens bovenste verdieping. Het appartement beschikt over een separaat toilet, twee slaapkamers aan de rustige straatzijde en een derde slaapkamer aan de achterzijde. De afgesloten keuken en de woon-/eetkamer zijn eveneens aan de achterzijde van het appartement gelegen. Het balkon, gelegen op het zuidoosten en circa 5 m² groot, is te bereiken via zowel de woonkamer, keuken als slaapkamer. In de onderbouw bevindt zich een aparte berging van circa 11 m².
Buurtgids
De Watergraafsmeer was in het begin van de 20e eeuw voornamelijk agrarisch gebied, met tuinbouw en veeteelt. Het oorspronkelijke polderlandschap is ontstaan in 1629 na droogmaking van het Diemermeer. In de 17e en 18e eeuw bouwden veel welgestelde Amsterdammers buitenplaatsen in de Watergraafsmeer, waarvan alleen Frankendael is overgebleven.
De Ohmstraat kan gekenmerkt worden als een rustige en kindvriendelijke straat in de Watergraafsmeer. De wijk kenmerkt zich door veel laagbouw en groene hofjes. De schaatsbaan Jaap Eden is op de hoek, alsmede tennis- en padelbanen en vele voetbalvelden. Binnen loopafstand zijn verscheidene scholen en de gezellige kinderboerderij De Werf. Voor een wandeling is wel het Flevopark als Park Frankendael een goede optie.
Op het nabijgelegen Christian Huygensplein zijn diverse voorzieningen te vinden, zoals een Albert Heijn, drogisterijen, bakkers en delicatessenwinkels. Ook op de Molukkenstraat en Oostpoort is een diversiteit aan winkels en horecagelegenheden te vinden en binnen enkele minuten fietsen te bereiken.
Bijzonderheden
• Gebruiksoppervlakte wonen ca. 75 m²
• Eigen grond
• Balkon ca. 5 m²
• Berging in de onderbouw van ca. 11m²
• Voormalige huurwoning en dient gemoderniseerd te worden
• Niet zelf-bewoningsclausule, asbestclausule en ouderdomsclausule zijn van toepassing
• Professionele VvE (B&O VvE beheer)
• Servicekosten bedragen € 164,23 voor het appartement en € 15,91 voor de berging per maand
• Energielabel G
• Blokverwarming, voorschot stookkosten bedraagt € 147,50 per maand
• Project notaris Lubbers en Dijk
• Oplevering kan snel
Deze informatie is door ons met de nodige zorgvuldigheid samengesteld. Onzerzijds wordt echter geen enkele aansprakelijkheid aanvaard voor enige onvolledigheid, onjuistheid of anderszins, dan wel de gevolgen daarvan. Alle opgegeven maten en oppervlakten zijn slechts indicatief
De Meetinstructie is gebaseerd op de NEN2580. De Meetinstructie is bedoeld om een meer eenduidige manier van meten toe te passen voor het geven van een indicatie van de gebruiksoppervlakte. De Meetinstructie sluit verschillen in meetuitkomsten niet volledig uit, door bijvoorbeeld interpretatieverschillen, afrondingen of beperkingen bij het uitvoeren van de meting.
---------------------------------------------
George Ohm No. 1-3 - A charming 1950s apartment of approximately 75 m², located in the rediscovered neighborhood of Watergraafsmeer. This is the ideal place to escape the hustle and bustle of the city and find space for outdoor activities. The 4-room apartment is situated on the third and top floor of the building. It features a practical layout with three bedrooms, a living/dining room, a closed kitchen, and a delightful southeast-facing balcony of about 5 m². There is also a separate storage room of approximately 11 m² in the basement.
The apartment was previously rented and requires modernization.
Experience the full living experience on our website or download our magazine.
Tour
The communal entrance provides access to the basement storage and the apartment on the third and top floor. The apartment includes a separate toilet, two bedrooms facing the quiet street side, and a third bedroom at the rear. The closed kitchen and the living/dining room are also located at the back of the apartment. The balcony, which is southeast-facing and about 5 m² in size, can be accessed from the living room, kitchen, and bedroom. There is a separate storage room of about 11 m² in the basement.
Neighborhood guide
In the early 20th century, Watergraafsmeer was primarily an agricultural area, with horticulture and livestock farming. The original polder landscape was created in 1629 after the draining of the Diemermeer. In the 17th and 18th centuries, many wealthy Amsterdammers built country estates in Watergraafsmeer, with only Frankendael surviving.
Ohmstraat can be characterized as a quiet and family-friendly street in Watergraafsmeer. The neighborhood is known for its low-rise buildings and green courtyards. The Jaap Eden ice rink is around the corner, as well as tennis and padel courts and numerous soccer fields. Within walking distance, there are several schools and the charming petting zoo De Werf. For a stroll, Flevopark and Park Frankendael are excellent options
Nearby Christian Huygensplein offers various amenities, such as an Albert Heijn supermarket, drugstores, bakeries, and delicatessens. The Molukkenstraat and Oostpoort also feature a variety of shops and dining options, all reachable within a few minutes by bike.
Details
• Living area: approx. 75 m²
• Freehold land
• Balcony: approx. 5 m²
• Storage room in the basement: approx. 11 m²
• Former rental property, requires modernization
• Non-owner-occupied clause, asbestos clause, and age clause apply
• Professional HOA management (B&O VvE beheer)
• Service charges: €164.23 per month for the apartment and €15.91 for the storage room
• Energy label G
• Block heating, advance heating costs: €147.50 per month
• Project notary: Lubbers and Dijk
• Quick delivery possible
This information has been compiled with due care. However, we accept no liability for any incompleteness, inaccuracies, or other issues, or for the consequences thereof. All provided dimensions and areas are indicative only. The measurement instruction is based on NEN2580. The measurement instruction aims to apply a more uniform method of measuring to give an indication of the usable area. It does not completely exclude differences in measurement results due to, for example, interpretative differences, rounding, or limitations during measurement.
Kenmerken
Overdracht
- Laatste vraagprijs
- € 490.000 kosten koper
- Vraagprijs per m²
- € 6.533
- Status
- Verkocht
- Bijdrage VvE
- € 180,14 per maand
Bouw
- Soort appartement
- Bovenwoning (appartement)
- Soort bouw
- Bestaande bouw
- Bouwjaar
- 1956
- Soort dak
- Plat dak bedekt met bitumineuze dakbedekking
Oppervlakten en inhoud
- Gebruiksoppervlakten
- Wonen
- 75 m²
- Gebouwgebonden buitenruimte
- 5 m²
- Externe bergruimte
- 11 m²
- Inhoud
- 248 m³
Indeling
- Aantal kamers
- 5 kamers (3 slaapkamers)
- Aantal badkamers
- 1 badkamer en 1 apart toilet
- Badkamervoorzieningen
- Douche en wastafel
- Aantal woonlagen
- 1 woonlaag
- Voorzieningen
- Buitenzonwering, natuurlijke ventilatie, en TV kabel
- Gelegen op
- 4e woonlaag
Energie
- Energielabel
- G
- Isolatie
- Dubbel glas
- Verwarming
- Blokverwarming
- Warm water
- Geiser
Kadastrale gegevens
- AMSTERDAM B 3917
- Kadastrale kaart
- Eigendomssituatie
- Volle eigendom
Buitenruimte
- Ligging
- Aan rustige weg en in woonwijk
- Balkon/dakterras
- Balkon aanwezig
Bergruimte
- Schuur/berging
- Box
- Voorzieningen
- Elektra
Parkeergelegenheid
- Soort parkeergelegenheid
- Betaald parkeren en parkeervergunningen
VvE checklist
- Inschrijving KvK
- Ja
- Jaarlijkse vergadering
- Ja
- Periodieke bijdrage
- Ja (€ 180,14 per maand)
- Reservefonds aanwezig
- Ja
- Onderhoudsplan
- Ja
- Opstalverzekering
- Ja
Foto's 23
© 2001-2025 funda






















