
Omschrijving
Monumentale villa Annerzathe in wijds landschap met grote parktuin
Kom deze woning bezoeken tijdens de Open Huizendag op zaterdag 5 oktober 2024. Tussen 11:00u en 15:00u kunt u zonder het maken van een afspraak en vrijblijvend een bezoek brengen aan deze monumentale parel. Gracieus verheft deze villa uit 1878 zich aan het Annerveenschekanaal. Het rijk gedetailleerde timmerwerk aan de voorgevel in combinatie met de mezzanino-vensters vormt een prachtig decor. De onderscheidende Waterstaat bouwstijl maakt het misschien wel tot het mooiste huis van het dorp. Tijdens een recente renovatie zijn alle karakteristieke en authentieke elementen behouden. Met als resultaat een comfortabele woning in Engelse stijl waar unieke details de sfeer verfijnen. Zo verbinden paneeldeuren de vertrekken met elkaar en in de living scheiden bogen met ornamenten het eet- en woongedeelte. Zowel in de living als in de werkkamer is een schouw met houtkachel. De Engelse keuken: deVOL, type Shaker, is rechtstreeks geïmporteerd uit Groot Brittannië . De vele ramen, met dubbel glas (!), bieden zicht op de landerijen en de bootjes die op het kanaal voorbij glijden. Omdat dit rijksmonument onderdeel uitmaakt van het beschermde dorpsgezicht, bent u blijvend verzekerd van dit fantastische uitzicht. Ook de ligging van deze woning, op de grens van Drenthe en Groningen, is bijzonder. Zodra u zich in de geweldige parktuin van 8500 m2 begeeft, bent u in Groningen. In het hart van de parktuin ligt een vijver, die ook geschikt is om te zwemmen. De vijver wordt gevoed door een fraai aangelegde waterpartij van stromend water door de tuin. De gehele tuin, aangelegd in Engelse stijl, bruist van de diversiteit aan flora en fauna. Een zintuiglijke beleving waar woorden tekortschieten.
Instapklaar
Wonen in een huis waar de liefde voor het leven volop stroomt, omringd door een geweldige tuin met een uitbundige diversiteit aan flora en fauna. Met zeven kamers, waarvan vier slaapkamers, is er volop ruimte om aan huis te werken. Of misschien deelt u graag de landelijke schoonheid met gasten. Met drie badkamers heeft u de mogelijkheid om een B&B te starten. Bovendien is deze comfortabele woning instapklaar.
Goede ontsluiting met diverse N-wegen
Het Drentse Annerveenschekanaal ligt centraal tussen Gieten, Veendam, Hoogezand, Assen en Groningen. Het dorp is goed ontsloten door diverse N-wegen. Daarnaast zijn er recreatieve fiets-wandel- en vaarroutes in de omgeving.
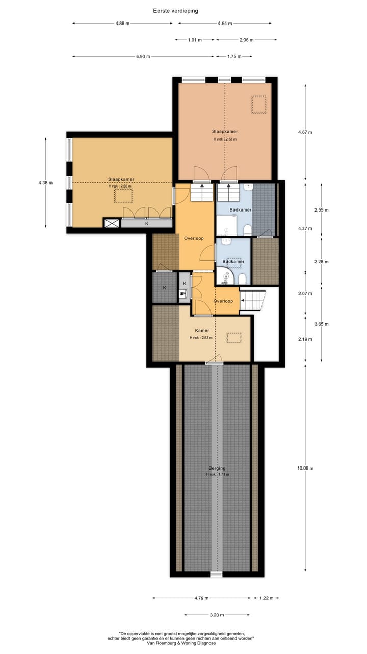
Download het magazine met meer foto's, video, uitgebreide beschrijving, plattegronden en maatvoering.
Unique buying reasons (UBR)
• Misschien wel het mooiste huis van het dorp
• Recentelijk gerenoveerd met behoud van karakter en authentieke elementen
• Instapklare gezinswoning
• Blijvend vrij uitzicht door beschermd dorpsgezicht
• Engelse detaillering
• Fraai aangelegde en goed onderhouden partktuin met waterpartij.
Kenmerken
Overdracht
- Oorspronkelijke vraagprijs
- € 930.000 kosten koper
- Laatste vraagprijs
- € 890.000 kosten koper
- Vraagprijs per m²
- € 3.663
- Status
- Verkocht
Bouw
- Soort woonhuis
- Villa, vrijstaande woning
- Soort bouw
- Bestaande bouw
- Bouwjaar
- 1878
- Specifiek
- Beschermd stads- of dorpsgezicht en monument
- Soort dak
- Samengesteld dak bedekt met metaal en pannen
Oppervlakten en inhoud
- Gebruiksoppervlakten
- Wonen
- 243 m²
- Overige inpandige ruimte
- 5 m²
- Externe bergruimte
- 31 m²
- Perceel
- 10.353 m²
- Inhoud
- 939 m³
Indeling
- Aantal kamers
- 7 kamers (4 slaapkamers)
- Aantal badkamers
- 3 badkamers en 1 apart toilet
- Badkamervoorzieningen
- Inloopdouche, 3 toiletten, 2 wastafelmeubels, 2 douches, en wastafel
- Aantal woonlagen
- 2 woonlagen
- Voorzieningen
- Dakraam, rookkanaal, en TV kabel
Energie
- Energielabel
- Niet verplicht
- Isolatie
- Dakisolatie, grotendeels dubbelglas en muurisolatie
- Verwarming
- Cv-ketel, houtkachel en gedeeltelijke vloerverwarming
- Warm water
- Cv-ketel
- Cv-ketel
- Remeha Calenta 40c (gas gestookt combiketel uit 2017, eigendom)
Kadastrale gegevens
- ANLOO C 1263
- Kadastrale kaart
- Oppervlakte
- 1.530 m²
- Eigendomssituatie
- Volle eigendom
- HOOGEZAND O 606
- Kadastrale kaart
- Oppervlakte
- 8.525 m²
- Eigendomssituatie
- Volle eigendom
- ANLOO C 2105
- Kadastrale kaart
- Oppervlakte
- 298 m²
- Eigendomssituatie
- Volle eigendom
Buitenruimte
- Ligging
- Aan rustige weg, aan vaarwater, landelijk gelegen en vrij uitzicht
- Tuin
- Achtertuin en tuin rondom
Garage
- Soort garage
- Vrijstaande houten garage
- Capaciteit
- 1 auto
- Voorzieningen
- Elektra
Parkeergelegenheid
- Soort parkeergelegenheid
- Op eigen terrein
Foto's 71
© 2001-2025 funda






































































