
Omschrijving
In het hart van de bruisende binnenstad van Arnhem bevindt zich dit zeer charmante herenhuis, een prachtig voorbeeld van historische architectuur. Gelegen aan de sfeervolle Koningstraat, draagt dit pand de status van gemeentelijk monument, wat de bijzondere waarde en authentieke uitstraling benadrukt.
Het statige pand is momenteel ingedeeld in twee afzonderlijke gedeelten. Op de begane grond, onder huisnummer 44, bevindt zich een goedlopende nagelsalon, die profiteert van de levendige omgeving en het winkelend publiek. De bovenwoning, geregistreerd onder nummer 44A, kan worden verhuurd en biedt de nieuwe bewoners een fraai uitzicht op de karakteristieke binnenstad.
Hoewel het pand nog niet kadastraal is gesplitst, beschikt het al over twee afzonderlijke huisnummers, wat de veelzijdige gebruiksmogelijkheden vergroot. Dit prachtige herenhuis combineert historische charme met moderne functionaliteit en is een unieke kans voor zowel ondernemers als particuliere investeerders die op zoek zijn naar een bijzonder object in Arnhem.
Indeling
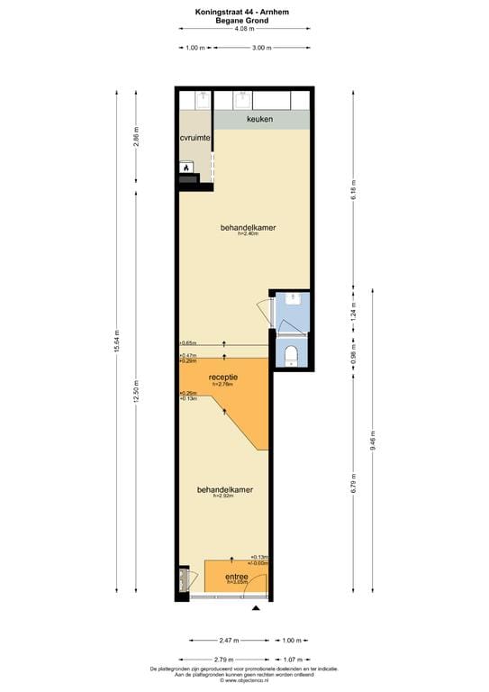
Begane grond:
Deze ruimte kenmerkt zich door haar diepe indeling en aan de achterzijde bevindt zich een praktische keuken. Daarnaast is er een handige bergruimte, die voldoende opslagmogelijkheden biedt voor voorraad, apparatuur of andere benodigdheden. Een interessante extra is de kelder, die momenteel niet in gebruik is. Deze biedt echter potentieel voor verschillende doeleinden, zoals extra opslag, een werkruimte of zelfs een toekomstige uitbreiding van de bedrijfsactiviteiten. De huidige huurder, de nagelsalon, heeft nog een lopend contract van vier jaar, wat zorgt voor een stabiele en betrouwbare inkomstenbron. Dit maakt het geheel een aantrekkelijke investeringsmogelijkheid.
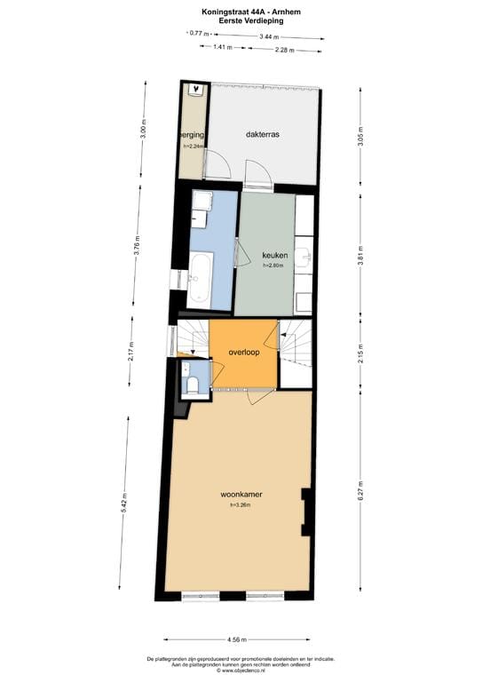
Verdieping:
Ruime entree, die leidt naar een overloop met toegang tot het toilet en de trapopgang naar de tweede verdieping. De woonkamer is licht met voldoende ruimte voor een comfortabele zithoek en een gezellige eetgelegenheid. Aangrenzend bevindt zich de keuken, die praktisch is ingedeeld en direct toegang biedt tot een ruim dakterras gelegen op het westen. Bovendien is er een berging, die extra opslagmogelijkheden biedt. De badkamer is functioneel uitgerust met een bad-/douchecombinatie, aansluitingen voor een wasmachine, en een wastafel.
Tweede verdieping:
Royale overloop met toegang tot drie slaapkamers en twee bergkasten.
LET OP:
Op Funda wordt alleen het woonoppervlak van het woongedeelte vermeld. Het bedrijfsgedeelte op de begane grond beslaat circa 51 m², waardoor het totale oppervlak van het gehele pand uitkomt op ongeveer 144 m².
Bijzonderheden:
• Gemeentelijk monument;
• Geen energielabel verplicht;
• Twee huisnummers;
• Niet gesplitst op dit moment;
• Benedengedeelte is momenteel verhuurd.
Kenmerken
Overdracht
- Laatste vraagprijs
- € 595.000 kosten koper
- Vraagprijs per m²
- € 6.398
- Status
- Verkocht
Bouw
- Bouwjaar
- Voor 1906
- Soort woonhuis
- Herenhuis, tussenwoning
- Soort bouw
- Bestaande bouw
- Specifiek
- Monumentaal pand
- Soort dak
- Samengesteld dak bedekt met bitumineuze dakbedekking en pannen
Oppervlakten en inhoud
- Gebruiksoppervlakten
- Wonen
- 93 m²
- Overige inpandige ruimte
- 2 m²
- Gebouwgebonden buitenruimte
- 11 m²
- Perceel
- 85 m²
- Inhoud
- 370 m³
Indeling
- Aantal kamers
- 5 kamers (3 slaapkamers)
- Aantal badkamers
- 1 badkamer en 2 aparte toiletten
- Badkamervoorzieningen
- Douche, ligbad, en wastafel
- Aantal woonlagen
- 3 woonlagen
- Voorzieningen
- Natuurlijke ventilatie en TV kabel
Energie
- Energielabel
- Niet beschikbaar
- Isolatie
- Gedeeltelijk dubbel glas
- Verwarming
- Cv-ketel
- Warm water
- Cv-ketel
- Cv-ketel
- CV (gas gestookt combiketel, eigendom)
Kadastrale gegevens
- ARNHEM O 795
- Kadastrale kaart
- Oppervlakte
- 85 m²
- Eigendomssituatie
- Volle eigendom
Buitenruimte
- Ligging
- In centrum
- Balkon/dakterras
- Dakterras aanwezig
Parkeergelegenheid
- Soort parkeergelegenheid
- Betaald parkeren, parkeergarage en parkeervergunningen
Foto's 48
© 2001-2025 funda















































