
Omschrijving
Eindwoning met garage, uitbouw en ideale ligging in het dorpshart van Baarle.
In het bruisende hart van Baarle, op slechts enkele stappen van winkels, horeca en de gezellige weekmarkt, staat deze uitgebouwde eindwoning met eigen garage. Een woning die ruimte, comfort en een perfecte ligging combineert!
De begane grond beschikt over een lichte woonkamer met uitbouw en een open keuken. Op de eerste verdieping vindt u twee slaapkamers, een complete badkamer, een vaste bergkast en een aparte wasruimte. Via de vaste trap bereikt u de tweede verdieping met twee dakramen en een royale zolder(slaap)kamer.
De zonnige achtertuin, gelegen op het zuidwesten, biedt volop mogelijkheden om buiten te genieten. Hier vindt u tevens een praktische berging, achterom en een stenen garage.
De straat zelf kenmerkt zich door brede trottoirs, groenvoorzieningen en voldoende parkeergelegenheid.
Locatie
De ligging kan nauwelijks beter: het charmante dorpscentrum ligt letterlijk om de hoek. Binnen enkele minuten lopen bereikt u het Sint Annaplein met supermarkten (o.a. Jumbo), drogisterijen, winkels, restaurants en de wekelijkse markt. Ook scholen, sportclubs en overige voorzieningen zijn in de directe nabijheid aanwezig.
Kortom: een ideale woonplek voor wie comfortabel wil wonen, met alle gemakken en de levendigheid van het dorpshart op loopafstand!
INDELING
BEGANE GROND
Entree en hal
Via de voordeur komt u binnen in de hal, waar zich de meterkast bevindt (4 groepen + 2 aardlekschakelaars) en een handige kelderkast, ideaal als voorraadruimte of extra bergruimte. Vanuit de hal bereikt u de vaste trapopgang naar de eerste verdieping.
Woonkamer
Vanuit de hal betreedt u de woonkamer met sfeervolle sierhaard. Het grote raam aan de voorzijde zorgt voor veel lichtinval en biedt uitzicht op de straat.
Keuken en eetgedeelte
Aansluitend aan de woonkamer ligt de centraal gesitueerde keuken, uitgerust met een keramische kookplaat, afzuigkap, spoelbak, koelkast en oven. In de uitbouw is ruimte om een eettafel te plaatsen, waar u heerlijk kunt dineren en door het grote raam kunt genieten van het uitzicht op de tuin. Via een loopdeur is de achtertuin direct bereikbaar.
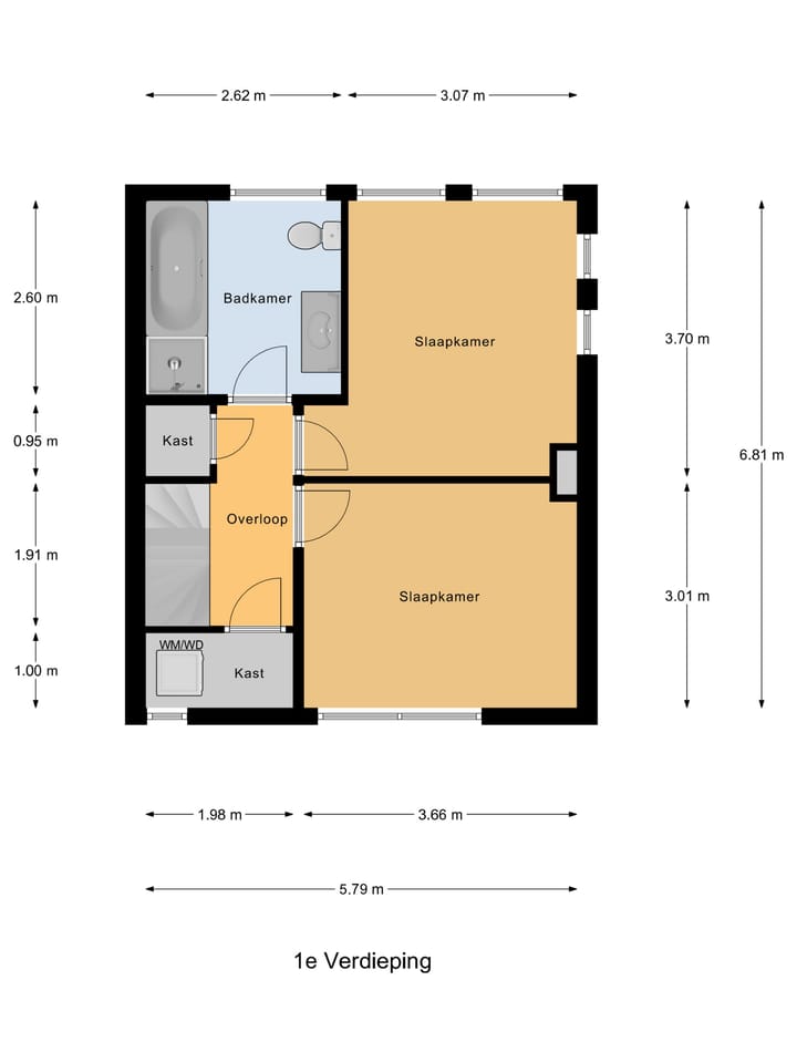
EERSTE VERDIEPING
De overloop op de eerste verdieping geeft toegang tot twee goed bemeten slaapkamers, een praktische vaste bergkast, een complete badkamer en een separate wasruimte.
Slaapkamer 1
Ruime slaapkamer gelegen aan de voorzijde van de woning.
Slaapkamer 2
Tweede slaapkamer, gesitueerd aan de achterzijde, met een prettig uitzicht op de tuin.
Badkamer
De complete badkamer is uitgerust met een douchecabine, ligbad, wastafelmeubel met royale opbergruimte en een tweede toilet. Hier komt comfort en functionaliteit mooi samen.
Wasruimte
Praktische aparte wasruimte met aansluitingen voor wasapparatuur – ideaal om wassen en drogen netjes uit het zicht te houden.
TWEEDE VERDIEPING
Via een vaste trap bereikt u de ruime voorzolder, voorzien van een dakraam aan de achterzijde. Hier vindt u de opstelling van de c.v.-combiketel (Intergas, 2008) en extra bergruimte achter de knieschotten.
Zolder(slaap)kamer
De royale zolderkamer beschikt eveneens over een dakraam aan de achterzijde en biedt praktische opbergruimte in de vaste kasten. Dankzij de goede afmetingen is deze ruimte uitstekend te gebruiken als extra slaapkamer, werkkamer of hobbyruimte.
BUITEN
Tuin
De zonnige achtertuin, gelegen op het zuidwesten, biedt volop ruimte om te genieten van het buitenleven. De combinatie van bestrating en een verzorgde plantenborder zorgt voor een fijne balans tussen groen en gemak in onderhoud.
Berging
De praktische berging is ideaal voor het opbergen van tuingereedschap en klusmateriaal, zodat alles netjes en overzichtelijk binnen handbereik blijft. Aansluitend vindt u een overkapping, perfect voor het droog stallen van fietsen of als beschutte zitplek.
Garage
Achter in de tuin bevindt zich, over de volledige breedte, een ruime vrijstaande garage. Hier heeft u volop mogelijkheden voor het parkeren van uw auto, extra opslag of hobbyruimte.
Achter in de tuin bevindt zich, over de volledige breedte, een ruime vrijstaande garage. Hier heeft u volop mogelijkheden voor het parkeren van uw auto, extra opslag of hobbyruimte.
Kenmerken
- Ideale ligging in het dorpshart van Baarle;
- Zonnige achtertuin op het zuidwesten;
- Uitgebouwde eindwoning met eigen garage;
- 3 slaapkamers en een aparte wasruimte;
- Voor de afmetingen van de diverse ruimtes verwijzen wij u naar de plattegronden.
Opmerkingen
• In de koopakte zal, als zekerheid voor de nakoming van de verplichtingen van koper, een bankgarantie van 10% van de koopsom opgenomen worden;
In de koopovereenkomst zullen de volgende artikelen worden opgenomen:
• Asbestclausule: in het object kunnen gezien het bouwjaar asbesthoudende stoffen aanwezig zijn. Bij eventuele verwijdering dienen op grond van de milieuwetgeving speciale voorzorgmaatregelen getroffen te worden. Koper verklaart hiermee bekend te zijn en vrijwaart verkoper voor eventuele aansprakelijkheid.
• Ouderdomsclausule: het is aan koper bekend dat de onroerende zaak meer dan 65 jaar oud is, wat betekent dat de eisen die bij aan de bouwkwaliteit gesteld mogen worden aanzienlijk lager liggen dan bij nieuwe woningen. In afwijking van artikel 6.3 van deze koopakte en artikel 7:17 lid 1 en 2 BW komt het geheel of ten dele ontbreken van een of meer eigenschappen van de onroerende zaak voor normaal en bijzonder gebruik en het eventueel anderszins niet-beantwoorden van de zaak aan de overeenkomst voor rekening en risico van koper.
•Toelichtingsclausule NEN2580: De woning is opgemeten met inachtneming van de meetinstructie welke is gebaseerd op de NEN 2580. De Meetinstructie is bedoeld om een meer eenduidige manier van meten toe te passen voor het geven van een indicatie van de gebruiksoppervlakte. Maatvoeringen t.a.v. plattegronden inhouds- en oppervlaktematen zijn bij benadering vastgesteld in een meetrapport. De meetinstructie sluit verschillen in de meetuitkomsten niet volledig uit door bijvoorbeeld interpretatieverschillen, afrondingen of beperkingen bij het uitvoeren van de meting. Uitgangspunt blijft altijd: "wat u ziet is wat u koopt" en de objectinformatie is van lagere prioriteit. Koper is in gelegenheid gesteld om deze maten op of na te meten en vrijwaart verkoper en diens makelaar van elke aansprakelijkheid wanneer hier toch afwijkingen in zouden voorkomen.
• Deze informatie is door ons met de nodige zorgvuldigheid samengesteld. Onzerzijds wordt echter geen enkele aansprakelijkheid aanvaard voor enige onvolledigheid, onjuistheid of anderszins, dan wel de gevolgen daarvan. Alle opgegeven maten en oppervlakten zijn indicatief
Kenmerken
Overdracht
- Laatste vraagprijs
- € 350.000 kosten koper
- Vraagprijs per m²
- € 3.182
- Status
- Verkocht
Bouw
- Soort woonhuis
- Eengezinswoning, eindwoning
- Soort bouw
- Bestaande bouw
- Bouwjaar
- 1960
- Soort dak
- Zadeldak bedekt met pannen
Oppervlakten en inhoud
- Gebruiksoppervlakten
- Wonen
- 110 m²
- Externe bergruimte
- 34 m²
- Perceel
- 212 m²
- Inhoud
- 395 m³
Indeling
- Aantal kamers
- 4 kamers (3 slaapkamers)
- Aantal badkamers
- 1 badkamer en 1 apart toilet
- Badkamervoorzieningen
- Douche, ligbad, toilet, en wastafelmeubel
- Aantal woonlagen
- 3 woonlagen
- Voorzieningen
- Dakraam
Energie
- Energielabel
- C
- Isolatie
- Dakisolatie
- Verwarming
- Cv-ketel
- Warm water
- Cv-ketel
- Cv-ketel
- Intergas (gas gestookt combiketel uit 2008, eigendom)
Kadastrale gegevens
- BAARLE-NASSAU C 1974
- Kadastrale kaart
- Oppervlakte
- 212 m²
- Eigendomssituatie
- Volle eigendom
Buitenruimte
- Ligging
- In centrum en in woonwijk
- Tuin
- Achtertuin en voortuin
- Achtertuin
- 0,14 meter diep en 0,06 meter breed
- Ligging tuin
- Gelegen op het zuidwesten bereikbaar via achterom
Bergruimte
- Schuur/berging
- Vrijstaande stenen berging
Garage
- Soort garage
- Vrijstaande stenen garage
- Capaciteit
- 1 auto
- Voorzieningen
- Elektrische deur
Parkeergelegenheid
- Soort parkeergelegenheid
- Openbaar parkeren
Foto's 46
© 2001-2025 funda













































