
Omschrijving
Ervaar dan de ruime indeling en de ligging.
Mooie vrijstaande semi- bungalow gelegen op een groot perceel grond van 980 m² met aangebouwde grote garage en berging. De tuin rondom de woning is keurig verzorgd.
Op loopafstand vindt u voorzieningen waaronder diverse winkels zoals een supermarkt, een bakker etc. En voor een heerlijke duik kunt u terecht in het nabije mooie Heuveltjesbosbad. Ook kun je in het nabij gelegen Heuveltjesbos heerlijk wandelen en ook genieten van het prachtige natuurgebied "Het Reestdal". Er is uitstekend openbaar vervoer naar o.a. Dedemsvaart, Zwolle, Hoogeveen en Ommen. De bushalten zijn op loopafstand.
Indeling van de bungalow;
Begane grond: mooie ruime entree, toilet met fontein, ruime woonkamer met sfeervolle grote erker waardoor een ruim uitzicht en veel daglicht in de kamer, woonkeuken voorzien van divers inbouwapparatuur, grote slaapkamer met aangrenzend een badkamer met douche, toilet en wastafel, praktische bijkeuken, tussenruimte als achteringang en berging tevens doorgang naar de ruime garage voor twee auto's van maar liefst 9,3 bij 6,8 meter. Boven de garage is ook een ruime bergzolder aanwezig.
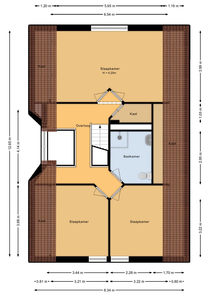
1e verdieping:
Overloop en 3 ruime slaapkamers en bergruimten. Grote badkamer met douche, toilet en wastafel. Van de grote slaapkamer aan de achterzijde kan op eenvoudige wijze twee slaapkamers gerealiseerd worden.
Het perceel is maar liefst 980 m². Een heerlijk ruimtelijk gevoel krijg je als je achter in de tuin staat. De tuin is netjes en verzorgd. De tuin grenst aan een kleine wadi en veel groen.
Algemeen:
- Centrale stofzuiger installatie door de hele bungalow.
- Bouwjaar is 2000
- Woning is voorzien van kunststof kozijnen
- Glasvezel is aanwezig
- Woning is rolstoelvriendelijk
- Vloerverwarming aanwezig op de begane grond
Deze bungalow is geschikt voor zowel een jong gezin of dat u wat ouder bent als levensloopbestendige woning.
Bent u nieuwsgierig? Neem contact op met ons kantoor en maak een afspraak.
Kenmerken
Overdracht
- Laatste vraagprijs
- € 695.000 kosten koper
- Vraagprijs per m²
- € 3.697
- Status
- Verkocht
Bouw
- Soort woonhuis
- Bungalow, vrijstaande woning (semi-bungalow)
- Soort bouw
- Bestaande bouw
- Bouwjaar
- 2000
- Soort dak
- Zadeldak bedekt met pannen
Oppervlakten en inhoud
- Gebruiksoppervlakten
- Wonen
- 188 m²
- Overige inpandige ruimte
- 102 m²
- Gebouwgebonden buitenruimte
- 2 m²
- Perceel
- 980 m²
- Inhoud
- 1.077 m³
Indeling
- Aantal kamers
- 8 kamers (4 slaapkamers)
- Aantal badkamers
- 2 badkamers en 1 apart toilet
- Badkamervoorzieningen
- 2 douches, 2 toiletten, en 2 wastafels
- Aantal woonlagen
- 2 woonlagen
- Voorzieningen
- Buitenzonwering, glasvezelkabel, en mechanische ventilatie
Energie
- Energielabel
- B
- Isolatie
- Volledig geïsoleerd
- Verwarming
- Cv-ketel en gedeeltelijke vloerverwarming
- Warm water
- Cv-ketel
- Cv-ketel
- Gas gestookt, eigendom
Kadastrale gegevens
- AVEREEST G 4089
- Kadastrale kaart
- Oppervlakte
- 980 m²
- Eigendomssituatie
- Volle eigendom
Buitenruimte
- Ligging
- Aan drukke weg, in bosrijke omgeving en in centrum
- Tuin
- Tuin rondom
Bergruimte
- Schuur/berging
- Inpandig
Garage
- Soort garage
- Aangebouwde stenen garage
- Capaciteit
- 2 auto's
- Voorzieningen
- Elektrische deur, vliering, elektra, verwarming en stromend water
- Isolatie
- Dakisolatie, gedeeltelijk dubbel glas en muurisolatie
Parkeergelegenheid
- Soort parkeergelegenheid
- Op eigen terrein
Foto's 56
© 2001-2025 funda























































