
Omschrijving
Twee- onder- een- kapwoning met dubbele garage met kap en aanbouw over twee verdiepingen.
In een rustige straat van Banholt.
Zie de sfeerimpressie van een verbouwingsuggestie.
Er is een leefkeuken gecreëerd en de woonkamer is gemoderniseerd.
Globale indeling
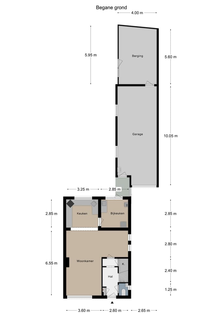
Begane grond
Entree met toegang naar het toilet. Trap naar de eerste verdieping en toegang naar de woonkamer.
Sfeervolle woonkamer (30 m²) met open haard en parketvloer. Airconditioning aanwezig (2022).
Halfopen keuken (8,6 m²) voorzien van een complete keuken voorzien van gasfornuis, afzuigkap, koelkast, afwasmachine en magnetron. De keuken is voorzien van een tegelvloer met vloerverwarming. Naast de keuken bevindt zich de bijkeuken (7m²) met witgoedaansluitingen, een keukenblok en de CV ketel. Toegang naar de tuin middels loopdeur.
Eerste verdieping
Overloop met toegang naar drie slaapkamers en de badkamer.
Vlizotrap naar de zolder. Drie ruime slaapkamers van 17 m², 16 m² en 14,7 m².
De badkamer (4,2 m²) met ligbad, wastafel en toilet.
Tweede verdieping
Bergzolder
Garage en berging
Royale garage gebouwd in 1998.
De garage heeft een totale oppervlakte van 40 m2 en achter de garage gelegen berging is 24 m2. In de garage is water, elektra (kracht) en verwarming aanwezig
Losse trap naar de vliering waar men nog zeer veel bergruimte heeft.
Voor de garage bevindt zich een ruime oprit voor 2 auto's.
Tuin
Achtertuin met twee terrassen, een vijver en diverse beplanting. Bij het terras aan de keuken bevindt zich een zonwering. De achtertuin is gelegen op het Noordoosten.
Relevante cijfers en informatie
- Bouwjaar woning 1969, aanbouw 1998.
- De woning is voorzien van 16 zonnepanelen (2021, eigendom).
- Energielabel C.
- De woning is voorzien van houten kozijnen met dubbel glas.
- Woonoppervlakte 118 m².
- Overige inpandige ruimte 7m².
- Externe bergruimte 64 m²
- Perceeloppervlakte 325 m².
Alle verstrekte informatie moet beschouwd worden als een uitnodiging tot het doen van een bod of om in onderhandeling te treden. Er kunnen geen rechten worden ontleend aan deze woning informatie. Alle maten zijn circa maten.
Ter bescherming van de belangen van zowel kopers als ook verkopers wordt uitdrukkelijk gesteld dat een koopovereenkomst met betrekking tot deze onroerende zaak eerst dan tot stand komt nadat kopers en verkopers de koopovereenkomst hebben getekend (schriftelijkheids vereiste).
Kenmerken
Overdracht
- Laatste vraagprijs
- € 395.000 kosten koper
- Vraagprijs per m²
- € 3.347
- Status
- Verkocht
Bouw
- Soort woonhuis
- Eengezinswoning, 2-onder-1-kapwoning
- Soort bouw
- Bestaande bouw
- Bouwjaar
- 1969
- Soort dak
- Zadeldak bedekt met pannen
Oppervlakten en inhoud
- Gebruiksoppervlakten
- Wonen
- 118 m²
- Overige inpandige ruimte
- 7 m²
- Externe bergruimte
- 64 m²
- Perceel
- 325 m²
- Inhoud
- 438 m³
Indeling
- Aantal kamers
- 4 kamers (3 slaapkamers)
- Aantal badkamers
- 1 badkamer en 1 apart toilet
- Badkamervoorzieningen
- Ligbad, toilet, en wastafel
- Aantal woonlagen
- 2 woonlagen
- Voorzieningen
- Zonnepanelen
Energie
- Energielabel
- C
Kadastrale gegevens
- EIJSDEN-MARGRATEN A 3794
- Kadastrale kaart
- Oppervlakte
- 325 m²
Parkeergelegenheid
- Soort parkeergelegenheid
- Op eigen terrein, openbaar parkeren en parkeergarage
Foto's 26
© 2001-2025 funda

























