
Omschrijving
Ben je op zoek naar een ruime hoekwoning met een prachtig uitzicht over water en groen, voorzien van een erker, dakkapel en een ruim dakterras, en zie je mogelijkheden om het interieur helemaal naar jouw smaak te transformeren? Deze woning biedt je de kans om met liefde, aandacht en creativiteit een unieke plek te creëren. Hoewel er wat werk aan de winkel is, liggen er voor de echte aanpakker ongekende mogelijkheden.
De woning is gelegen in de geliefde en kindvriendelijke wijk Vrijenburg in Barendrecht, op een rustige locatie in een autoluw hofje. Dankzij de centrale ligging zijn zowel Rotterdam als uitvalswegen zoals de A15 en A29 snel bereikbaar. Met de tramplus sta je bovendien binnen een half uur in de binnenstad van Rotterdam. In de directe omgeving vind je alle benodigde voorzieningen zoals basisscholen, kinderopvang, sportfaciliteiten en winkels. Voor natuurliefhebbers liggen het Vrijenburgpark, de Oude Maas en de Carnisse Grienden op korte afstand. Hierdoor combineer je stadsleven en ontspanning in de natuur op ideale wijze.
Artist Impressions
Dat deze woning zich perfect leent om te moderniseren, zie je terug in de artist impressions die ter inspiratie zijn toegevoegd aan de foto's. Ze geven een goed beeld van hoe je de bestaande ruimtes een geheel nieuw karakter kunt geven. Ben jij een creatieve aanpakker met fantasie en ruimtelijk inzicht? Dan biedt deze woning je alle kans om er een eigen droomhuis van te maken.
Indeling
Begane grond
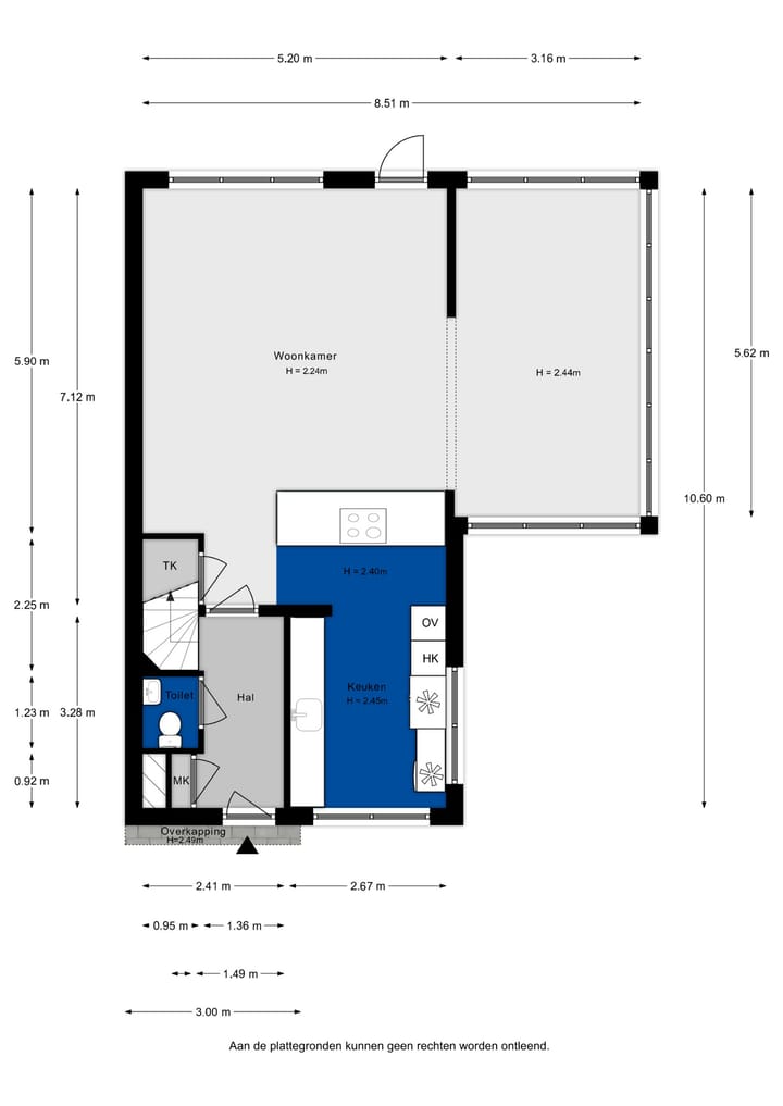
Entree met meterkast, trapopgang naar de eerste verdieping en toegang tot de woonkamer. In de hal vind je een compleet betegelde toiletruimte met zwevend closet en fonteintje.
De royale woonkamer is tuingericht en aan de zijkant uitgebouwd met een erker, wat een prachtig uitzicht biedt over de naastgelegen singel. Verder is de woonkamer voorzien van een handige trapkast en toegang tot de achtertuin via een deur. De erker, momenteel in gebruik als speelkamer met biljarttafel, kan ook dienen als eetkamer of werkgedeelte. Door het vele licht dat binnenvalt via de ramen, kan deze ruimte een waar pareltje worden. In de artist impressions zie je de mogelijkheden voor deze ruimte. Heb je zelf nog betere ideeën?
De ruime keuken aan de voorzijde van de woning beschikt over een kookeiland met afzuigkap, diverse inbouwapparatuur en een Amerikaanse koelkast.
De noordoostelijk gelegen achtertuin is betegeld en voorzien van fruitbomen, een houten berging en een achterom. Een overkapping of loungeplek aan de schuur creëren zou de tuin perfect maken, zodat je de hele dag van de tuin kunt genieten. Het uitzicht op de singel en het riet maakt deze plek extra aantrekkelijk.
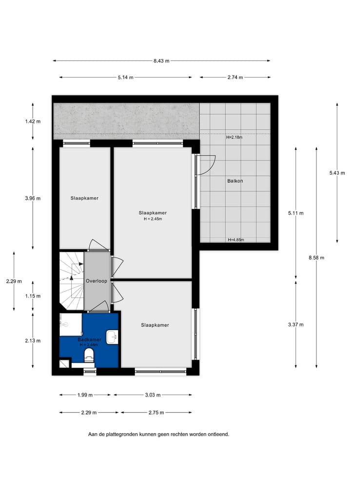
Eerste verdieping
Overloop met toegang tot de vertrekken. Aan de achterzijde van de woning vind je de eerste slaapkamer van circa 8 m², ideaal als kinderkamer of inloopkast. Daarnaast bevindt zich een royale tweede slaapkamer van 15 m² met directe toegang tot het ruime dakterras van 23 m² (inclusief balkon). Door het overhellende dak is een deel van het terras overdekt, wat veel voordelen biedt. Hier zou zelfs een extra kamer kunnen worden gecreëerd!
Aan de voorzijde van de woning ligt een derde slaapkamer van 10 m², met ramen aan de voor- en zijkant, waardoor deze kamer heerlijk licht is. De badkamer is volledig betegeld en voorzien van een ruime douche, wastafel en een wandcloset. Dankzij het raam geniet je ook hier van natuurlijk licht en ventilatie.
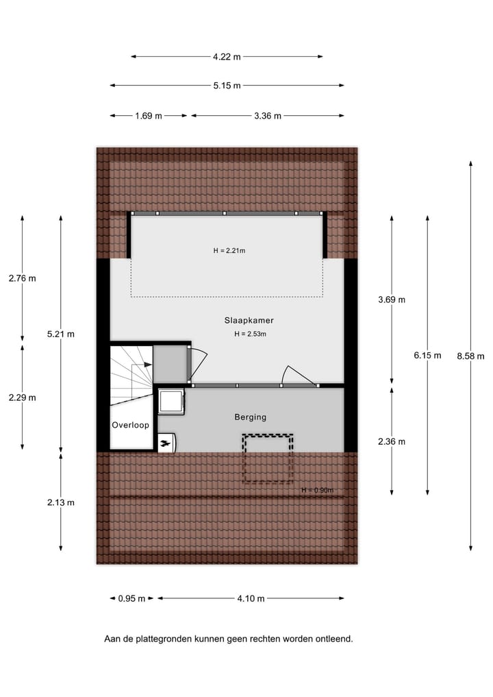
Tweede verdieping
Via een vaste trap bereik je de tweede verdieping. Deze ruime en lichte kamer heeft dankzij de dakkapel en het dakraam veel natuurlijk licht. Een scheidingswand deelt de ruimte momenteel in tweeën, met aan de voorzijde de wasruimte, cv-installatie en mechanische ventilatie, en aan de achterzijde een ruime kamer. Met de juiste ideeën kun je deze verdieping optimaal benutten en fraai afwerken.
Bijzonderheden
Bouwjaar: 2005
• Bouwjaar: 2004
• Woonoppervlakte circa 143 m²
• Inhoud circa 469 m³
• Perceeloppervlakte 206 m²
• De grond aan de zijkant van de voortuin hoort bij het perceel
• Verwarming en warm water via combiketel (2016)
• Royaal overkapt dakterras
• Ruime aanbouw met rondom ramen
• Energielabel A
• Voldoende parkeerplekken voor de deur
• In de directe omgeving zijn alle dagelijkse voorzieningen te vinden zoals openbaar vervoer, winkels, horeca, uitvalswegen en recreatiemogelijkheden
• Oplevering in overleg
Wij nodigen je van harte uit om deze ruime hoekwoning met unieke ligging zelf te komen bewonderen. Neem contact met ons op voor een vrijblijvende bezichtiging. We laten je graag alle mogelijkheden zien!
Kenmerken
Overdracht
- Laatste vraagprijs
- € 575.000 kosten koper
- Vraagprijs per m²
- € 4.021
- Status
- Verkocht
Bouw
- Soort woonhuis
- Herenhuis, hoekwoning
- Soort bouw
- Bestaande bouw
- Bouwjaar
- 2005
- Soort dak
- Zadeldak bedekt met pannen
Oppervlakten en inhoud
- Gebruiksoppervlakten
- Wonen
- 143 m²
- Gebouwgebonden buitenruimte
- 24 m²
- Externe bergruimte
- 9 m²
- Perceel
- 206 m²
- Inhoud
- 469 m³
Indeling
- Aantal kamers
- 5 kamers (4 slaapkamers)
- Aantal badkamers
- 1 badkamer en 1 apart toilet
- Badkamervoorzieningen
- Douche, toilet, en wastafel
- Aantal woonlagen
- 3 woonlagen
- Voorzieningen
- Mechanische ventilatie en natuurlijke ventilatie
Energie
- Energielabel
- A
- Isolatie
- Dakisolatie, dubbel glas, muurisolatie, vloerisolatie en volledig geïsoleerd
- Verwarming
- Cv-ketel
- Warm water
- Cv-ketel
- Cv-ketel
- Gas gestookt combiketel, eigendom
Kadastrale gegevens
- BARENDRECHT A 4281
- Kadastrale kaart
- Oppervlakte
- 206 m²
- Eigendomssituatie
- Volle eigendom
Buitenruimte
- Ligging
- Aan rustige weg, beschutte ligging, in woonwijk en open ligging
- Tuin
- Achtertuin, voortuin en zijtuin
- Achtertuin
- 85 m² (10,46 meter diep en 8,09 meter breed)
- Ligging tuin
- Gelegen op het noordwesten bereikbaar via achterom
- Balkon/dakterras
- Dakterras aanwezig en balkon aanwezig
Bergruimte
- Schuur/berging
- Vrijstaande houten berging
- Voorzieningen
- Elektra
- Isolatie
- Geen isolatie
Parkeergelegenheid
- Soort parkeergelegenheid
- Openbaar parkeren
Foto's 69
© 2001-2025 funda




































































