
Omschrijving
Nabij de bossen, het gezellige centrum, basisscholen en een speelveldje gelegen, uitgebouwd sfeervol HALFVRIJSTAAND WOONHUIS met een slaap- en een badkamer op de begane grond, parkeergelegenheid op eigen terrein en een onderhoudsarme besloten tuin met een houten tuinhuis en een veranda.
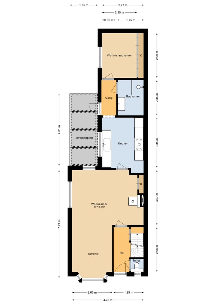
Indeling: hal, toilet, kelder, L-vormige woonkamer met een erker, bergkast, visgraat pvc vloer en aansluiting voor een pelletkachel, keuken voorzien van een koel-/vriescombinatie, 5-pits gasfornuis, rvs afzuigkap, afwasmachine, magnetron en een dubbele porseleinen spoelbak, gang, badkamer met een inloopdouche, wastafelmeubel en aansluiting voor de wasmachine, slaap-/werkkamer met een vaste kastenwand.
1e verdieping: overloop met bergruimte, dakkapel en een bergkast met een aansluiting voor de wasmachine, 3 slaapkamers waarvan 1 voorzien van een dakkapel.
Bergzolder.
Deze karakteristieke, smaakvol verbouwde jaren ’30 woning is voorzien van dakisolatie en grotendeels HR++ glas. Het buitenschilderwerk is in 2024 uitgevoerd.
Verwarming en warm water d.m.v. een HR combiketel (2013). Bouwjaar ca. 1938. Inhoud ca. 347 m³. Woonopp. ca. 87 m². Grondopp. 155 m². Energielabel D.
Verkopers aan het woord:
Een warm thuis, tot in de puntjes verzorgd
Na jaren met veel plezier in dit huis te hebben gewoond, is het tijd voor een nieuwe eigenaar die net zo zal genieten als wij hebben gedaan. We hebben met liefde in deze woning geïnvesteerd en het met oog voor detail en karakteristieke elementen verbouwd en afgestyled. Alles klopt, van de sfeervolle details tot het moderne comfort – een huis dat helemaal af is!
De ligging is perfect: het bos is letterlijk om de hoek, ideaal voor een wandeling, een fietstocht of gewoon om even de rust op te zoeken. Daarnaast draait de zon prachtig om het huis, waardoor je de hele dag door van het buitenleven kunt genieten. Of je nu ‘s ochtends een kop koffie drinkt in de eerste zonnestralen of ‘s avonds ontspant in de gezellige veranda, er is altijd een fijne plek om te zitten.
Ook de buurt is geweldig: een rustige, vriendelijke omgeving met fijne buren en alle voorzieningen binnen handbereik. We hopen dat de volgende bewoners hier net zo gelukkig worden als wij!
Kenmerken
Overdracht
- Laatste vraagprijs
- € 475.000 kosten koper
- Vraagprijs per m²
- € 5.460
- Status
- Verkocht
Bouw
- Soort woonhuis
- Eengezinswoning, halfvrijstaande woning
- Soort bouw
- Bestaande bouw
- Bouwjaar
- 1938
- Soort dak
- Zadeldak bedekt met pannen
Oppervlakten en inhoud
- Gebruiksoppervlakten
- Wonen
- 87 m²
- Overige inpandige ruimte
- 8 m²
- Gebouwgebonden buitenruimte
- 9 m²
- Externe bergruimte
- 5 m²
- Perceel
- 155 m²
- Inhoud
- 347 m³
Indeling
- Aantal kamers
- 5 kamers (4 slaapkamers)
- Aantal badkamers
- 1 badkamer
- Badkamervoorzieningen
- Inloopdouche en wastafelmeubel
- Aantal woonlagen
- 2 woonlagen en een zolder
- Voorzieningen
- Mechanische ventilatie, natuurlijke ventilatie, en rookkanaal
Energie
- Energielabel
- D
- Isolatie
- Dakisolatie, grotendeels dubbelglas en HR-glas
- Verwarming
- Cv-ketel
- Warm water
- Cv-ketel
- Cv-ketel
- Nefit HR Proline (gas gestookt combiketel uit 2013, eigendom)
Kadastrale gegevens
- BENNEKOM E 10877
- Kadastrale kaart
- Oppervlakte
- 155 m²
- Eigendomssituatie
- Volle eigendom
Buitenruimte
- Ligging
- Aan rustige weg, in bosrijke omgeving en in woonwijk
- Tuin
- Achtertuin, voortuin en zijtuin
Bergruimte
- Schuur/berging
- Vrijstaande houten berging
Parkeergelegenheid
- Soort parkeergelegenheid
- Op eigen terrein en openbaar parkeren
Foto's 46
© 2001-2025 funda













































