
Omschrijving
Welkom aan het Zilverschoonplein 2 in Bergen op Zoom! Deze keurig afgewerkte en verrassend ruime tussenwoning biedt alles wat je zoekt: ruimte, comfort en een gunstige ligging. Gelegen in een rustige en kindvriendelijke woonomgeving, op korte afstand van scholen, het stadscentrum én uitvalswegen, is dit het ideale huis voor gezinnen, thuiswerkers of (her) starters.
Indeling
Begane grond:
In de hal bevinden zich de meterkast, toegang tot de inpandige garage/berging en via de gang een slaapkamer. De verwarmde garage is multifunctioneel inzetbaar en beschikt over aansluitingen voor wasapparatuur. De slaapkamer op de begane grond is praktisch ingericht met een vaste wastafel (warm water niet aangesloten), ideaal als logeerkamer, werkkamer of hobbyruimte. Verder is er ook nog extra bergruimte dankzij de trapkast in de gang.
Eerste verdieping:
De sfeervolle woonkamer is afgewerkt met een houtkleurige vloer en dankzij de grote raampartijen is er volop natuurlijk daglicht. Hier creëer je met gemak een gezellige zithoek, los van de keuken. Ook is er in de hoek van de kamer een gezellige speelruimte gecreëerd voor de kinderen.
De moderne, afgesloten keuken (2017) is van alle gemakken voorzien: een inductiekookplaat, oven, vaatwasser, koelkast, vriezer, en volop bergruimte. Er is ook voldoende plek voor een gezellige eethoek. Via de keuken heb je toegang tot het zonnige balkon aan de achterzijde van de woning.
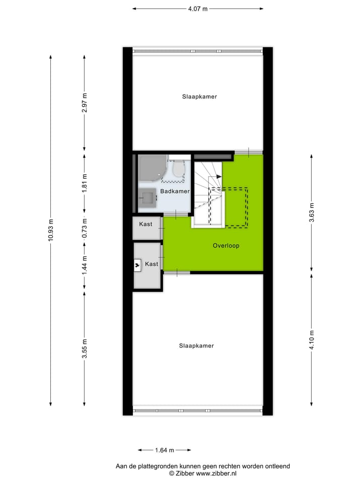
Tweede verdieping:
Op de overloop bevindt zich een lichtkoepel en twee handige inbouwkasten, waarvan één met de CV-opstelling (2014). Hier bevinden zich nog twee slaapkamers, beide met een nette laminaatvloer. De ruime slaapkamer aan de voorzijde is ontstaan uit twee kamers en biedt volop mogelijkheden. De badkamer is compleet uitgerust met een douchecabine, toilet, wastafelmeubel, designradiator én een tweede lichtkoepel die zorgt voor aangenaam daglicht.
Tuin:
De achtertuin is onderhoudsvriendelijk ingericht met strak straatwerk en enkele borders met beplanting. Dankzij de ligging is hier altijd wel een fijn plekje in de zon te vinden. Liever wat hoger zitten? Het balkon biedt een heerlijke uitwijkmogelijkheid. De tuin is ofwel via de achterpoort te bereiken of via een trap vanuit het balkon van de eerste verdieping.
Ben jij op zoek naar een instapklare woning met veel ruimte en een praktische indeling?
Dan is Zilverschoonplein 2 in Bergen op Zoom zeker een bezichtiging waard!
Algemeen:
- Dak vervangen in 2023;
- Kunststof kozijnen (begane grond voorzien van houten kozijnen);
- Gedeeltelijk rolluiken;
- Overdracht in overleg.
Kenmerken
Overdracht
- Laatste vraagprijs
- € 299.500 kosten koper
- Vraagprijs per m²
- € 2.674
- Status
- Verkocht
Bouw
- Soort woonhuis
- Eengezinswoning, tussenwoning
- Soort bouw
- Bestaande bouw
- Bouwjaar
- 1978
- Soort dak
- Plat dak bedekt met overig
Oppervlakten en inhoud
- Gebruiksoppervlakten
- Wonen
- 112 m²
- Overige inpandige ruimte
- 20 m²
- Gebouwgebonden buitenruimte
- 7 m²
- Perceel
- 111 m²
- Inhoud
- 465 m³
Indeling
- Aantal kamers
- 4 kamers (3 slaapkamers)
- Aantal badkamers
- 1 badkamer
- Badkamervoorzieningen
- Douche, toilet, wastafel, en wastafelmeubel
- Aantal woonlagen
- 3 woonlagen
Energie
- Energielabel
- C
- Isolatie
- Dakisolatie, dubbel glas en grotendeels dubbelglas
- Verwarming
- Cv-ketel
- Warm water
- Cv-ketel
- Cv-ketel
- Remeha (gas gestookt combiketel uit 2014, eigendom)
Kadastrale gegevens
- BERGEN OP ZOOM D 3689
- Kadastrale kaart
- Oppervlakte
- 111 m²
- Eigendomssituatie
- Volle eigendom
Buitenruimte
- Ligging
- Aan rustige weg en in woonwijk
- Tuin
- Achtertuin
- Balkon/dakterras
- Balkon aanwezig
Bergruimte
- Schuur/berging
- Inpandig
Garage
- Soort garage
- Inpandig
- Capaciteit
- 1 auto
Parkeergelegenheid
- Soort parkeergelegenheid
- Op eigen terrein en openbaar parkeren
Foto's 25
© 2001-2025 funda
























