
Omschrijving
In een rustige straat met eenrichtingsverkeer en veel volwassen bomen en groen bieden wij u deze verrassend ruime eindwoning met vrijstaande garage aan. De garage is tevens vanuit de achtertuin te bereiken.
De woning heeft een woonoppervlakte van maar liefst circa 137m² en een diepe en zonnige achtertuin op het zuid oosten met veel privacy. Het pannendak is eind 2021 vernieuwd en de c.v. combi ketel in 2023. De woning is daarnaast voorzien van onderhoudsvriendelijke kunststof kozijnen met dubbele beglazing en op meerdere plaatsen van rolluiken.
De woning is op de begane grond onder andere voorzien van een speels ingedeelde leefruimte met semi open keuken. De keuken is van alle gemakken voorzien. Op de eerste verdieping zijn drie ruime slaapkamers, een licht betegelde badkamer en een separaat toilet aanwezig. Via een vaste trap bevindt zich op de tweede verdieping naast een ruime voorzolder met volop bergruimte een grote, vierde slaapkamer met dakkapel. De fraai aangelegde achtertuin biedt veel zon en privacy en geeft naast een achterom toegang tot de garage.
De ligging is ideaal: de woning ligt in een prachtige, groene en rustige straat met veel volwassen bomen. De locatie is erg kindvriendelijk en op loopafstand van diverse scholen en sportvoorzieningen. De prachtige nieuwe dorpskern is daarnaast binnen 5 minuten op de fiets te bereiken met een zeer gevarieerd winkelaanbod waaronder een Albert Heijn, Aldi en Jumbo, speciaalzaken, restaurants en een gezondheidscentrum.
Het centrum van Tilburg is vlot bereikbaar via de Bosscheweg en de A65 en A58 richting de omliggende steden ’s-Hertogenbosch, Eindhoven en Breda zijn tevens binnen enkele minuten bereikbaar. Voor degenen die graag de natuur opzoeken voor een mooie wandeling of fietstocht kunnen zowel naar de Loonse en Drunense Duinen als naar de Oisterwijkse bossen en vennen.
Bouwjaar: ca. 1971
Inhoud: ca. 481m³
Perceeloppervlakte: 234m²
Aanvaarding: In overleg
Indeling
Begane grond
Entree, ruime hal met tegelvloer, meterkast en een gedeeltelijk betegelde toiletruimte met mozaïek tegelwerk, een vrij hangend toilet en een fontein.
De hal geeft toegang tot de woonkamer en trapopgang naar de eerste verdieping.
Sfeervolle en speels ingedeelde woonkamer circa 41m² (inclusief keuken) die verdeeld is in een zitgedeelte, eetgedeelte en een semi open keuken.
Het zitgedeelte is aan de voorzijde van de woning gelegen en voorzien van een tegelvloer met vloerwarming, stucwerk wandafwerking en een rolluik. Het grote raam wat tot de vloer doorloopt geeft een fraai zicht op de voortuin en het straatbeeld.
Aan de achterzijde is het eetgedeelte gelegen met dezelfde doorlopende tegelvloer en een schuifpui naar de achtertuin. Vanuit het eetgedeelte is er een fraai zicht op de achtertuin en het zij raam biedt zicht op het naast de woning gelegen groen. De vele raampartijen zorgen daarnaast voor extra lichtinval.
Semi open keuken met keukeninrichting in hoekopstelling. De keukeninrichting is voorzien van diverse inbouwapparatuur zoals een keramische kookplaat, afzuigkap, koel-/ vriescombinatie, combi magnetron (eind 2023) en een vaatwasser.
Eerste verdieping
Ruime overloop die toegang geeft tot drie ruime slaapkamers, de badkamer en een separaat toilet.
Voorslaapkamer circa 17m² met Frans balkon, achterslaapkamer circa 14m² voorzien van een vaste wastafel met meubel en een achterslaapkamer circa 7m². Alle slaapkamers zijn voorzien van rolluiken.
Licht betegelde badkamer voorzien van een dubbele wastafel met meubel, inloopdouche met thermostaat kraan en een warmtepaneel.
Separate en gedeeltelijk betegelde toiletruimte met mozaïek tegelwerk en een vrij hangend toilet.
Tweede verdieping
Via een vaste trap is de voorzolder te bereiken met zij raam, volop bergruimte en een airco. Er is daarnaast een inloopberging aanwezig met de c.v. combi ketel (Remeha 2023, hybride voorbereid) en de aansluitingen voor de wasapparatuur.
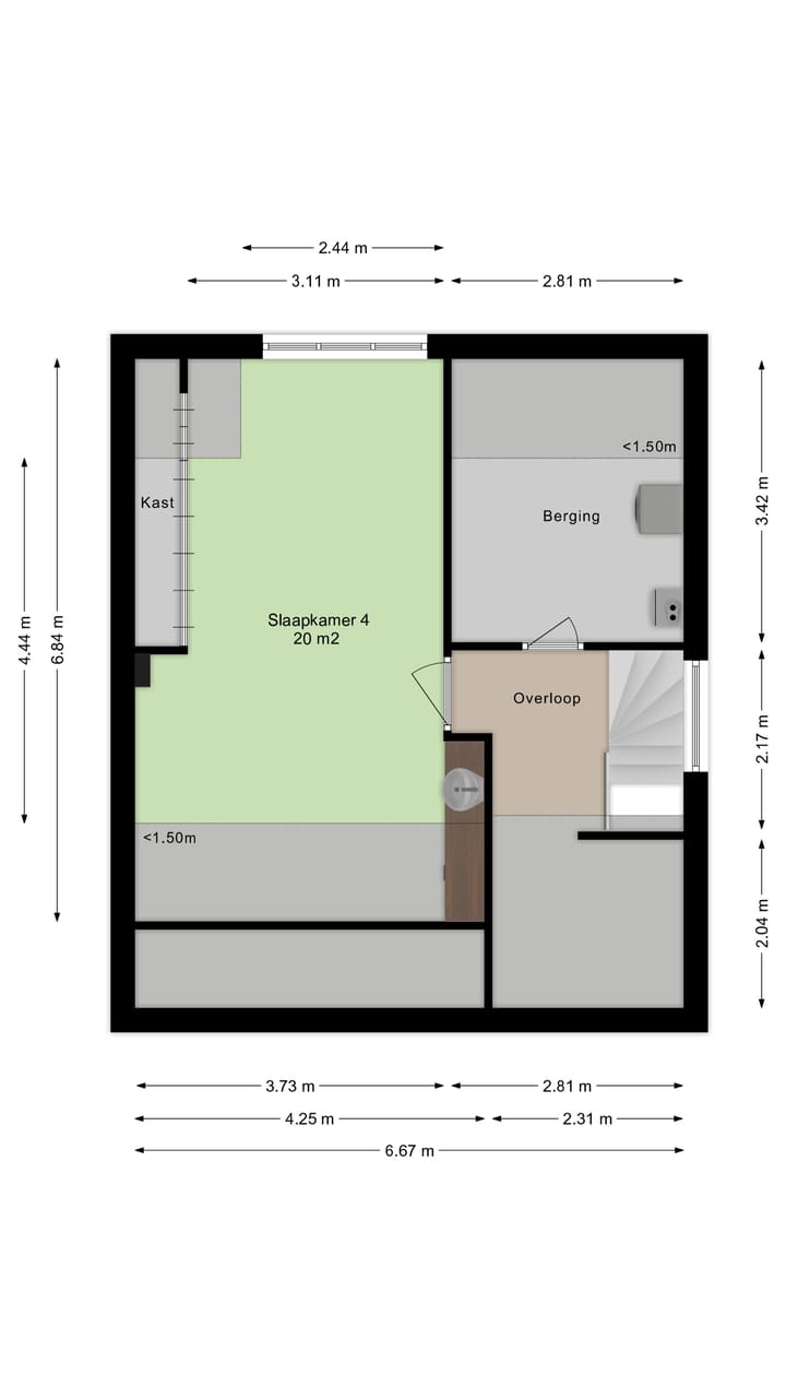
Ruime zolderslaapkamer circa 20m² met grote kunststof dakkapel (eind 2017) voorzien van een screen, vaste wastafel met meubel en een vaste kastenwand.
Buiten
Via de onderhoudsvriendelijke voortuin is de entree van de woning te bereiken.
De fraai aangelegde achtertuin ligt op het zonnige zuid oosten, zodat u heerlijk van de zon kunt genieten. Vanwege de ligging op een hoek biedt de tuin volop privacy. In de achtertuin zijn een groot terras, graspartij, diverse prachtige borders en een vijverpartij aanwezig.
Vrijstaande stenen garage die vanuit de achtertuin toegankelijk is. De garage is voorzien van een elektrisch bedienbare, geïsoleerde sectiedeur en de dakbedekking is in 2012 vernieuwd.
Algemeen
- Ruim opgezette eindwoning met diepe achtertuin en vrijstaande garage.
- De woning is voorzien van kunststof kozijnen met dubbele beglazing.
- Op meerdere plaatsen voorzien van rolluiken.
- De woning is ideaal gelegen nabij alle voorzieningen.
- In de straat is volop openbare parkeergelegenheid aanwezig.
- Bij een verkoop wordt als basis gebruik gemaakt van het model van de koopovereenkomst, vastgesteld door de Nederlandse Vereniging van Makelaars in onroerende goederen NVM, de Consumentenbond en de Vereniging Eigen Huis. In deze koopovereenkomst wordt standaard de verplichting tot het storten van een waarborgsom of het stellen van een bankgarantie door de koper ter grootte van 10% van de koopsom opgenomen.
- Een koopovereenkomst komt tot stand onder de opschortende voorwaarde dat beide partijen de koopovereenkomst ondertekenen. Partijen kunnen derhalve noch aan een mondelinge overeenkomst, noch aan een schriftelijke bevestiging daarvan, rechten ontlenen.
- Deze brochure bestaat uit vrijblijvende informatie en is met de grootste zorg samengesteld, echter aan de inhoud van deze brochure kunnen geen rechten worden ontleend. Indelingstekeningen en maatvoeringen zijn slechts indicatief, kunnen afwijken van de werkelijke situatie en zijn uitsluitend bedoeld om een indruk te geven van de indeling.
Kenmerken
Overdracht
- Laatste vraagprijs
- € 475.000 kosten koper
- Vraagprijs per m²
- € 3.467
- Status
- Verkocht
Bouw
- Soort woonhuis
- Eengezinswoning, eindwoning
- Soort bouw
- Bestaande bouw
- Bouwjaar
- 1971
- Soort dak
- Zadeldak bedekt met pannen
Oppervlakten en inhoud
- Gebruiksoppervlakten
- Wonen
- 137 m²
- Gebouwgebonden buitenruimte
- 1 m²
- Externe bergruimte
- 19 m²
- Perceel
- 234 m²
- Inhoud
- 481 m³
Indeling
- Aantal kamers
- 5 kamers (4 slaapkamers)
- Aantal badkamers
- 1 badkamer en 2 aparte toiletten
- Badkamervoorzieningen
- Douche, dubbele wastafel, inloopdouche, en wastafelmeubel
- Aantal woonlagen
- 2 woonlagen en een zolder
- Voorzieningen
- Airconditioning, buitenzonwering, rolluiken, schuifpui, en TV kabel
Energie
- Energielabel
- D
- Isolatie
- Dubbel glas
- Verwarming
- Cv-ketel en gedeeltelijke vloerverwarming
- Warm water
- Cv-ketel
- Cv-ketel
- Remeha (gas gestookt combiketel uit 2023, eigendom)
Kadastrale gegevens
- BERKEL B 2670
- Kadastrale kaart
- Oppervlakte
- 213 m²
- Eigendomssituatie
- Volle eigendom
- BERKEL B 2656
- Kadastrale kaart
- Oppervlakte
- 21 m²
- Eigendomssituatie
- Volle eigendom
Buitenruimte
- Ligging
- Aan rustige weg en in woonwijk
- Tuin
- Achtertuin en voortuin
- Achtertuin
- 108 m² (15,79 meter diep en 6,84 meter breed)
- Ligging tuin
- Gelegen op het zuidoosten bereikbaar via achterom
Garage
- Soort garage
- Vrijstaande stenen garage
- Capaciteit
- 1 auto
- Voorzieningen
- Elektrische deur en elektra
Parkeergelegenheid
- Soort parkeergelegenheid
- Openbaar parkeren
Foto's 70
© 2001-2025 funda





































































