
Omschrijving
Liefhebbers van karakteristieke panden opgelet!
Dit prachtig verbouwde grachtenpand met fraaie "Jugendstil" voorgevel is te koop.
Deze karakteristieke woning van het bouwjaar 1875 is prachtig gelegen op een rustige locatie in het stadscentrum. De sfeervolle woonkamer met balkenplafond, suitedeuren en schouw geeft een prachtig uitzicht op de stadsgracht. De woning beschikt over een aangebouwde keuken/bijkeuken en een diepe achtertuin met stenen bergschuur. Het geheel is gelegen op een perceel eigen grond van 184 m².
De Dijlakker is één van de oudste straten van Bolsward. Vanaf de woning wandelt u zo naar de winkelvoorzieningen. Het centrum van Bolsward met zijn rijke historie heeft vele winkels en bezienswaardigheden te bieden. Dankzij de Afsluitdijk en de A7 zijn zowel de Randstad als Groningen in één uur te bereiken.
Indeling
Entree, lange gang met balkenplafond, klassieke boog, meterkast en trapopgang. De traditionele woonkamer en suite beschikt over een balkenplafond, houten vloer en een fraaie kastenwand met ensuite glas-in-lood schuifdeuren. Het zitgedeelte bevindt zich aan de voorzijde van het pand en heeft uitzicht op de stadsgracht. De eetkamer is tuingericht en voorzien van openslaande tuindeuren naar de diepe achtertuin. De gang eindigt in de aanbouw. Hier bevinden zich de keuken met kelder en de bijkeuken met toiletruimte. De keuken heeft een wandopstelling met ramen boven het werkblad. De bijkeuken heeft praktische afmetingen en voldoende ruimte voor witgoed. Vanuit de bijkeuken is er toegang naar de achtertuin. De achtertuin heeft een goede zonligging op het zuidoosten. De tuin is fraai aangelegd met sierbestrating, bomen, borders en een stenen berging.
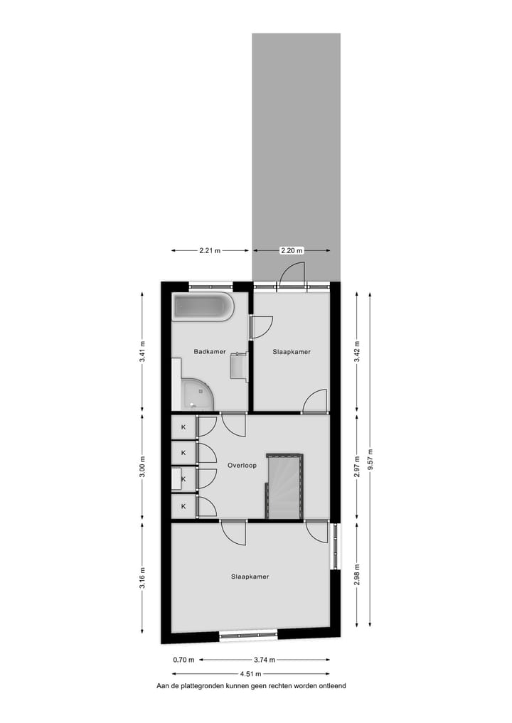
Eerste verdieping
De verdieping beschikt over een centrale overloop met vide, voorzien van veel ruimte en lichtinval. Vanaf de overloop is er toegang naar de 2 slaapkamers en de badkamer. De grote slaapkamer aan de voorzijde heeft veel lichtinval door ramen aan 2 zijden. De slaapkamer aan de achterzijde geeft toegang naar het platte dak van de aanbouw. (3 slaapkamers mogelijk) De badkamer is voorzien van vrijstaand ligbad, douche en wastafel. Een grote kastenwand op de overloop biedt veel bergruimte. Middels een rechte steektrap is er toegang naar de slaapzolder op de 2e verdieping. De andere helft van de 2e verdieping is in gebruik als bergzolder.
Tuin
De beschutte achtertuin is onderhoudsvriendelijk aangelegd met bestrating en plantenborders. De tuin heeft een prettige zonligging op het zuidoosten. Hier kan men zich terugtrekken uit de drukte van de binnenstad en heerlijk genieten van de rust. Achterin de tuin staat een sfeervolle stenen bergschuur. De tuin heeft geen achterom. Aan de voorzijde van de woning bevindt u zich aan de stadsgracht, nabij het gezellige stadscentrum van Bolsward.
Bijzonderheden
* Toplocatie bij stadsgracht en centrum;
* Op loopafstand van alle stadsvoorzieningen;
* Diepe achtertuin;
* 2 slaapkamers en een slaapzolder;
* Woonkamer en suite;
* Energielabel D;
* Remeha cv-ketel 2017;
* Geïsoleerde dakconstructie;
* Houten kozijnen;
* Dubbele beglazing;
* Gemeentelijk monument;
* Beschermd stadsgezicht;
* In de directe omgeving parkeergelegenheid;
* Dankzij de A7 zijn de Randstad en Groningen in ± één uur te bereiken;
* Bezichtiging uitsluitend via de makelaar.
Kenmerken
Overdracht
- Laatste vraagprijs
- € 379.000 kosten koper
- Vraagprijs per m²
- € 3.716
- Status
- Verkocht
Bouw
- Soort woonhuis
- Grachtenpand, geschakelde woning
- Soort bouw
- Bestaande bouw
- Bouwjaar
- 1875
- Soort dak
- Zadeldak bedekt met pannen
Oppervlakten en inhoud
- Gebruiksoppervlakten
- Wonen
- 102 m²
- Overige inpandige ruimte
- 4 m²
- Gebouwgebonden buitenruimte
- 2 m²
- Externe bergruimte
- 10 m²
- Perceel
- 184 m²
- Inhoud
- 417 m³
Indeling
- Aantal kamers
- 3 kamers (2 slaapkamers)
- Aantal badkamers
- 1 badkamer en 1 apart toilet
- Badkamervoorzieningen
- Douche, ligbad, en wastafel
- Aantal woonlagen
- 2 woonlagen en een zolder
- Voorzieningen
- Natuurlijke ventilatie
Energie
- Energielabel
- D
- Isolatie
- Dakisolatie, dubbel glas en muurisolatie
- Verwarming
- Cv-ketel
- Warm water
- Cv-ketel
- Cv-ketel
- Remeha (gas gestookt combiketel uit 2017, eigendom)
Kadastrale gegevens
- BOLSWARD A 891
- Kadastrale kaart
- Oppervlakte
- 184 m²
- Eigendomssituatie
- Volle eigendom
Buitenruimte
- Tuin
- Achtertuin
- Achtertuin
- 55 m² (11,00 meter diep en 5,00 meter breed)
- Ligging tuin
- Gelegen op het zuidoosten
Bergruimte
- Schuur/berging
- Vrijstaande stenen berging
Parkeergelegenheid
- Soort parkeergelegenheid
- Openbaar parkeren
Foto's 52
© 2001-2025 funda



















































