
Omschrijving
Deze tussenwoning aan de Schijndelseweg 124 heeft vier slaapkamers, een uitgebouwde woonkamer en extra garagebox. De woning is met zorg onderhouden, al zijn sommige elementen wat gedateerd. Het biedt volop mogelijkheden en comfort, met een fijne indeling en een ruime achtertuin op het zonnige zuidwesten.
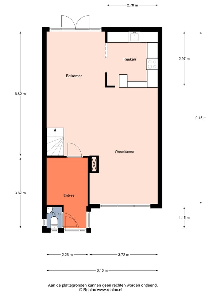
Indeling.
Begane grond: je komt binnen in de hal met de meterkast en een toiletruimte. De uitgebouwde woonkamer is voorzien van een fraaie parketvloer en heeft een gezellige gashaard die zorgt voor extra sfeer. De open keuken heeft een Bulthaup interieur en is uitgerust met inbouwapparatuur. Een gezellig barretje fungeert als natuurlijke scheiding tussen de keuken en de woonkamer.
Eerste verdieping: op de eerste verdieping vind je de overloop, drie ruime slaapkamers en de badkamer. De badkamer is praktisch ingedeeld met een ligbad, een douche, een toilet, twee wastafels en aansluitingen voor wasapparatuur.
Tweede verdieping: via een vaste trap is de voorzolder bereikbaar, waar de cv-combiketel (lease) is opgesteld. De ruime vierde slaapkamer heeft een wastafel en een dakkapel, wat zorgt voor extra licht en ruimte. Ook is er bergruimte onder de schuine delen van het dak.
Buiten: de achtertuin ligt op het zuidwesten en heeft een gezellig zonneterras met een grote luifel, ideaal voor lange zomeravonden. Achterin de tuin staat een stenen berging, en er is een poort naar het achtergelegen parkeerterrein. Bovendien beschikt de woning over een losse garagebox, perfect voor extra opslag of als parkeerplek.
Deze woning biedt veel potentieel en is ideaal voor wie op zoek is naar ruimte, een fijne locatie en de mogelijkheid om het naar eigen wens aan te passen.
Kenmerken
Overdracht
- Laatste vraagprijs
- € 405.000 kosten koper
- Vraagprijs per m²
- € 3.022
- Status
- Verkocht
Bouw
- Soort woonhuis
- Eengezinswoning, tussenwoning
- Soort bouw
- Bestaande bouw
- Bouwjaar
- 1972
- Soort dak
- Zadeldak bedekt met pannen
Oppervlakten en inhoud
- Gebruiksoppervlakten
- Wonen
- 134 m²
- Externe bergruimte
- 29 m²
- Perceel
- 189 m²
- Inhoud
- 479 m³
Indeling
- Aantal kamers
- 5 kamers (4 slaapkamers)
- Aantal badkamers
- 1 badkamer en 1 apart toilet
- Badkamervoorzieningen
- Douche, dubbele wastafel, ligbad, en toilet
- Aantal woonlagen
- 3 woonlagen
- Voorzieningen
- Buitenzonwering, natuurlijke ventilatie, en TV kabel
Energie
- Energielabel
- C
- Isolatie
- Dubbel glas
- Verwarming
- Cv-ketel
- Warm water
- Cv-ketel
- Cv-ketel
- Gas gestookt combiketel, lease
Kadastrale gegevens
- BOXTEL D 2919
- Kadastrale kaart
- Oppervlakte
- 169 m²
- Eigendomssituatie
- Volle eigendom
- BOXTEL D 2912
- Kadastrale kaart
- Oppervlakte
- 20 m²
- Eigendomssituatie
- Volle eigendom
Buitenruimte
- Ligging
- Aan rustige weg en in woonwijk
- Tuin
- Achtertuin en voortuin
- Achtertuin
- 69 m² (11,50 meter diep en 6,00 meter breed)
- Ligging tuin
- Gelegen op het zuidwesten bereikbaar via achterom
Bergruimte
- Schuur/berging
- Vrijstaande stenen berging
Garage
- Soort garage
- Garagebox
- Capaciteit
- 1 auto
Parkeergelegenheid
- Soort parkeergelegenheid
- Openbaar parkeren
Foto's 57
© 2001-2025 funda
























































