
Omschrijving
Deze leuke en instapklare eindwoning met vrijstaande berging én eigen parkeerplaats is perfect gelegen in de kindvriendelijke wijk Geeren-Zuid. Met voorzieningen zoals basisscholen, middelbare scholen, een medisch centrum en het winkelcentrum Hoge Vught binnen handbereik, combineert deze locatie comfort met gemak. Het bruisende stadscentrum bevindt zich bovendien op korte fietsafstand. Binnen vind je een sfeervolle living met open keuken, vier ruime slaapkamers en een moderne en luxe badkamer. De onderhoudsvriendelijke achtertuin biedt volop ruimte voor een gezellig terras, waar je heerlijk kunt ontspannen. Via de handige poort heb je direct toegang tot de achtergelegen mandelige parkeerplaats. Je wordt ook mede-eigenaar van dit plein dus je hebt alle recht om jouw auto op één van de parkeerplaatsen te parkeren.
Een ideale woning voor iedereen die op zoek is naar comfortabel wonen in een fijne buurt!
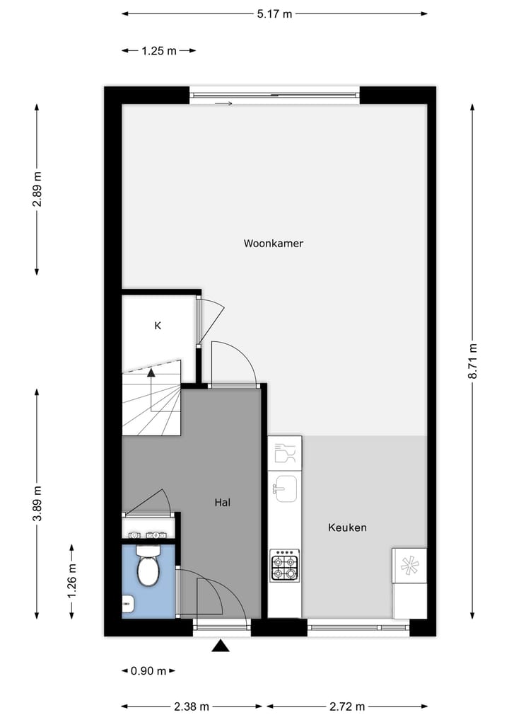
BEGANE GROND
De voorentree/hal geeft toegang tot de toiletruimte en de living. Via een trap is de eerste verdieping bereikbaar.
De toiletruimte is uitgerust met een fonteintje.
De sfeervolle en lichte living straalt warmte en comfort uit en is ingedeeld met een uitnodigende zithoek. De royale aluminium schuifpui zorgt voor een naadloze overgang naar de achtertuin, waar binnen en buiten harmonieus samenkomen. Daarnaast is er nog een praktische vaste kast onder de trap aanwezig, ideaal voor extra opbergruimte. De open verbinding met de keuken maakt deze ruimte ideaal voorgezellige momenten met familie en vrienden.
De moderne open keuken in praktische hoekopstelling combineert stijl met functionaliteit. Voorzien van een onderhoudsvriendelijk kunststof aanrechtblad biedt deze keuken alles wat je nodig hebt: een 4-pits gaskookplaat, een spoelbak, twee combimagnetrons, een vaatwasser en een afzuigkap.
Hier kook je met plezier en gemak!
EERSTE VERDIEPING
De overloop geeft toegang tot drie slaapkamers, de badkamer en de trap naar de eerste verdieping.
De eerste slaapkamer is gelegen aan de voorzijde
De tweede slaapkamer is gelegen aan de rechter achterzijde
De derde slaapkamer is gelegen aan de linker achterzijde.
De luxe, moderne badkamer is voorzien van een ruim ligbad met handige nisjes voor verzorgingsproducten. Verder is deze ruimte voorzien van een inloopdouche met thermostaatkraan én een regendouche en handdouche. Het zwevende toilet en het elegante wastafelmeubel maken het geheel compleet en strak afgewerkt.
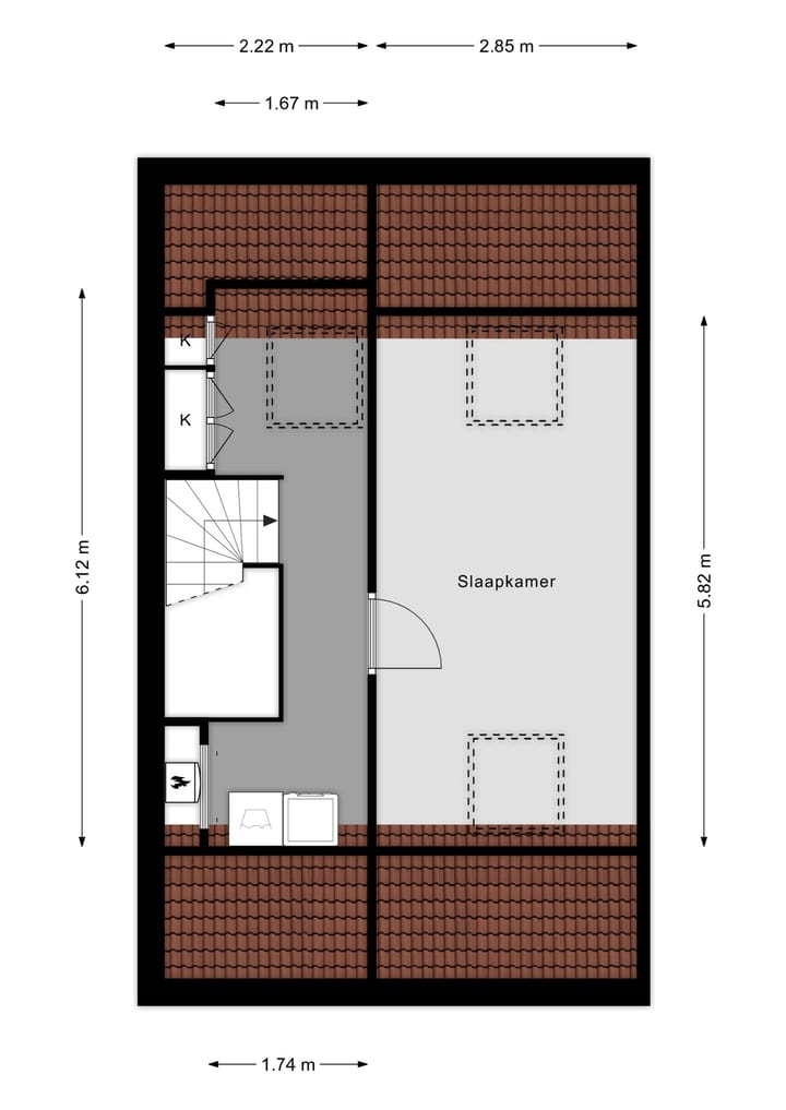
TWEEDE VERDIEPING
De voorzolder is praktisch ingericht en voorzien van een vaste kast, ideaal voor extra opbergruimte. Daarnaast vind je hier de aansluitingen voor zowel de wasmachine als de droger, wat deze ruimte extra functioneel maakt.
De vierde slaapkamer is slim ingericht en voorzien van twee Velux dakramen, die zorgen voor volop natuurlijk licht en een ruimtelijk gevoel. Daarnaast biedt de ingebouwde vaste kast onder de dak schuinte praktische opbergruimte, waardoor de kamer optimaal benut wordt.
EXTERIEUR
De vrijstaande berging is opgebouwd uit hout en voorzien van een plat dak met EPDM-bedekking. De ruimte is praktisch ingericht en beschikt over elektra, waardoor het ideaal is voor opslag of als kleine klusruimte.
Verzorgd aangelegde voor- en achtertuin. De onderhoudsvriendelijke achtertuin biedt een terras waar je heerlijk kunt ontspannen. Via de poort heb je toegang tot het mandelige parkeerterrein, waarvan je mede-eigenaar bent en recht hebt op één van de parkeerplaatsen.
Kenmerken
Overdracht
- Laatste vraagprijs
- € 450.000 kosten koper
- Vraagprijs per m²
- € 3.814
- Status
- Verkocht
Bouw
- Soort woonhuis
- Eengezinswoning, eindwoning
- Soort bouw
- Bestaande bouw
- Bouwjaar
- 2014
- Soort dak
- Zadeldak bedekt met pannen
Oppervlakten en inhoud
- Gebruiksoppervlakten
- Wonen
- 118 m²
- Externe bergruimte
- 6 m²
- Perceel
- 123 m²
- Inhoud
- 439 m³
Indeling
- Aantal kamers
- 6 kamers (4 slaapkamers)
- Aantal badkamers
- 1 badkamer en 1 apart toilet
- Badkamervoorzieningen
- Inloopdouche, ligbad, toilet, wastafel, en wastafelmeubel
- Aantal woonlagen
- 3 woonlagen
- Voorzieningen
- Dakraam, glasvezelkabel, en schuifpui
Energie
- Energielabel
- A
- Isolatie
- Dakisolatie, HR-glas, muurisolatie en vloerisolatie
- Verwarming
- Cv-ketel
- Warm water
- Cv-ketel
- Cv-ketel
- Intergas Kompakt HRE (gas gestookt combiketel uit 2014, eigendom)
Kadastrale gegevens
- BREDA G 7670
- Kadastrale kaart
- Oppervlakte
- 123 m²
- Eigendomssituatie
- Volle eigendom
Buitenruimte
- Ligging
- In woonwijk
- Tuin
- Achtertuin
Bergruimte
- Schuur/berging
- Vrijstaande houten berging
- Voorzieningen
- Elektra
Parkeergelegenheid
- Soort parkeergelegenheid
- Openbaar parkeren
Foto's 34
© 2001-2025 funda

































