
Omschrijving
Instapklare tussenwoning gelegen op een van de mooiste plekjes van Breda in de wijk Boeimeer! De woning beschikt over een ruime woonkamer, dichte keuken, 4 slaapkamers en een achtertuin gelegen op het zuidwesten met vrijstaande stenen berging en een eigen achterom. Op loopafstand van de woning bevinden zich het bruisende centrum, het Mastbos/Markdal en de verschillende winkels en restaurantjes aan de Ginnekenweg. De zuidelijke rondweg is op enkele minuten rijden en de aansluiting op de A16, A27 en A58 is zeer eenvoudig bereikbaar.
KENMERKEN:
INSTAPKLARE TUSSENWONING GELEGEN IN DE WIJK BOEIMEER
VRIJ UITZICHT OVER HET PARK AAN DE VOORZIJDE
RUIME EN SFEERVOLLE WOONKAMER
4 SLAAPKAMERS
ACHTERTUIN EN BALKON GELEGEN OP HET ZUIDWESTEN
BEGANE GROND:
Middels fraai aangelegde voortuin toegang tot de entree van de woning.
HAL/ENTREE
Ruime hal voorzien van een tegelvloer, garderobeplek, trapopgang naar de eerste verdieping en waarvan toegang tot;
KELDER
(ca. 3.55 x 1.95 m) De kelder op stahoogte is voorzien van een meterkast (8 groepen en 2 aardlekschakelaars).
TOILET
Deels betegeld toilet voorzien van een fonteintje.
WOONKAMER
Ruime woonkamer voorzien van een parketvloer, open haard en een fraai vrij uitzicht over het park aan de voorzijde. Middels een loopdeur heeft men toegang tot de achtertuin.
KEUKEN
Gesloten keuken in 2-zijdige opstelling voorzien van een tegelvloer. De werkzijde beschikt over een kunststof werkblad met een RVS spoelbak, 4-pits gaskookplaat, RVS afzuigkap, combimagnetron, vaatwasser, koelkast met vriesvak en diverse onder- en bovenkasten/laden. De wandzijde beschikt eveneens over een kunststof werkblad met diverse onder- en bovenkasten. Middels een loopdeur heeft men toegang tot de achtertuin.
ACHTERTUIN
(ca. 11.65 x 6.05 m) Ruime achtertuin welke is gelegen op het zuidwesten. De tuin is grotendeels sierbestraat en deels groen aangelegd. De tuin beschikt over diverse terrassen, een waterpunt en biedt toegang tot de vrijstaande stenen berging en een eigen achterom.
BERGING
(ca. 3.00 x 2.00 m) Vrijstaande stenen berging voorzien van elektra.
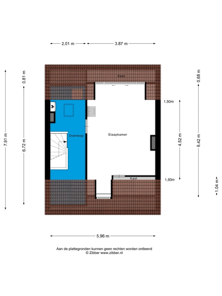
EERSTE VERDIEPING:
Via vaste trap toegang tot de eerste verdieping.
OVERLOOP
Ruime overloop voorzien van een laminaatvloer, ruime vaste kast (mogelijkheid tot creëren van een wasruimte of een toilet), trapopgang naar tweede verdieping en waarvan toegang tot;
SLAAPKAMER 1
Ruime slaapkamer gelegen aan de achterzijde van de woning en voorzien van een laminaatvloer en een vaste kast.
SLAAPKAMER 2
Ruime slaapkamer gelegen aan de voorzijde van de woning en voorzien van een laminaatvloer en een tweetal vaste kasten.
SLAAPKAMER 3
Eveneens gelegen aan de voorzijde van de woning en voorzien van een laminaatvloer.
BADKAMER
Geheel betegelde badkamer voorzien van een douchecabine met thermostaatkraan, regendouche en separate handdouche, een vaste wastafel in meubel en een zwevend closet. Tevens beschikt de badkamer over een designradiator en inbouwspots. Middels een loopdeur heeft men toegang tot het balkon gelegen aan de achterzijde.
BALKON
(ca. 1.50 x 0.95 m) gelegen op het zuidwesten en aan de achterzijde van de woning.
TWEEDE VERDIEPING:
Via vaste trap toegang tot de tweede verdieping.
VOORZOLDER
Ruime voorzolder voorzien van vloerbedekking en aansluitpunten ten behoeve van de wasapparatuur. Tevens bevindt zich hier de opstelplaats van de CV-combiketel (Remeha, ca. bj. 2010).
ZOLDERSLAAPKAMER
Royale zolderslaapkamer voorzien een dakkapel aan zowel de voor- en achterzijde. Deze slaapkamer beschikt over een vaste wastafel in meubel en bergruimte achter de schotten.
LIGGING EN LOCATIE
Deze karakteristieke jaren ’50 woning is gelegen in de gewilde wijk Boeimeer. Dit is een gemoedelijke en kindvriendelijke wijk in Breda Zuid. Er bevinden zich 3 basisscholen op loopafstand, alsmede winkels voor de dagelijkse boodschappen, het Van Sonsbeeckpark, zwembad en tennisvereniging Markant. De autosnelwegen A16, A27 en A58 zijn binnen enkele auto-minuten te bereiken.
WAT U VERDER NOG DIENT TE WETEN:
Deze woning beschikt over energielabel D;
Deze woning is voorzien van dubbele beglazing.
Hoewel deze advertentie zorgvuldig is samengesteld door DietvorstBorman Makelaars, is het mogelijk dat informatie verouderd en/of niet meer correct is. DietvorstBorman Makelaars en de verkoper(s) geven dan ook geen enkele garantie noch aanvaarden ze enige aansprakelijkheid voor de juistheid dan wel volledigheid van de verstrekte of vermelde gegevens, tekeningen en afmetingen. De door DietvorstBorman Makelaars gebruikte afmetingen en oppervlakten zijn indicatief. De advertentie is geen concreet aanbod waar u rechten aan kunt ontlenen en dient te worden gezien als een uitnodiging om in onderhandeling te treden.
Kenmerken
Overdracht
- Laatste vraagprijs
- € 585.000 kosten koper
- Vraagprijs per m²
- € 4.680
- Status
- Verkocht
Bouw
- Soort woonhuis
- Eengezinswoning, tussenwoning
- Soort bouw
- Bestaande bouw
- Bouwjaar
- 1954
- Soort dak
- Zadeldak bedekt met pannen
Oppervlakten en inhoud
- Gebruiksoppervlakten
- Wonen
- 125 m²
- Overige inpandige ruimte
- 7 m²
- Gebouwgebonden buitenruimte
- 1 m²
- Externe bergruimte
- 6 m²
- Perceel
- 157 m²
- Inhoud
- 469 m³
Indeling
- Aantal kamers
- 5 kamers (4 slaapkamers)
- Aantal badkamers
- 1 badkamer en 1 apart toilet
- Badkamervoorzieningen
- Douche, toilet, wastafel, en wastafelmeubel
- Aantal woonlagen
- 3 woonlagen
- Voorzieningen
- Glasvezelkabel, rolluiken, rookkanaal, en TV kabel
Energie
- Energielabel
- D
- Isolatie
- HR-glas
- Verwarming
- Cv-ketel
- Warm water
- Cv-ketel
- Cv-ketel
- Remeha Avanta (gas gestookt combiketel, eigendom)
Kadastrale gegevens
- BREDA E 4031
- Kadastrale kaart
- Oppervlakte
- 157 m²
- Eigendomssituatie
- Volle eigendom
Buitenruimte
- Ligging
- Aan rustige weg, in woonwijk en vrij uitzicht
- Tuin
- Achtertuin en voortuin
- Achtertuin
- 70 m² (11,65 meter diep en 6,05 meter breed)
- Ligging tuin
- Gelegen op het zuidwesten bereikbaar via achterom
- Balkon/dakterras
- Balkon aanwezig
Bergruimte
- Schuur/berging
- Vrijstaande stenen berging
- Voorzieningen
- Elektra
Parkeergelegenheid
- Soort parkeergelegenheid
- Betaald parkeren en parkeervergunningen
Foto's 41
© 2001-2025 funda








































