Dit huis op Funda: https://www.funda.nl/detail/koop/verkocht/breda/huis-vloed-17/89181634/

Omschrijving
Bezichtiging? Bel ons op 076 - 532 46 40.
Welkom in de Vloed in de wijk Princenhage.
Dit betreft een verrassend ingedeelde hoekwoning, type splitlevel met een ruime tuin aan de voorzijde, aan de zijkant en aan de achterkant van de woning en met een eigen oprit die geschikt is voor het parkeren van meerdere auto’s. Bovendien beschikt de woning over een garage aan de voorzijde.
De achtertuin van de woning ligt op het Oosten maar door de diepte en breedte heeft u altijd gegarandeerd zon in de tuin.
Deze riante eengezinswoning is gelegen op een rustige en kindvriendelijke locatie in de populaire woonwijk Princenhage!
De woning beschikt over een ruime tuingerichte woonkamer met hoge plafonds, een moderne open keuken, maar liefst 5 slaapkamers en een moderne badkamer, een dakterras en een eigen garage.
Kenmerkend voor deze buurt is dat de woning in een groene, autoluwe woonomgeving ligt en uiterst kindvriendelijk is met veel speelgelegenheid. Bovendien is het park van de Pottenbakkerstraat, met een van de grootste speeltuinen van Breda, op loopafstand te vinden.
Princenhage – Een charmant dorp in de stad
Princenhage is een van de meest populaire wijken van Breda, geliefd om zijn dorpskarakter in combinatie met de nabijheid van het bruisende stadsleven. Oorspronkelijk was Princenhage een zelfstandige gemeente, en dat authentieke dorpsgevoel is nog sterk aanwezig. Men spreekt hier over ’t Aogje, dorp in de stad. Het is een wijk waar geschiedenis en modern comfort hand in hand gaan, met pittoreske straatjes, historische gebouwen, en een hechte gemeenschap die je welkom doet voelen vanaf het eerste moment.
Voorzieningen
Princenhage biedt een scala aan voorzieningen die het leven hier zeer comfortabel maken. De wijk heeft een eigen centrum met supermarkten, speciaalzaken en gezellige cafés en restaurants. Voor de dagelijkse boodschappen hoef je dus niet ver weg. Ook zijn er in de directe omgeving diverse scholen, kinderopvangcentra, sportfaciliteiten, huisartsen, tandarts etc waardoor het een ideale wijk is voor zowel ouderen als jonge gezinnen.
Groen en ontspanning
Ondanks de nabijheid van het centrum van Breda biedt Princenhage voldoende ruimte voor ontspanning en recreatie. De wijk is omgeven door groen, het Mastbos en het Liesbos zijn dichtbij en natuurlijk natuurgebieden zoals de Rith, waar je heerlijk kunt wandelen of fietsen. Bovendien heeft Princenhage een sterke gemeenschap die het hele jaar door diverse evenementen en festiviteiten organiseert, zoals de traditionele Princenhaagse Kermis en carnaval. De wijk heeft zelf een eigen jaarlijkse hardloopwedstrijd – de Tien van t Aogje-, het traditionele eierwerpen en een grote jaarlijkse Braderie.
Uitstekende bereikbaarheid
De ligging van Princenhage is ideaal voor zowel forenzen als mensen die de stad Breda willen verkennen. Met snelle verbindingen naar de A16, A27 en A58 zijn steden als Tilburg, Den Bosch, Rotterdam en Antwerpen gemakkelijk bereikbaar. Ook het openbaar vervoer is in Princenhage goed geregeld. Er rijden meerdere buslijnen en het NS-station is goed bereikbaar per fiets.
Wonen in Princenhage
Princenhage biedt een divers aanbod aan woningen, van charmante jaren '30 huizen en karakteristieke hofjeswoningen tot moderne nieuwbouwwoningen.
Kortom, Princenhage heeft het beste van twee werelden: het gezellige, dorpse gevoel en de voorzieningen en bereikbaarheid van een stad. Hier woon je rustig, maar toch dicht bij het bruisende centrum van Breda. Of je nu een jong gezin bent, een stel op zoek naar ruimte, of een professional die van gemak houdt, Princenhage heeft voor iedereen iets te bieden.
De Vloed ligt aan de rand van de wijk, vlakbij het groene hart van Princenhage, het Pottenbakkersveld in een parkachtige omgeving.
Begane grond
Hal/entree
Via de oprit is er toegang geboden tot de garage en de voordeur van de woning. Via de hal/entree met de uitgebreide meterkast bereikt u de toiletruimte en de woonkamer met de open keuken.
Toiletruimte
De toiletruimte is deels betegeld met wandtegels in een lichte kleurstelling met daarboven stucwerk en is voorzien van een staand toilet met een fonteintje.
Keuken
Vanuit de hal bereikt u als eerste de open keuken. Deze kent een keukeninrichting in een U-vorm met keukenkasten in een tijdloze witte kleurstelling en een donker, hardstenen aanrechtblad. Wat een heerlijke plek om weg te kijken naar de tuin, om te koken en te genieten. De keuken is bovendien zeer modern en naast ruim voldoende kastruimte is de keuken voorzien van alle inbouwapparatuur, te weten: een inductie kookplaat met daarboven een afzuigschouw, een kraan met Quoocker, een combimagnetron/oven, een ruime koelkast met een aparte vriezer en uiteraard mag de vaatwasmachine niet ontbreken.
Bijkeuken
Vanuit de keuken is bovendien de bijkeuken bereikbaar die ideaal is voor alle voorraad uit de keuken en die veel opbergmogelijkheden biedt.
Woonkamer
De ruime woonkamer is tuingericht en wat meteen opvalt zijn de hoge plafonds en grote raampartijen waardoor het heerlijk licht is. Omdat er extra raam aan de zijkant van de woning is heeft u aan alle kanten uitzicht op de tuin. De woning heeft een plavuizenvloer met vloerverwarming. Een grote schuifpui in kunststof biedt bovendien toegang tot de achtertuin. Bovendien heeft u via een afgesloten trapopgang toegang tot de eerste verdieping.
Achtertuin
De diepe achtertuin, gelegen op het Oosten is extra breed omdat het een hoekwoning betreft. Dit betekent dat de tuin op allerlei manieren en geheel naar uw eigen wens is in te delen en er meerdere terrassen of bijvoorbeeld een overkapping gerealiseerd kunnen worden. Het zonnescherm aan de achtergevel behoort bij de woning en blijft achter.
Bovendien is de tuin aan de zijkant van de woning zeer geschikt voor een fietsenberging of bijvoorbeeld voor opslag van tuingereedschap en de tuinset.
Maar bovendien beschikken de huidige eigenaren over een vergunning om de woning aan de zijkant uit te bouwen zodat de toch al grote leefruimte op de begane grond nog meer kan worden uitgebreid.
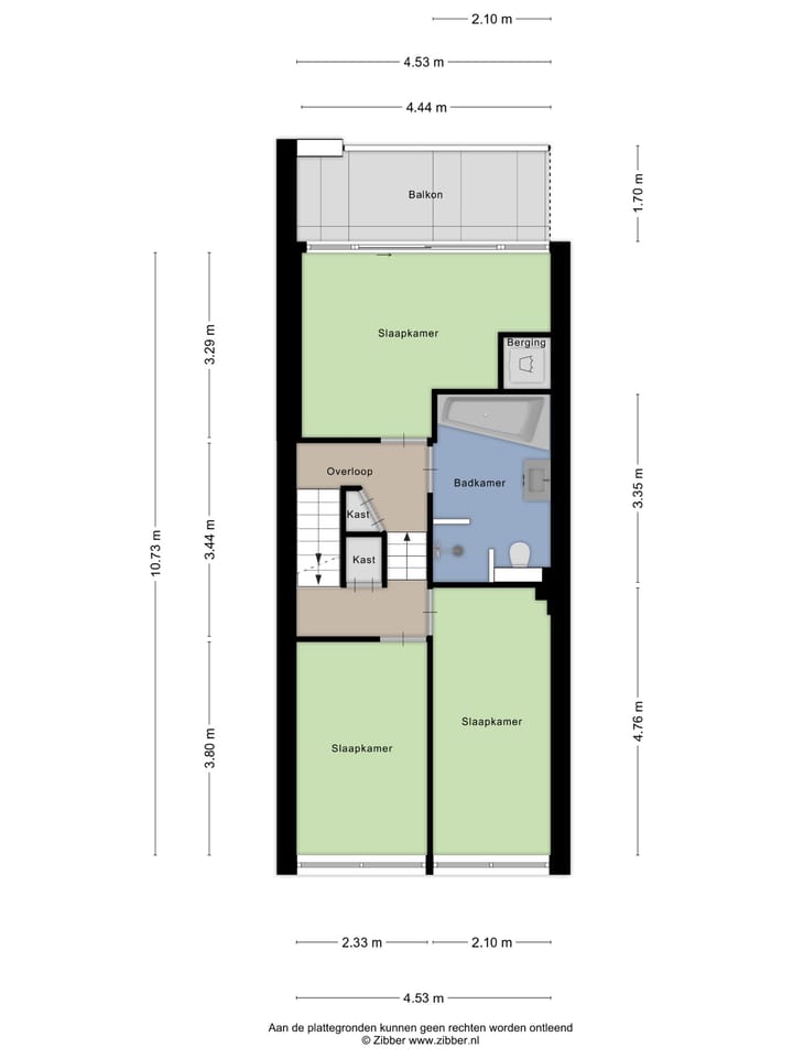
Eerste verdieping
Vanaf de overloop heeft u toegang tot 2 slaapkamers en via een kleine trap heeft u toegang tot de badkamer en het voormalige dakterras waar zich nu een extra slaapkamer bevindt met een balkon.
Slaapkamers voorzijde
De twee slaapkamers liggen beiden aan de voorzijde van de woning en beschikken over een lichte laminaatvloer. De draai-/kiepramen zijn uitgevoerd in kunststof met horren.
Badkamer
De badkamer is tijdloos ingericht en betegeld met lichte wandtegels die onderbroken worden door een bies en er zijn donkere vloertegels. In de badkamer vindt u alles wat u wenst dus deze is met recht zeer compleet te noemen.
Er is een douche met een thermostaatkraan en een regen- en handdouche, een apart ligbad, een wastafel in een badkamermeubel met daarboven een spiegel en een hangend toilet.
Het plafond is voorzien van inbouwspotjes.
Slaapkamer met balkon
Waar voorheen een ruim dakterras was hebben de huidige eigenaars de woning uitgebouwd met een extra slaapkamer. Hier bevinden zich ook de aansluitingen voor de wasapparatuur. De slaapkamer biedt wel toegang tot een balkon.
Tweede verdieping
Overloop met toegang tot de (ouder)slaapkamer
Slaapkamer
Deze slaapkamer ligt eveneens aan de voorzijde van de woning en heeft net als de slaapkamers op de eerste verdieping een kunststof kozijn met een draai-/kiepraam. Op deze slaapkamer bevindt zich een eigen wastafel en de kamer heeft een hoog plafond wat zorgt voor een ruimtelijke sfeer.
Een kleine trap leidt naar een kleine extra kamer die prima dienst kan doen als bijvoorbeeld een logeerkamer maar ook als kantoor aan huis.
Tenslotte bevindt zich aan de overzijde van de overloop een afgesloten ruimte met de cv-combiketel.
Bijzonderheden:
- De meterkast heeft 8 groepen en 2 aardlekschakelaars;
- De HR-combiketel dateert uit 2008 maar is inwendig wel flink gereviseerd;
- De kunststof kozijnen zijn geplaatst in 2020;
- Nieuwe moderne keuken en badkamer;
- Er is een vergunning voor een aanbouw aan de zijkant van de woning;
- Gelegen op een zeer kindvriendelijke locatie;
- Uitstekende openbaar vervoer verbindingen met op ca. 80 meter afstand een bushalte;
- Ideale ontsluiting naar de diverse snelwegen;
- Energielabel B.
Kenmerken
Overdracht
- Laatste vraagprijs
- € 449.000 kosten koper
- Vraagprijs per m²
- € 3.427
- Status
- Verkocht
Bouw
- Soort woonhuis
- Eengezinswoning, hoekwoning (split-level woning)
- Soort bouw
- Bestaande bouw
- Bouwjaar
- 1979
- Soort dak
- Lessenaardak bedekt met bitumineuze dakbedekking
Oppervlakten en inhoud
- Gebruiksoppervlakten
- Wonen
- 131 m²
- Overige inpandige ruimte
- 15 m²
- Gebouwgebonden buitenruimte
- 8 m²
- Perceel
- 295 m²
- Inhoud
- 519 m³
Indeling
- Aantal kamers
- 6 kamers (5 slaapkamers)
- Aantal badkamers
- 1 badkamer en 1 apart toilet
- Badkamervoorzieningen
- Douche, ligbad, toilet, en wastafelmeubel
- Aantal woonlagen
- 3 woonlagen
- Voorzieningen
- Buitenzonwering, mechanische ventilatie, rolluiken, en TV kabel
Energie
- Energielabel
- B
- Isolatie
- Dakisolatie, dubbel glas en muurisolatie
- Verwarming
- Cv-ketel
- Warm water
- Cv-ketel
- Cv-ketel
- HR-combiketel (gas gestookt combiketel uit 2008, eigendom)
Kadastrale gegevens
- PRINCENHAGE N 3074
- Kadastrale kaart
- Oppervlakte
- 295 m²
- Eigendomssituatie
- Volle eigendom
Buitenruimte
- Ligging
- Aan rustige weg en in woonwijk
- Tuin
- Achtertuin, voortuin en zijtuin
- Achtertuin
- 80 m² (10,00 meter diep en 8,00 meter breed)
- Ligging tuin
- Gelegen op het oosten bereikbaar via achterom
Garage
- Soort garage
- Aangebouwde stenen garage
- Capaciteit
- 1 auto
- Voorzieningen
- Elektra
Parkeergelegenheid
- Soort parkeergelegenheid
- Openbaar parkeren
Foto's 36
© 2001-2025 funda



































