
Omschrijving
Binnenkomen voelt hier als thuiskomen. Deze bijzonder ruime woning aan de Regerstraat heeft een binnenbreedte van maar liefst 5,8 meter – en dat merk je. Zowel beneden als boven ervaar je hier opvallend veel ruimte, lucht en licht.
De Z-vormige woonkamer geeft een speelse draai aan het geheel, met gezellige hoekjes én een open uitstraling. Een plek waar je je direct op je gemak voelt, klaar om in te richten en te leven zoals jij dat wilt.
Via de keuken stap je zó de achtertuin in – een heerlijke plek op het zuiden, waar het zonlicht tot in de avond blijft hangen. Dankzij de openslaande deuren vloeien binnen en buiten naadloos in elkaar over, wat de woning extra licht en uitnodigend maakt. En dan is er nog de veranda: stijlvol, overdekt en beschut. Hier zit je ook in het najaar heerlijk buiten, met volop rust en comfort.
De woning is uitstekend onderhouden. Met overal kunststof kozijnen oogt het geheel strak én is het praktisch in gebruik. Alles voelt verzorgd, fris en klaar voor een nieuwe fase.
De ligging? Rustig, maar met winkels, scholen en voorzieningen binnen handbereik. Zoek je ruimte, sfeer en gemak in één – dan is dit zo’n huis waar je je moeiteloos een toekomst ziet opbouwen.
Zien is begrijpen. Dit huis moet je voelen. Loop je mee?
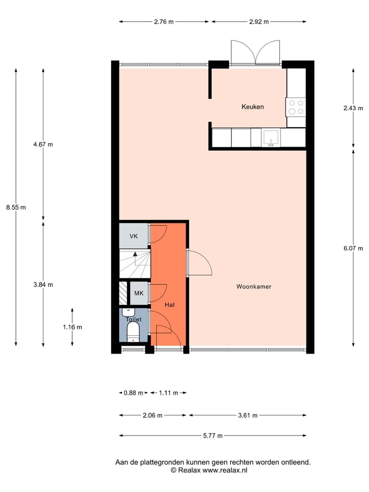
Indeling
Entree
Voordeur met toegang tot de hal.
Hal
Hal met toilet, meterkast en trapopgang naar de eerste etage. Vanuit de hal toegang tot de woonkamer.
Woonkamer
Woonkamer aan de voorzijde van de woning. Aan de achterzijde bevindt zich de eethoek met aansluitend de open keuken.
Keuken
Keuken met diverse inbouwapparatuur en openslaande deuren naar de tuin.
Eerste etage
Overloop met toegang tot drie ruime slaapkamers en de badkamer.
Badkamer
Badkamer met inloopdouche, toilet en dubbele wastafel.
Zolder
Zolderetage met voorzolder voorzien van wasmachine- en drogeraansluiting. Vierde slaapkamer aanwezig.
Buitenruimte
Tuin bereikbaar via de openslaande deuren in de keuken.
Tuin
Tuin op het zuiden met veranda en berging. Via de berging is de achterzijde van het perceel bereikbaar, waar een parkeerhaven is gesitueerd.
Bijzonderheden
- Tuin vernieuwd in 2020:
Schuttingen, straat, veranda
- Nieuwe meterkast 2025
- Overal kunststof kozijnen met HR+ glas
- Airco ouderslaapkamer 2020
- Airco 2e etage 2020
Kenmerken
Overdracht
- Laatste vraagprijs
- € 482.500 kosten koper
- Vraagprijs per m²
- € 3.829
- Status
- Verkocht
Bouw
- Soort woonhuis
- Eengezinswoning, tussenwoning
- Soort bouw
- Bestaande bouw
- Bouwjaar
- 1972
- Soort dak
- Zadeldak bedekt met pannen
Oppervlakten en inhoud
- Gebruiksoppervlakten
- Wonen
- 126 m²
- Externe bergruimte
- 14 m²
- Perceel
- 137 m²
- Inhoud
- 414 m³
Indeling
- Aantal kamers
- 5 kamers (4 slaapkamers)
- Aantal badkamers
- 1 badkamer en 1 apart toilet
- Badkamervoorzieningen
- Dubbele wastafel, inloopdouche, en toilet
- Aantal woonlagen
- 3 woonlagen
- Voorzieningen
- Airconditioning en dakraam
Energie
- Energielabel
- C
- Isolatie
- HR-glas en muurisolatie
- Verwarming
- Cv-ketel
- Warm water
- Cv-ketel
- Cv-ketel
- Combi (gas gestookt combiketel uit 2002, eigendom)
Kadastrale gegevens
- BUNSCHOTEN F 2235
- Kadastrale kaart
- Oppervlakte
- 137 m²
Buitenruimte
- Tuin
- Achtertuin
- Achtertuin
- 36 m² (6,00 meter diep en 6,00 meter breed)
- Ligging tuin
- Gelegen op het zuiden bereikbaar via achterom
Bergruimte
- Schuur/berging
- Vrijstaande stenen berging
- Voorzieningen
- Elektra
Parkeergelegenheid
- Soort parkeergelegenheid
- Openbaar parkeren
Foto's 47
© 2001-2025 funda














































