
Omschrijving
Handige starters en kopers met visie opgelet!
Deze interessante 3 kamer tussenwoning met oprit en royale achtertuin op het zuidwesten is op zoek naar wat liefde en aandacht, zodat het opnieuw een plezierige woonruimte kan worden en door de nieuwe eigenaar ‘thuis’ genoemd wordt. Laat je verrassen door de plezierige ligging in de Zeeheldenbuurt met de nabijheid van de stad Rotterdam om de hoek. Wordt dit jouw nieuwe thuis? Maak een afspraak en kom gezellig kijken.
Deze tussenwoning staat in de kindvriendelijke Zeeheldenbuurt te Capelle West. In de wijk zelf tref je onder andere verschillende verenigingen, maar ook horeca en wat basiswinkels. In de zeer directe nabijheid heb je tevens de beschikking over de wijkvoorzieningen van ’s-Gravenland, zoals onder andere meerdere scholen, kinderopvanglocaties, speelgelegenheden, sportverenigingen en de Puccinipassage met diverse winkels. Openbaar vervoer in de vorm van Metro Capelsebrug en bushaltes zijn op loop- en fietsafstand. Qua uitvalswegen zit je binnen enkele minuten op de N210 en A16.
Indeling:
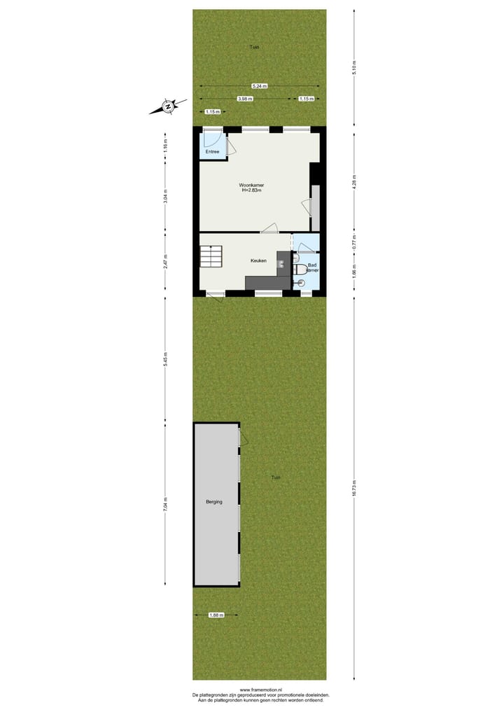
Begane grond: via de hal betreedt je de sfeervolle woonkamer, waar je direct wordt verwelkomd door een prettige lichtinval. Aan de achterzijde van de woning bevindt zich de functionele royale keukenruimte met een eenvoudige opstelling. Via een tussenruimte komt je in de badkamer met o.a. toilet douchegelegenheid. Vanuit de keuken heb je toegang tot de zeer diepe zonnige achtertuin met royale berging en achterom.
Eerste verdieping: zeer royale overloop met bijvoorbeeld ruimte voor een werkplek, via de overloop heb je toegang tot twee comfortabele slaapkamers. Deze ruimtes zijn ideaal in te richten als slaap-, werk- of hobbykamer en bieden volop mogelijkheden. Tot slot is er via de overloop toegang tot een bergzolder boven de 1e verdieping.
Bergzolder: via een luik op de overloop van de 1e verdieping bereikbaar.
WIL JE ALVAST EVEN BINNENKIJKEN? GA NAAR ONZE WEBSITE VOOR DE RONDLEIDING!
Benieuwd? Kom gerust kijken en bel Woongoed Makelaars voor een afspraak op 010-258 09 19!
Indeling: voor de maatvoering verwijzen we je naar de plattegronden op Funda of in de brochure.
Bijzonderheden:
• Bouwjaar: ca. 1930 ;
• Gebruiksoppervlakte Wonen (woonoppervlakte): ca. 69 m²;
• Gebruiksoppervlakte Externe bergruimte (berging/schuur): ca. 13m²;
• Inhoud: ca. 242 m³;
• Gedeeltelijk dubbelglas;
• Achtertuin van ruim 16 meter diep op het zuidwesten;
• Parkeren in de voortuin;
• 1e supermarkt op 3 min fietsen;
• 5 min fietsen vanaf metrostation Capelsebrug;
• 15 min fietsen vanaf het Kralingse Bos;
• Nabij uitvalswegen zoals de N210, N219 en A16;
• Voldoende openbare gratis parkeergelegenheid in de omgeving;
• Ouderdomsclausule, asbestclausule en niet-zelfbewoningsclausule wordt opgenomen;
• Oplevering in overleg, maar kan snel.
Deze informatie is door ons met de nodige zorgvuldigheid samengesteld. Onzerzijds wordt echter geen enkele aansprakelijkheid aanvaard voor enige onvolledigheid, onjuistheid of anderszins, dan wel de gevolgen daarvan. Alle opgegeven maten en oppervlakten zijn indicatief.
Toelichtingsclausule Meetinstructie De Meetinstructie is gebaseerd op de NEN2580. De Meetinstructie is bedoeld om een meer eenduidige manier van meten toe te passen voor het geven van een indicatie van de gebruiksoppervlakte. De Meetinstructie sluit verschillen in meetuitkomsten niet volledig uit, door bijvoorbeeld interpretatieverschillen.
Woongoed Makelaars is de makelaar van de verkoper. Wij adviseren jou je eigen NVM aankoopmakelaar mee te nemen voor jouw belangenbehartiging bij de aankoop van jouw toekomstige woning.
Kenmerken
Overdracht
- Laatste vraagprijs
- € 300.000 kosten koper
- Vraagprijs per m²
- € 4.348
- Status
- Verkocht
Bouw
- Soort woonhuis
- Eengezinswoning, tussenwoning
- Soort bouw
- Bestaande bouw
- Bouwjaar
- 1930
- Soort dak
- Zadeldak bedekt met bitumineuze dakbedekking en pannen
Oppervlakten en inhoud
- Gebruiksoppervlakten
- Wonen
- 69 m²
- Externe bergruimte
- 13 m²
- Perceel
- 181 m²
- Inhoud
- 242 m³
Indeling
- Aantal kamers
- 3 kamers (2 slaapkamers)
- Aantal badkamers
- 1 badkamer en 1 apart toilet
- Badkamervoorzieningen
- Douche, toilet, en wastafel
- Aantal woonlagen
- 2 woonlagen en een vliering
- Voorzieningen
- Natuurlijke ventilatie en TV kabel
Energie
- Energielabel
- G
- Isolatie
- Gedeeltelijk dubbel glas
- Verwarming
- Gashaard
- Warm water
- Geiser
Kadastrale gegevens
- CAPELLE AAN DEN IJSSEL B 8591
- Kadastrale kaart
- Oppervlakte
- 181 m²
- Eigendomssituatie
- Volle eigendom
Buitenruimte
- Ligging
- In woonwijk
- Tuin
- Achtertuin en voortuin
- Achtertuin
- 90 m² (16,80 meter diep en 5,35 meter breed)
- Ligging tuin
- Gelegen op het zuidwesten bereikbaar via achterom
Bergruimte
- Schuur/berging
- Vrijstaande houten berging
Garage
- Soort garage
- Parkeerplaats
Parkeergelegenheid
- Soort parkeergelegenheid
- Op eigen terrein en openbaar parkeren
Foto's 30
© 2001-2025 funda





























