
Omschrijving
Welkom in deze hoekwoning aan de van Limburg Stirumstraat 27 te Coevorden.
Deze hoekwoning, gebouwd in de jaren ’60, is door de jaren heen goed onderhouden en gemoderniseerd. Met een perceel van 198 m² eigen grond en duurzame aanpassingen zoals zonnepanelen (2021) en een vernieuwde badkamer (2022), biedt het huis een comfortabele en eigentijdse woonomgeving. De achtertuin is onderhoudsvriendelijk ingericht en volledig omsloten, zodat je optimaal kunt genieten van je privacy. Een fijne extra is de vrijstaande, geïsoleerde ruimte in de tuin, compleet met verwarming en een eigen toilet. Deze ruimte is ideaal als plek om te ontspannen of als thuiswerkplek.
De woning ligt in de rustige, kindvriendelijke wijk Binnenvree, dichtbij scholen, een supermarkt en sportverenigingen. Ook het centrum van Coevorden is snel bereikbaar, binnen vijf minuten fietsen. Een praktische en prettige woning op een fijne locatie.
INDELING
Onderverdieping: Kelderkast.
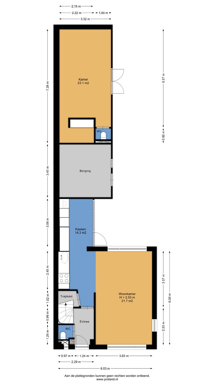
Begane grond: Hal/entree met toilet .Woonkamer met laminaatvloer, pelletkachel en airco. Halfopen keuken met inbouwkeuken voorzien van apparatuur o.a. gasfornuis, vaatwasser, combi-oven en koelkast.
Eerste verdieping: Overloop. Drie slaapkamers. Badkamer (2022) met toilet, douche, vaste wastafel en vloerverwarming. Via vlizotrap naar...
Tweede verdieping: Bergzolder met de cv-ketel.
Extra informatie
- de woning beschikt over muur-, vloer- en glasisolatie;
- verwarming geschiedt middels radiatoren, vloerverwarming en de pelletkachel;
- cv-ketel Intergas 2016;
- warm water gaat via de boiler (80 liter);
- er zijn 8 zonnepanelen aanwezig (325 kw);
- pelletkachel 2020;
- airconditioning 2021;
- in 2016 is ook nieuwe elektra geplaatst;
- de schutting is in 2016 geplaatst.
Kenmerken
Overdracht
- Laatste vraagprijs
- € 249.000 kosten koper
- Vraagprijs per m²
- € 3.112
- Status
- Verkocht
Bouw
- Soort woonhuis
- Eengezinswoning, hoekwoning
- Soort bouw
- Bestaande bouw
- Bouwjaar
- 1960
- Soort dak
- Zadeldak bedekt met pannen
Oppervlakten en inhoud
- Gebruiksoppervlakten
- Wonen
- 80 m²
- Overige inpandige ruimte
- 4 m²
- Externe bergruimte
- 36 m²
- Perceel
- 198 m²
- Inhoud
- 317 m³
Indeling
- Aantal kamers
- 5 kamers (3 slaapkamers)
- Aantal badkamers
- 1 badkamer en 1 apart toilet
- Badkamervoorzieningen
- Inloopdouche, toilet, vloerverwarming, wastafel, en wastafelmeubel
- Aantal woonlagen
- 2 woonlagen en een zolder
- Voorzieningen
- Airconditioning, glasvezelkabel, mechanische ventilatie, natuurlijke ventilatie, en zonnepanelen
Energie
- Energielabel
- C
- Isolatie
- Dubbel glas, muurisolatie en vloerisolatie
- Verwarming
- Cv-ketel
- Warm water
- Gasboiler
- Cv-ketel
- Intergas (gas gestookt combiketel uit 2016, eigendom)
Kadastrale gegevens
- COEVORDEN G 2307
- Kadastrale kaart
- Oppervlakte
- 198 m²
- Eigendomssituatie
- Volle eigendom
Buitenruimte
- Ligging
- Aan rustige weg en in woonwijk
- Tuin
- Achtertuin en voortuin
Parkeergelegenheid
- Soort parkeergelegenheid
- Op eigen terrein
Foto's 39
© 2001-2025 funda






































