
Omschrijving
In de populaire wijk Hof van Delft gelegen volledig gerenoveerde sfeervolle dubbele bovenwoning met zonnig balkon aan de woon-/eetkeuken. Verder beschikt de woning over twee ruime slaapkamers op tweede verdieping, een moderne badkamer en een gezellige woonkamer met uitzicht over de straat. De woning ligt op loopafstand van alle voorzieningen van de binnenstad. Met openbaar vervoer en de snelwegen op korte afstand.
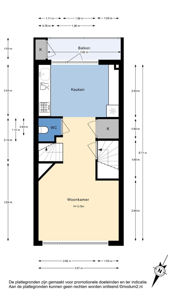
De indeling is als volgt:
Begane grond:
Entree met meterkast en trapopgang naar eerste verdieping.
1e verdieping:
Ruime overloop, loshangend toilet. Gezellige woonkamer aan de voorzijde met grote raampartij. Aan de achterzijde van de woning is demoderne woon-/eetkeuken met inductiekookplaat, afzuigkap, combi-oven, vaatwasser, koel-vriescombinatie en Quooker. Middels een deur is er toegang tot het zonnige balkon met bergkast.
2e verdieping:
Ruime overloop met wasmachine aansluiting en cv-ketel en toegang tot de luxe badkamer welke is voorzien van een inloopdouche, wastafel en designradiator. Ruime achterslaapkamer en zeer ruime slaapkamer aan de straatzijde.
Kenmerken:
- Bouwjaar 1933
- Woonoppervlakte 72 m2 conform de NVM meetinstructie
- Energielabel B
- Actieve VvE, bijdrage € 118,- euro per maand
- Woning volledig verbouwd na aankoop in 2021
- Muren + plafonds stucwerk
- Kunststofkozijnen met HR ++ glas
- Ouderdomsclausule is van toepassing
- Uitstekende ligging ten opzichte van TU, centrum, station, uitvalswegen en Delftse Hout
Overweegt u dit appartement te kopen?............Neem uw eigen NVM- aankoopmakelaar mee.
Kenmerken
Overdracht
- Laatste vraagprijs
- € 375.000 kosten koper
- Vraagprijs per m²
- € 5.208
- Status
- Verkocht
Bouw
- Soort appartement
- Bovenwoning (appartement)
- Soort bouw
- Bestaande bouw
- Bouwjaar
- 1933
- Soort dak
- Plat dak bedekt met bitumineuze dakbedekking
Oppervlakten en inhoud
- Gebruiksoppervlakten
- Wonen
- 72 m²
- Gebouwgebonden buitenruimte
- 4 m²
- Inhoud
- 256 m³
Indeling
- Aantal kamers
- 3 kamers (2 slaapkamers)
- Aantal badkamers
- 1 badkamer en 1 apart toilet
- Badkamervoorzieningen
- Douche en wastafel
- Aantal woonlagen
- 1 woonlaag
- Voorzieningen
- TV kabel
- Gelegen op
- 2e woonlaag
Energie
- Energielabel
- B
- Isolatie
- Dubbel glas
- Verwarming
- Cv-ketel
- Warm water
- Cv-ketel
- Cv-ketel
- Intergas HR (gas gestookt combiketel uit 2021, eigendom)
Kadastrale gegevens
- DELFT F 6408
- Kadastrale kaart
- Eigendomssituatie
- Volle eigendom
Buitenruimte
- Ligging
- Aan drukke weg en in woonwijk
- Balkon/dakterras
- Balkon aanwezig
Parkeergelegenheid
- Soort parkeergelegenheid
- Parkeervergunningen
VvE checklist
- Inschrijving KvK
- Ja
- Jaarlijkse vergadering
- Ja
- Periodieke bijdrage
- Ja
- Reservefonds aanwezig
- Ja
- Onderhoudsplan
- Ja
- Opstalverzekering
- Ja
Foto's 34
© 2001-2025 funda

































