
Omschrijving
Keurige 4-kamer maisonnette op begane grond en 1e verdieping gelegen in de gezellige, kindvriendelijke Delftse buurt Voordijkshoorn.
Op fietsafstand van het centrum van Delft en loopafstand van een supermarkt en divers winkelaanbod. Zeer gunstige ligging t.o.v. uitvalswegen en openbaar vervoer.
*INDELING*
Entree middels verhoogde entree op de begane grond.
Gang die toegang bied tot het toilet, keuken en woonkamer met balkon (Zuid-Oost).
Onder trap is extra bergruimte te vinden.
Nette eenvoudige keuken met witte onder- en ovenkasten.
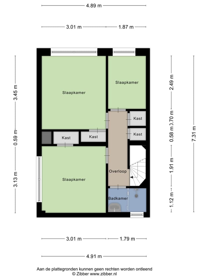
Trap in gang naar 2e verdieping met toegang tot overloop met vaste kasten.
3 slaapkamers gelegen aan de voorzijde, achterzijde en achter-zij-kamer.
Badkamer met betegelede inloopdouche, vaste wastafel en handdoekenradiator.
Voor de diverse afmetingen van de ruimtes verwijzen wij u naar de bijgevoegde plattegronden.
De ruime berging ligt in de kelder van het complex.
Bijzonderheden:
Eigen grond.
VvE Van Almondestraat 38-64 te Delft recentelijk geactiveerd. 1/24e aandeel.
VvE ingeschreven in de KvK
Maandelijkse bijdrage € 89,-
Collectieve opstal-, aansprakelijkheid- en rechtsbijstandverzekering. Bestuur in eigen beheer.
Rondom kunststof kozijnen met dubbel glas.
Nieuwe centrale verwarming met zuinige Intergas Extreme CV-ketel (2023).
Energielabel G is nog gebaseerd op de oude situatie met gaskachels.
In koopovereenkomst worden preventief algemene milieu-, materialen- en exoneratieclausules opgenomen.
Tevens zal in de koopovereenkomst worden opgenomen dat de eigenaar de woning niet zelf heeft bewoond (komt uit verhuur).
Oplevering per direct.
Interesse in dit huis? Schakel direct uw eigen NVM-aankoopmakelaar in.
Uw NVM-aankoopmakelaar komt op voor uw belang en bespaart u tijd, geld en zorgen.
Adressen van collega NVM-aankoopmakelaars in Haaglanden vindt u op Funda.
Kenmerken
Overdracht
- Laatste vraagprijs
- € 320.000 kosten koper
- Vraagprijs per m²
- € 4.571
- Status
- Verkocht
- Bijdrage VvE
- € 89,00 per maand
Bouw
- Soort appartement
- Maisonnette (appartement)
- Soort bouw
- Bestaande bouw
- Bouwjaar
- 1957
- Soort dak
- Plat dak
Oppervlakten en inhoud
- Gebruiksoppervlakten
- Wonen
- 70 m²
- Gebouwgebonden buitenruimte
- 3 m²
- Externe bergruimte
- 10 m²
- Inhoud
- 185 m³
Indeling
- Aantal kamers
- 4 kamers (3 slaapkamers)
- Aantal badkamers
- 1 badkamer en 1 apart toilet
- Badkamervoorzieningen
- Douche en wastafel
- Aantal woonlagen
- 4 woonlagen
- Voorzieningen
- TV kabel
- Gelegen op
- 1e woonlaag
Energie
- Energielabel
- G
- Isolatie
- Dubbel glas
- Verwarming
- Cv-ketel
- Warm water
- Cv-ketel
- Cv-ketel
- Intergas Extreme (gas gestookt combiketel uit 2023, eigendom)
Kadastrale gegevens
- DELFT F 6705
- Kadastrale kaart
- Eigendomssituatie
- Volle eigendom
Buitenruimte
- Ligging
- In woonwijk
- Balkon/dakterras
- Balkon aanwezig
Bergruimte
- Schuur/berging
- Box
- Voorzieningen
- Elektra
Parkeergelegenheid
- Soort parkeergelegenheid
- Openbaar parkeren
VvE checklist
- Inschrijving KvK
- Ja
- Jaarlijkse vergadering
- Ja
- Periodieke bijdrage
- Ja (€ 89,00 per maand)
- Reservefonds aanwezig
- Ja
- Onderhoudsplan
- Ja
- Opstalverzekering
- Ja
Foto's 24
© 2001-2025 funda























