
Omschrijving
Gelegen in een gezellig en een leuk stukje van de wijk een 4-kamer appartement gelegen op de 1ste etage, welke o.a. is voorzien van 3 slaapkamers, kunststof kozijnen met dubbel glas aan de voorzijde, verwarming gaskachels en met een balkon aan de achterzijde. De woning bevat ca. 70m² functionele woonruimte (conform NEN2580) en is gelegen op eigen grond.
Door de centrale ligging bevinden zich in de directe nabijheid het centrum van Rijswijk (Herenstraat), diverse scholen (o.a. Haagse Hogeschool), winkels (o.a. Megastores), openbaar vervoer (tram 1, 15, 16 en 17), NS Station Hollands Spoor, divers uitvalswegen en de snelwegen A-4 en A-13. Kortom een leuke woning op een centrale locatie.
Indeling
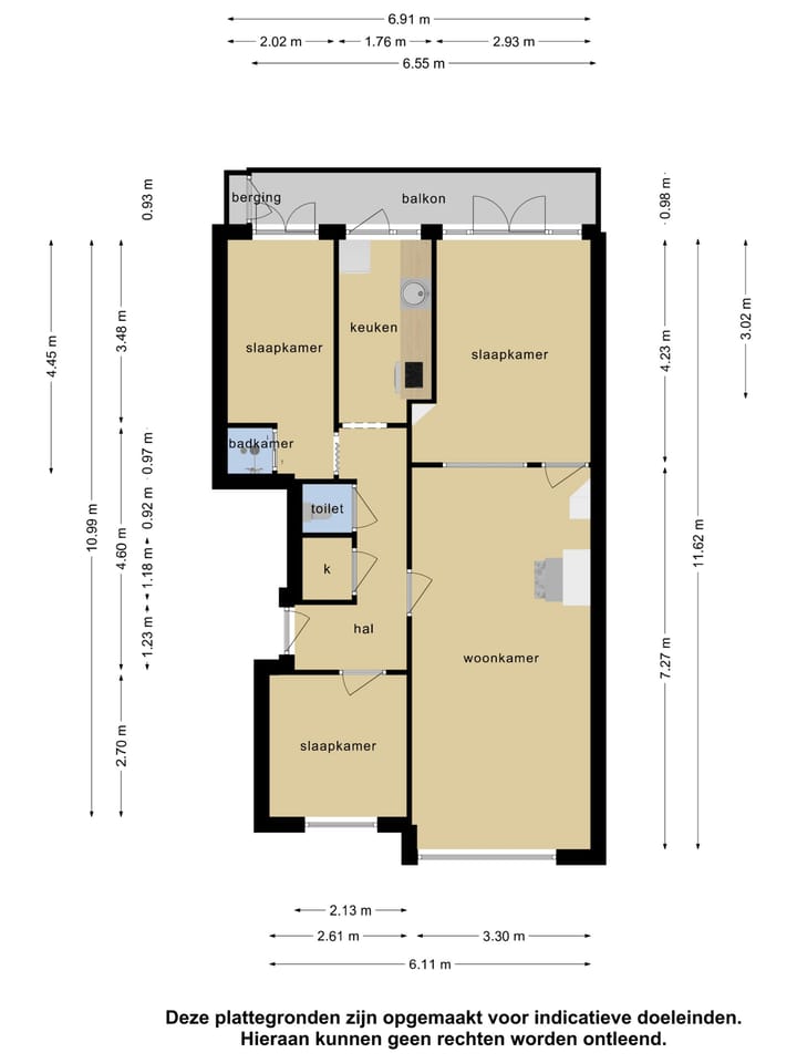
Entree woning middels open portiek op 1e etage middels voordeur; hal met diepe kast en separaat toilet; slaapkamer I (2.70 x 2.70) aan de voorzijde; woon- en eetkamer (7.27 x 3.30) met slaapkamer II (4.23 x 2.93) aan de achterzijde en openslaande deuren naar het balkon; keuken (3.48 x 1.76) aan de achterzijde met inbouwapparatuur o.a. 4-pitsgaskookstel, afzuigkap, geiser en wasmachineaansluiting en toegang tot het balkon; slaapkamer III (4.45 x 2.02) aan de achterzijde met douche en toegang naar het (6.55 x 0.93) met berging gelegen op het noordwesten.
Balkon
Balkon (6.55 x 0.93) aan de achterzijde met berging gelegen op het noordwesten.
Bijzonderheden
- Eigen grond
- Woonoppervlakte 70m²
- Bouwjaar 1933
- Actieve VvE
- Reservefonds € 1.479,97 (31-12-2024)
- 1/6e aandeel (huisnr's 157-167)
- Geen MJOP
- Verwarming middels gaskachel
- Warm water middels geiser
- Aan de voorzijde kunststof kozijnen met dubbelglas
- Aan de achterzijde houten kozijnen met enkelglas
- Balkon gelegen op het noordwesten met balkonkast
- Elektra 4 groepen met aardlekschakelaar
- Energielabel E
- Niet-bewonersclausule van toepassing
- Oplevering in overleg, kan snel
Kenmerken
Overdracht
- Laatste vraagprijs
- € 229.500 kosten koper
- Vraagprijs per m²
- € 3.279
- Status
- Verkocht
- Bijdrage VvE
- € 50,00 per maand
Bouw
- Soort appartement
- Portiekwoning (appartement)
- Soort bouw
- Bestaande bouw
- Bouwjaar
- 1933
- Specifiek
- Beschermd stads- of dorpsgezicht
- Soort dak
- Plat dak bedekt met bitumineuze dakbedekking
Oppervlakten en inhoud
- Gebruiksoppervlakten
- Wonen
- 70 m²
- Gebouwgebonden buitenruimte
- 6 m²
- Inhoud
- 233 m³
Indeling
- Aantal kamers
- 4 kamers (3 slaapkamers)
- Aantal badkamers
- 1 apart toilet
- Aantal woonlagen
- 1 woonlaag
- Gelegen op
- 2e woonlaag
Energie
- Energielabel
- E
- Isolatie
- Grotendeels dubbelglas
- Verwarming
- Gaskachels
- Warm water
- Geiser
Kadastrale gegevens
- DEN HAAG AI 8642
- Kadastrale kaart
- Eigendomssituatie
- Volle eigendom
Buitenruimte
- Ligging
- In woonwijk
- Balkon/dakterras
- Balkon aanwezig
Parkeergelegenheid
- Soort parkeergelegenheid
- Betaald parkeren, openbaar parkeren en parkeervergunningen
VvE checklist
- Inschrijving KvK
- Ja
- Jaarlijkse vergadering
- Ja
- Periodieke bijdrage
- Ja (€ 50,00 per maand)
- Reservefonds aanwezig
- Ja
- Onderhoudsplan
- Nee
- Opstalverzekering
- Ja
Foto's 25
© 2001-2025 funda
























