
Omschrijving
WOON EN GENIET in dit royale, lichte appartement (ca. 148m2) waar ruimte, comfort en buitenruimte samenkomen. In 2010 heeft er een grootse verbouwing plaatsgevonden door het plaatsen van een extra (de 3e) verdieping, waar de woonkamer en keuken naar zijn verplaatst. Er zijn drie ruime slaapkamers en de optie voor een vierde, een moderne badkamer en een lichte, royale woonkamer. Daarnaast beschikt het over maar liefst drie balkons en een royaal dakterras, perfect om te genieten van het buitenleven en het fraaie uitzicht. Ideaal voor gezinnen, thuiswerkers en iedereen die op zoek is naar een ruim stadsappartement met volop mogelijkheden.
Locatie:
Het appartement ligt in de wijk Oostbroek, een gezellige wijk in Den Haag met een karakteristieke jaren '30-architectuur en een breed scala aan voorzieningen. Naast het diverse winkelaanbod in de wijk, ligt op 10 minuten fietsafstand het afwisselende winkelaanbod van de authentieke Fahrenheitstraat en Weimarstraat. Ook de bekende Haagse Markt is vlakbij voor dagelijkse verse producten. Met een klein kwartier fietsen, fiets je of naar het strand of naar het centrum van Den Haag. Openbaar vervoer is goed geregeld met meerdere tram- en buslijnen die met een paar minuten lopen op steenworp afstand liggen. Oostbroek grenst aan het Zuiderpark, een groot stadspark met sportfaciliteiten, speeltuinen en groene recreatiegebieden.
Indeling:
Via een open portiek bereikt u de entree op de eerste verdieping. Hier bevindt zich een hal met bergruimte, de meterkast en een trap naar de tweede verdieping.
Op de tweede verdieping geeft de ruime L-vormige hal toegang tot alle vertrekken. Aan de achterzijde bevindt zich de voormalige keuken, nu ingericht als een praktische was-en bergruimte met wasmachine- en drogeraansluiting en toegang tot een balkon. Naast deze ruimte ligt de eerste slaapkamer, van oudsher ook voorzien van een wasmachine-aansluiting in een vaste kast. De tweede slaapkamer, eveneens aan de achterzijde, beschikt over openslaande deuren naar een tweede balkon en biedt directe toegang tot een ruime walk-in closet. De moderne badkamer is uitgerust met een royale inloopdouche met hand- en regendouche, een dubbele wastafel met meubel, een designradiator en mechanische ventilatie. De 2e verdieping is voorzien van een apart toilet. Aan de voorzijde bevindt zich een derde slaapkamer. Een extra ruime hal, voorheen een slaapkamer, biedt mogelijkheden voor een werkplek of kan worden omgevormd tot een vierde slaapkamer. Vanuit deze ruimte is er de trap naar de derde verdieping.
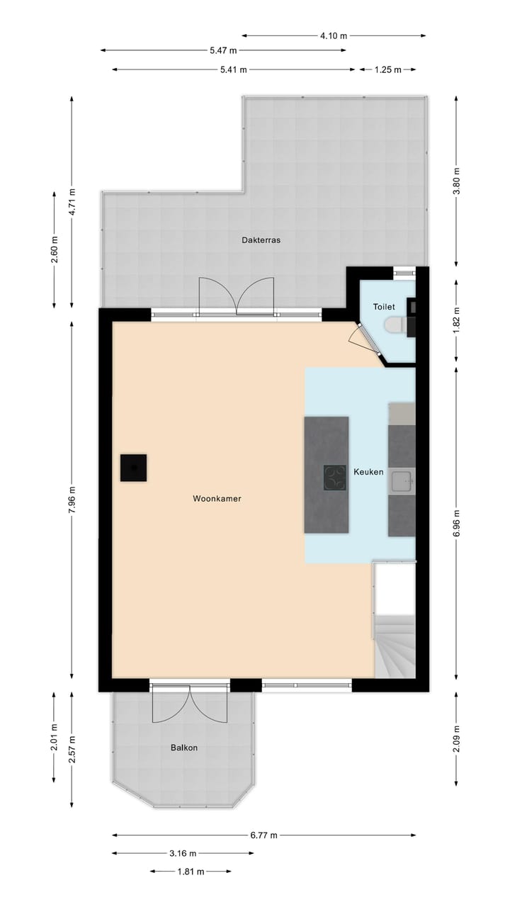
Op de derde verdieping bevindt zich de royale woonkamer, die zich over de volledige breedte van de woning uitstrekt. Grote ramen aan beide zijden zorgen voor veel lichtinval en bieden uitzicht over de stad. De woonkamer is voorzien van een houtgestookte open haard. De open keuken beschikt over een keukenblok met keukenblok aan de achterwand met inbouwapparatuur zoals een oven, magnetron en vaatwasser. Het kookeiland bevat een 4-pits gaskookplaat en een aparte wokbrander en biedt een eetbar voor informele eetmomenten. Op deze verdieping is er tevens een 2e toilet met vrijhangend closet en een kast met opstelplaats voor de c.v.-combiketel.
Aan de voorzijde van de woonkamer geven openslaande deuren toegang tot een overdekt balkon op het zuidoosten, terwijl de achterzijde, dankzij grote kozijnen en openslaande deuren, toegang biedt tot een ruim en zonnig terras op het noordwesten.
Bijzonderheden:
- Gelegen op eigen grond
- Bouwjaar 1937
- Gebruiksoppervlakte 148m², balkon/buitenruimte 40m2, gemeten conform NVM meetinstructie
- Actieve VvE, bijdrage € 193,-- per maand.
- MJOP aanwezig, gemeenschappelijke opstalverzekering, reservefonds en ingeschreven in de KvK
- Schilderwerk buitenzijde is in 2024 uitgevoerd en in 2022 zijn er onderhoudswerkzaamheden aan de balkons uitgevoerd
- Energielabel D
- De 2e verdieping is aan de achterzijde voorzien van kunststof kozijnen met dubbel glas en de voorzijde van aluminium kozijnen met enkel glas. De 3e verdieping is geheel voorzien van houten kozijnen met HR++ glas
- Verwarming en warmwatervoorziening door middel van c.v.-combiketel Vaillant, bouwjaar 2010
- Meterkast 8 groepen, 2 fornuisgroepen, 2 aardlekschakelaars en hoofdschakelaar
- De dakopbouw is in 2010 geplaatst
- Badkamer in 2022 geheel vernieuwd
- Zie de plattegronden voor de indeling en complete maatvoering
- Model NVM-koopakte van toepassing
- In de koopakte zal de asbest-, ouderdoms- en meetinstructieclausule worden opgenomen
- Oplevering in overleg.
Interesse in dit huis? Schakel direct uw eigen NVM-aankoopmakelaar in.
Uw NVM-aankoopmakelaar komt op voor uw belang en bespaart u tijd, geld en zorgen.
" Deze informatie is door ons met de hoogst nodige zorgvuldigheid samengesteld. Door ons kantoor wordt echter geen enkele aansprakelijkheid aanvaard voor enige onvolledigheid, onjuistheid of anderszins, dan wel de gevolgen daarvan. Alle opgegeven maten en oppervlakten zijn indicatief."
Kenmerken
Overdracht
- Laatste vraagprijs
- € 450.000 kosten koper
- Vraagprijs per m²
- € 3.041
- Status
- Verkocht
- Bijdrage VvE
- € 193,00 per maand
Bouw
- Soort appartement
- Bovenwoning (dubbel bovenhuis met open portiek)
- Soort bouw
- Bestaande bouw
- Bouwjaar
- 1937
- Soort dak
- Plat dak bedekt met bitumineuze dakbedekking
Oppervlakten en inhoud
- Gebruiksoppervlakten
- Wonen
- 148 m²
- Gebouwgebonden buitenruimte
- 40 m²
- Inhoud
- 546 m³
Indeling
- Aantal kamers
- 4 kamers (3 slaapkamers)
- Aantal badkamers
- 1 badkamer en 2 aparte toiletten
- Badkamervoorzieningen
- Dubbele wastafel, inloopdouche, en wastafelmeubel
- Aantal woonlagen
- 2 woonlagen
- Voorzieningen
- Mechanische ventilatie en natuurlijke ventilatie
- Gelegen op
- 3e woonlaag
Energie
- Energielabel
- D
- Isolatie
- Grotendeels dubbelglas en HR-glas
- Verwarming
- Cv-ketel
- Warm water
- Cv-ketel
- Cv-ketel
- Nefit (gas gestookt combiketel uit 2010, eigendom)
Kadastrale gegevens
- 'S-GRAVENHAGE AL 4836
- Kadastrale kaart
- Eigendomssituatie
- Volle eigendom
Buitenruimte
- Ligging
- In woonwijk
- Balkon/dakterras
- Dakterras aanwezig en balkon aanwezig
Parkeergelegenheid
- Soort parkeergelegenheid
- Betaald parkeren, openbaar parkeren en parkeervergunningen
VvE checklist
- Inschrijving KvK
- Ja
- Jaarlijkse vergadering
- Ja
- Periodieke bijdrage
- Ja (€ 193,00 per maand)
- Reservefonds aanwezig
- Ja
- Onderhoudsplan
- Ja
- Opstalverzekering
- Ja
Foto's 59
© 2001-2025 funda


























































