
Omschrijving
Ruim, licht en goed onderhouden 4 kamer appartement van 100m2 op de eerste verdieping met berging op de begane grond. Dit fraaie appartement is zeer gunstig gelegen in het Benoordenhout, erg groen en rustig maar uiterst centraal tussen de Denneweg en de Van Hoytemastraat en nagenoeg op de hoek met de Weissenbruchstraat. Daardoor zijn er tal van winkels, gezellige horeca en openbaar vervoer op loopafstand.
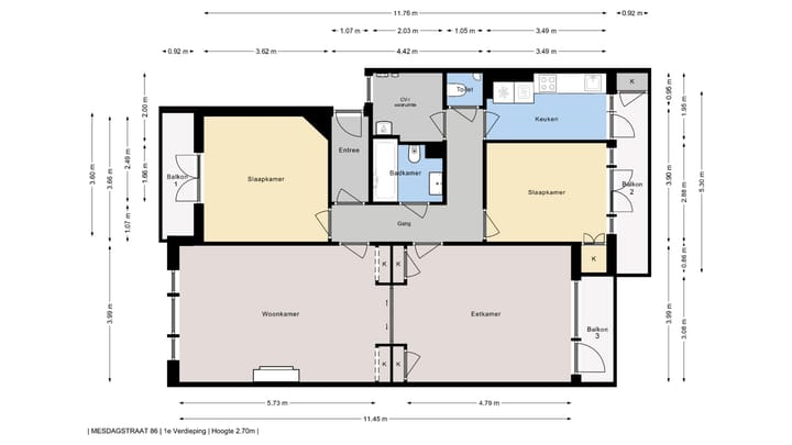
Thans voorziet de woning in een ruime woonkamer en-suite met zonnig balkon, twee slaapkamers met ieder een balkon, keurige badkamer met ligbad (kan een ruime inloopdouche van gemaakt worden), moderne keuken met inbouwapparatuur en een ruime inpandige berging met opstelplaats CV en wasmachine. De twee balkons aan de achterzijde, bereikbaar vanuit de woonkamer, slaapkamer en de keuken zijn gelegen op het Zuid-Westen. Op de begane grond achter het gebouw een eigen fietsenberging.
De woning is gelegen op eigen grond en de VVE is actief met onderhoudsplan, ruime reserve en collectieve opstalverzekering.
Indeling:
Open portiek met trap naar de 1e verdieping.
Entree appartement, tochtportaal met ruimte voor garderobe, centrale gang met toegang tot alle ruimten. Ruime slaapkamer aan de voorzijde met openslaande deuren naar balkon, royale woonkamer (4 meter breed) met en-suite separatie naar de eetkamer met toegang tot het zonnige balkon op het Zuid-Westen.
Aan de achterzijde de tweede slaapkamer met openslaande deuren naar balkon en eveneens aan de achterzijde de keuken met de nodige inbouwapparatuur en deur naar balkon met vaste bergkast.
Vanuit de gang komt u in de tussengelegen keurige badkamer met ligbad, handdoekradiator en wastafel, de grote inpandige berging met opstelplaats CV/wasmachine/bergruimte en er is een separaat toilet met fontein.
Op de begane grond achter de appartementen is er een eigen fietsenberging van 2,81*2,11.
Bijzonderheden:
- 1/12e aandeel in de actieve VVE met een bijdrage van € 250,- per maand. Er is een onderhoudsplan, collectieve opstalverzekering en een ruime reserve van circa € 56.000,-
- gelegen op eigen grond
- eigen fietsenberging achter het gebouw, met achterom
- gezien het bouwjaar worden een ouderdoms- en materialenclausule opgenomen in het koopcontract conform model NVM/VBO/VastgoedPRO
- voor het downloaden van de relevante documenten / voorwaarden / model koopakte en het uitbrengen van een bod ontvangt u een mail met de afspraakbevestiging en een link naar de Eerlijk Bieden / dataroom omgeving op onze website.
Kenmerken
Overdracht
- Laatste vraagprijs
- € 475.000 kosten koper
- Vraagprijs per m²
- € 4.750
- Status
- Verkocht
- Bijdrage VvE
- € 250,00 per maand
Bouw
- Soort appartement
- Portiekwoning (appartement)
- Soort bouw
- Bestaande bouw
- Bouwjaar
- 1924
- Specifiek
- Beschermd stads- of dorpsgezicht en gestoffeerd
- Soort dak
- Plat dak
- Keurmerken
- Energie Prestatie Advies
Oppervlakten en inhoud
- Gebruiksoppervlakten
- Wonen
- 100 m²
- Overige inpandige ruimte
- 1 m²
- Gebouwgebonden buitenruimte
- 11 m²
- Externe bergruimte
- 6 m²
- Inhoud
- 330 m³
Indeling
- Aantal kamers
- 4 kamers (2 slaapkamers)
- Aantal badkamers
- 1 badkamer en 1 apart toilet
- Badkamervoorzieningen
- Bidet, ligbad, en wastafel
- Aantal woonlagen
- 1 woonlaag
- Voorzieningen
- TV kabel
- Gelegen op
- 1e woonlaag
Energie
- Energielabel
- E
- Verwarming
- Cv-ketel
- Warm water
- Cv-ketel
- Cv-ketel
- Gas gestookt combiketel, eigendom
Kadastrale gegevens
- DEN HAAG P 9783
- Kadastrale kaart
- Eigendomssituatie
- Volle eigendom
Buitenruimte
- Ligging
- Aan rustige weg, in bosrijke omgeving, in centrum en in woonwijk
- Balkon/dakterras
- Balkon aanwezig
Bergruimte
- Schuur/berging
- Box
Parkeergelegenheid
- Soort parkeergelegenheid
- Openbaar parkeren en parkeervergunningen
VvE checklist
- Inschrijving KvK
- Ja
- Jaarlijkse vergadering
- Ja
- Periodieke bijdrage
- Ja (€ 250,00 per maand)
- Reservefonds aanwezig
- Ja
- Onderhoudsplan
- Ja
- Opstalverzekering
- Ja
Foto's 43
© 2001-2025 funda










































