
Omschrijving
ONDER BOD!
CHARMANT APPARTEMENT AAN DE BASSINGRACHT MET PRACHTIG VRIJ UITZICHT EN VOLOP COMFORT!
Dit appartement, gelegen aan de Bassingracht 164 in Den Helder, bevindt zich in een rustige woonwijk direct aan een bevaarbare waterweg. Deze ligging zorgt voor een prettige woonomgeving met een uniek uitzicht en veel rust, terwijl alle voorzieningen in de buurt eenvoudig bereikbaar zijn.
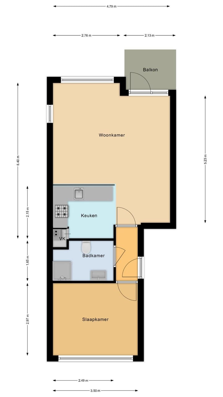
De lichte woonkamer van 31m² biedt voldoende ruimte om heerlijk te ontspannen en te genieten van het uitzicht. Door de gunstige lichtinval heeft de ruimte een aangename sfeer.
De keuken, geïnstalleerd in 2010, beslaat 6m² en is uitgerust met een gasfornuis, diverse inbouwapparatuur en een afzuigkap. Hierdoor is koken hier een plezierige bezigheid.
Het appartement beschikt over een knusse slaapkamer perfect voor een goede nachtrust en het creëren van uw persoonlijke rustplek.
De functionele badkamer is voorzien van een toilet, een inloopdouche en een modern wastafelmeubel, wat zorgt voor comfort en praktisch gebruiksgemak.
De zonnige tuin op het zuiden nodigt uit tot buitenleven en ontspanning. Daarnaast is er een handige tuinschuur aanwezig voor extra opbergruimte.
Interessant? Neem vandaag nog contact met ons op voor een bezichtiging en ontdek zelf de mogelijkheden van dit fijne appartement!
Kenmerken
Overdracht
- Oorspronkelijke vraagprijs
- € 199.000 kosten koper
- Laatste vraagprijs
- € 185.000 kosten koper
- Vraagprijs per m²
- € 4.022
- Status
- Verkocht
- Bijdrage VvE
- € 126,67 per maand
Bouw
- Soort appartement
- Portiekwoning (appartement)
- Soort bouw
- Bestaande bouw
- Bouwjaar
- 1987
- Soort dak
- Plat dak bedekt met bitumineuze dakbedekking
Oppervlakten en inhoud
- Gebruiksoppervlakten
- Wonen
- 46 m²
- Externe bergruimte
- 5 m²
- Inhoud
- 148 m³
Indeling
- Aantal kamers
- 2 kamers (1 slaapkamer)
- Aantal badkamers
- 1 badkamer en 1 apart toilet
- Badkamervoorzieningen
- Inloopdouche, toilet, en wastafelmeubel
- Aantal woonlagen
- 1 woonlaag
- Voorzieningen
- Natuurlijke ventilatie
- Gelegen op
- 3e woonlaag
Energie
- Energielabel
- Isolatie
- Dubbel glas
- Verwarming
- Cv-ketel
- Warm water
- Cv-ketel
- Cv-ketel
- Gas gestookt uit 2024, eigendom
Kadastrale gegevens
- DEN HELDER G 1039
- Kadastrale kaart
- Eigendomssituatie
- Volle eigendom
- DEN HELDER G 1037
- Kadastrale kaart
- Eigendomssituatie
- Volle eigendom
Buitenruimte
- Ligging
- Aan vaarwater, in woonwijk en vrij uitzicht
- Tuin
- Achtertuin
- Achtertuin
- 80 m² (8,00 meter diep en 10,00 meter breed)
- Ligging tuin
- Gelegen op het zuiden
- Balkon/dakterras
- Balkon aanwezig
Bergruimte
- Schuur/berging
- Box
- Voorzieningen
- Elektra
Parkeergelegenheid
- Soort parkeergelegenheid
- Openbaar parkeren
VvE checklist
- Inschrijving KvK
- Ja
- Jaarlijkse vergadering
- Ja
- Periodieke bijdrage
- Ja (€ 126,67 per maand)
- Reservefonds aanwezig
- Ja
- Onderhoudsplan
- Ja
- Opstalverzekering
- Ja
Foto's 19
© 2001-2026 funda


















