
Omschrijving
Op een bijzonder fraaie en gewilde locatie op de Zandweerd, grenzend aan de Zwolsewijk, staat deze goed onderhouden en sfeervolle jaren ’30 hoekwoning. De woning heeft vier slaapkamers, een zeer diepe tuin met een grote vrijstaande stenen berging, een achterom en is bovendien zeer duurzaam (energielabel A!).
Je treft hier alles aan wat je zoekt als jong gezin. Een charmant en sfeervol huis op een fijne locatie in een prachtige woonomgeving met een grote speeltuin in de buurt. De binnenstad, de IJssel, scholen en alle voorzieningen zijn op korte afstand aanwezig.
Indeling:
Entree via de voortuin tot de prachtige voordeur, gang met estrik plavuizenvloer en toegang tot de provisiekelder van 8 m², waar je ook de vernieuwde groepenverdeling van de elektra aantreft. Een keurige toiletruimte onder de verdiepingstrap. Toegang tot de lichte woonkamer. Deze sfeervolle ruimte heeft een zitgedeelte aan de voorzijde met een erker waar je nog glas-in-loodramen aantreft. De originele schouw is verwijderd, maar het rookkanaal zit nog onder het plafond. Het plafond is mooi glad gestukt en de vloer is voorzien van massief houten planken. Aan de tuinzijde zijn openslaande deuren naar het terras. Zowel de erker als de tuindeuren zijn in kunststof uitgevoerd. Wel de sfeer, maar niet het onderhoud.
De keuken is functioneel en voorzien van een aantal inbouw-apparaten (vaatwasser, losse combimagnetron, inductiekookplaat, afzuigschouw) en het heeft een achterdeur naar de diepe achtertuin.
De achtertuin is bijzonder diep, fraai aangelegd, heeft veel speelruimte en een riante stenen berging. De tuin is groot genoeg, wat mogelijkheden biedt om bijvoorbeeld de woning nog uit te bouwen aan de achterzijde. Er is een achterom om ook met de fiets en wandelend de tuin te bereiken.
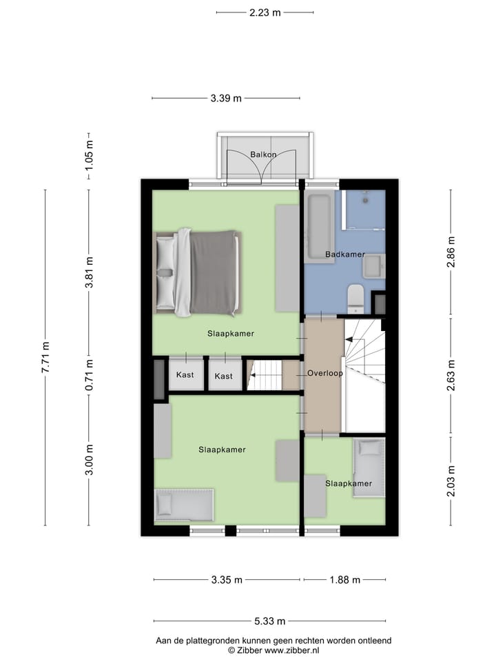
Eerste Verdieping:
Overloop, keurige badkamer voorzien van douche, ligbad, wastafel en 2e toilet. Verder tref je hier drie slaapkamers aan en een vaste trap naar de 2e verdieping. Aan de voorzijde worden nog rolluiken geplaatst. Deze staan nog niet op de foto's, maar de opdracht hiervoor is reeds gegeven en wordt dus nog uitgevoerd met elektrische bediening. Geheel nieuw!
De ouderslaapkamer aan de achterzijde is voorzien van vaste kledingkasten en een balkon.
Tweede Verdieping:
Met vaste trap bereikbare zolderverdieping met een overloop voorzien van een kleine dakkapel aan de voorzijde, waar je de opstelplaats van de wasapparatuur en de CV-ketel aantreft. Aan de achterzijde is een riante dakkapel geplaatst, waardoor hier een grote vierde slaapkamer is gerealiseerd. Het gehele dak is in 2022 vernieuwd met nieuwe waterkerende folie, panlatten en isolatie. Aan de binnenzijde netjes met gips afgewerkt. Daarnaast zijn er 13 zonnepanelen geplaatst in 2023.
Algemeen:
- Energielabel A
- Bouwjaar 1938
- Woonoppervlakte: 104 m²
- Perceeloppervlakte: 183 m²
- Externe buitenruimte: 15 m²
- Inhoud: 408 m³
- In 2022 is het dak voorzien van een nieuw dakkapel en is het geheel geïsoleerd.
- In 2020 is de muur nageïsoleerd en de vloer voorzien van isolatie
- Er zijn 13 zonnepanelen geplaatst in 2023
- De woning is voorzien van kunststof kozijnen met horren
- Sfeervolle elementen glas in lood ramen en paneeldeuren
- Stenen berging met elektra
- Nefit cv-ketel CW4
- Nieuwe meterkast met 7 groepen en aardlekschakelaars
- Glasvezel-internetaansluiting
- De achtertuin is geheel nieuw aangelegd en voorzien van nieuwe schuttingen
- Rolluiken (juni 2025!) aan de voorzijde eerste verdieping
- Aanvaarding in overleg
Kenmerken
Overdracht
- Laatste vraagprijs
- € 475.000 kosten koper
- Vraagprijs per m²
- € 4.567
- Status
- Verkocht
Bouw
- Soort woonhuis
- Eengezinswoning, hoekwoning
- Soort bouw
- Bestaande bouw
- Bouwjaar
- 1938
- Soort dak
- Zadeldak bedekt met pannen
Oppervlakten en inhoud
- Gebruiksoppervlakten
- Wonen
- 104 m²
- Overige inpandige ruimte
- 8 m²
- Gebouwgebonden buitenruimte
- 4 m²
- Externe bergruimte
- 15 m²
- Perceel
- 183 m²
- Inhoud
- 398 m³
Indeling
- Aantal kamers
- 5 kamers (4 slaapkamers)
- Aantal badkamers
- 1 badkamer en 1 apart toilet
- Badkamervoorzieningen
- Douche, dubbele wastafel, ligbad, en toilet
- Aantal woonlagen
- 3 woonlagen en een kelder
- Voorzieningen
- Buitenzonwering, frans balkon, glasvezelkabel, rolluiken, rookkanaal, TV kabel, en zonnepanelen
Energie
- Energielabel
- A
- Isolatie
- Volledig geïsoleerd
- Verwarming
- Cv-ketel
- Warm water
- Cv-ketel
- Cv-ketel
- Nefit HR Combi (gas gestookt combiketel uit 2020, eigendom)
Kadastrale gegevens
- DEVENTER A 4602
- Kadastrale kaart
- Oppervlakte
- 183 m²
- Eigendomssituatie
- Volle eigendom
Buitenruimte
- Ligging
- Aan rustige weg en in woonwijk
- Tuin
- Achtertuin en voortuin
- Achtertuin
- 96 m² (16,00 meter diep en 6,00 meter breed)
- Ligging tuin
- Gelegen op het oosten bereikbaar via achterom
- Balkon/dakterras
- Balkon aanwezig
Bergruimte
- Schuur/berging
- Vrijstaande stenen berging
- Voorzieningen
- Elektra
- Isolatie
- Geen isolatie
Parkeergelegenheid
- Soort parkeergelegenheid
- Openbaar parkeren
Foto's 45
© 2001-2025 funda












































