
Omschrijving
Stijlvol stads wonen aan de Pikeursbaan – midden in het historische hart van Deventer
Welkom aan de Pikeursbaan, een bijzondere eindwoning waar comfort, luxe en stadse dynamiek samenkomen. Deze moderne stadswoning ligt op een toplocatie, op loopafstand van de Brink, de IJssel én het NS-station. Wonen in het centrum van Deventer betekent hier geen concessies doen aan ruimte of afwerking.
Deze woning is met oog voor detail gerealiseerd en hoogwaardig afgewerkt. Verdeeld over drie volwaardige woonlagen vind je onder andere drie ruime slaapkamers, een werkkamer, twee complete badkamers en een sfeervolle tuigerichte woonkamer met patio.
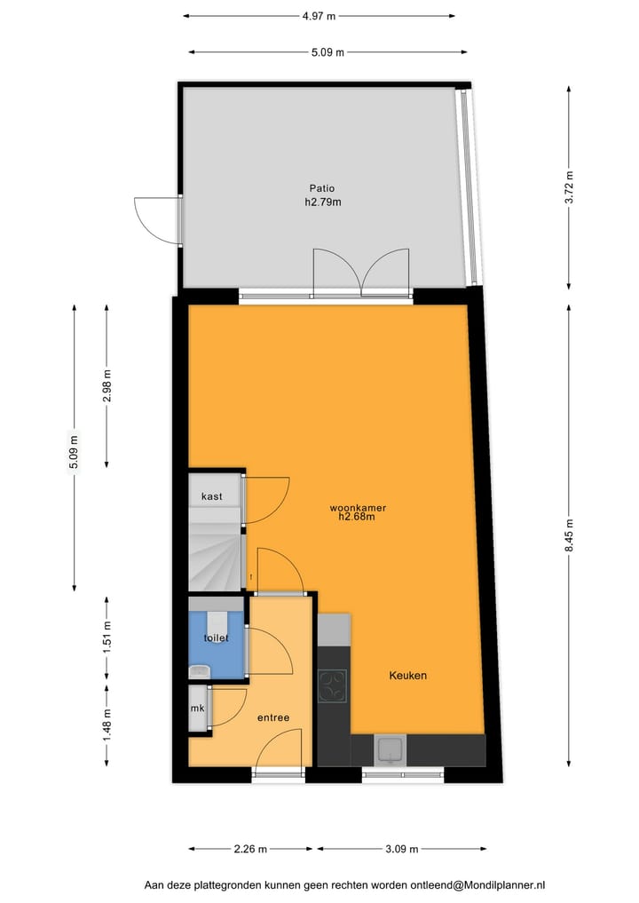
De woonkamer bevindt zich aan de achterzijde en is voorzien van openslaande deuren naar de patio. Dankzij het elektrisch bedienbare glazen dak met zonwering geniet je hier in elk seizoen van buiten. De doorlopende Neolith tegelvloer van 120x120 cm zorgt voor een naadloze verbinding tussen binnen en buiten.
Aan de voorzijde van de woning ligt de keuken, uitgevoerd in een tijdloze SieMatic stijl met hoogwaardige Miele inbouwapparatuur. De keuken beschikt daarnaast over een Quooker en een Amerikaanse koelkast van Samsung. Een ideale plek voor iedereen die van koken houdt.
Op de eerste verdieping bevindt zich een lichte werkkamer met uitzicht op onder andere de Bergkerk. De ouderslaapkamer is bij de bouw vergroot en voorzien van een praktische inloopkast. De luxe badkamer aan de straatzijde is uitgerust met een dubbele regendouche met sunshower (infra rood en UV lampen), wand- en vloerverwarming, dubbele wastafel, toilet met bidetslang en een nis voor wasapparatuur.
De tweede verdieping biedt ruimte aan twee extra kamers en een tweede badkamer. Ook hier is gekozen voor comfort: een jacuzzi, douchehoek, dubbele wastafel, toilet en wederom verwarmde wand en vloeren. De ruime bergzolder is ideaal voor spullen die je niet dagelijks nodig hebt.
De auto parkeer je op je eigen overdekte parkeerplaats in de afgesloten parkeergarage van de VvE Houtmarkt-Pikeursbaan, direct bereikbaar via de Walstraat en Houtmarkt. Je fietsen kunnen veilig geplaatst worden in de aangrenzende fietsenstalling van het naastgelegen complex.
Wat maakt deze woning zo bijzonder:
- Gelegen aan een rustige straat in het stadscentrum
- Eigen overdekte parkeerplaats in het centrum
- Gasloos en aangesloten op stadsverwarming
- Drie volwaardige verdiepingen en een bergzolder dankzij rechte bouw en hoge plafonds (2,70 m)
- Volledig voorzien van vloerverwarming (instelbaar per kamer), dus geen radiatoren
- Patio met elektrisch schuifdak zodat je bijna altijd buiten kunt zitten
- Twee luxe badkamers met extra wandverwarming
- Ouderslaapkamer vergroot en voorzien van inloopkast
- Screens aan de achterzijde voor comfort en privacy
Koken met topapparatuur en volop bergruimte
De Pikeursbaan ligt in een levendige wijk waar oud en nieuw samenkomen. Winkelgebied Boreel ligt direct tegenover de woning met onder meer een supermarkt, bioscoop, sportschool en diverse speciaalzaken/ horecagelegenheden. De binnenstad en het NS-station bereik je binnen enkele minuten te voet.
Kenmerken
Overdracht
- Laatste vraagprijs
- € 695.000 kosten koper
- Vraagprijs per m²
- € 5.226
- Status
- Verkocht
Bouw
- Soort woonhuis
- Herenhuis, eindwoning
- Soort bouw
- Bestaande bouw
- Bouwjaar
- 2013
- Soort dak
- Plat dak bedekt met bitumineuze dakbedekking
Oppervlakten en inhoud
- Gebruiksoppervlakten
- Wonen
- 133 m²
- Overige inpandige ruimte
- 6 m²
- Gebouwgebonden buitenruimte
- 19 m²
- Perceel
- 75 m²
- Inhoud
- 525 m³
Indeling
- Aantal kamers
- 5 kamers (4 slaapkamers)
- Aantal badkamers
- 2 badkamers en 1 apart toilet
- Badkamervoorzieningen
- 2 dubbele wastafels, inloopdouche, 2 toiletten, douche, en ligbad
- Aantal woonlagen
- 3 woonlagen en een zolder
- Voorzieningen
- Mechanische ventilatie en zonnepanelen
Energie
- Energielabel
- A
- Isolatie
- Volledig geïsoleerd
- Verwarming
- Stadsverwarming
- Warm water
- Stadsverwarming
Kadastrale gegevens
- DEVENTER E 12988
- Kadastrale kaart
- Oppervlakte
- 75 m²
- Eigendomssituatie
- Volle eigendom
- DEVENTER E 12990
- Kadastrale kaart
- Eigendomssituatie
- Volle eigendom
Buitenruimte
- Ligging
- In centrum
- Tuin
- Patio/atrium
- Patio/atrium
- 23 m² (4,40 meter diep en 5,20 meter breed)
- Ligging tuin
- Gelegen op het zuidwesten
Garage
- Soort garage
- Parkeerplaats
Parkeergelegenheid
- Soort parkeergelegenheid
- Betaald parkeren en parkeervergunningen
Foto's 54
© 2001-2025 funda





















































