
Omschrijving
Charmante 4-kamer maisonnette van ca. 71 m² in het bruisende hart van Diemen met een geweldig dakterras!
***English version below***
Bekijk ook onze virtuele tour!
Ben je op zoek naar een woning met twee woonlagen op een toplocatie vlak bij Watergraafsmeer? Dan is deze aantrekkelijke 4-kamer HOEK maisonnette precies wat je zoekt! Met ca. 71 m² aan woonruimte, een zonnig (niet vergund) dakterras van ca. 39 m², een balkon, 3 slaapkamers, een lichte woonkamer en een aparte keuken, biedt deze woning in het centrum van Diemen volop mogelijkheden.
De woning, gelegen op eigen grond, is ideaal om geheel naar eigen smaak te moderniseren en geeft daarmee een mooie kans om jouw droomhuis te creëren!
Omgeving:
De Johan van Soesdijkstraat is een kleine rustige straat in een kindvriendelijke woonwijk in Diemen-Centrum met een centrale ligging. Zo is het ongeveer 5 minuten lopen naar het winkelcentrum Diemerplein, waar een grote diversiteit aan winkels is met o.a.: twee supermarkten voor de dagelijkse boodschappen, een goede bakker, vishandel, drogist, diverse kleding- en elektronicawinkels (afhaal)restaurants en een apotheek. Tevens zijn er in deze omgeving diverse (basis)scholen, waarvan één om de hoek, een kinderdagverblijf en een sportschool. De bereikbaarheid is uitstekend te noemen. Binnen een mum van tijd bereik je het openbaar vervoer met diverse buslijnen en de tram (halte van lijn 19 is op 2 minuten lopen) en met de auto de Ring A10 en de snelwegen A1, A2 en A9. Gelegen in een rustige blauwe zone is er voldoende parkeergelegenheid voor bewoners (parkeervergunning slechts € 96,- per 2 jaar).
Eerste verdieping:
Via het trappenhuis kom je bij het appartement op de eerste verdieping.
De entree leidt naar een ruime hal die toegang biedt tot alle vertrekken. Dankzij de lichtkoepel in de hal valt er prettig natuurlijk licht naar binnen.
Aan de voorzijde vind je de fijne woonkamer, uitgerust met een sfeervolle houtkachel en een lichte parketvloer.
Aan de achterzijde bevindt zich het eetgedeelte, waar je via openslaande deuren toegang hebt tot het balkon.
De afgesloten keuken is uitgerust met een 4-pits gaskookplaat, een afzuigkap, een losse koelkast en een aansluiting voor de wasmachine.
Grenzend aan de keuken ligt de eerste slaapkamer, die tevens toegang biedt tot het balkon.
De tweede slaapkamer bevindt zich aan de voorzijde en beschikt over een praktische vaste kast.
De badkamer is eenvoudig uitgevoerd en voorzien van een douche, wastafel en toilet voorzien van een wandcloset.
Balkon:
Het balkon is zeer gunstig op het zuiden gelegen en biedt vrij uitzicht aan de achterzijde.
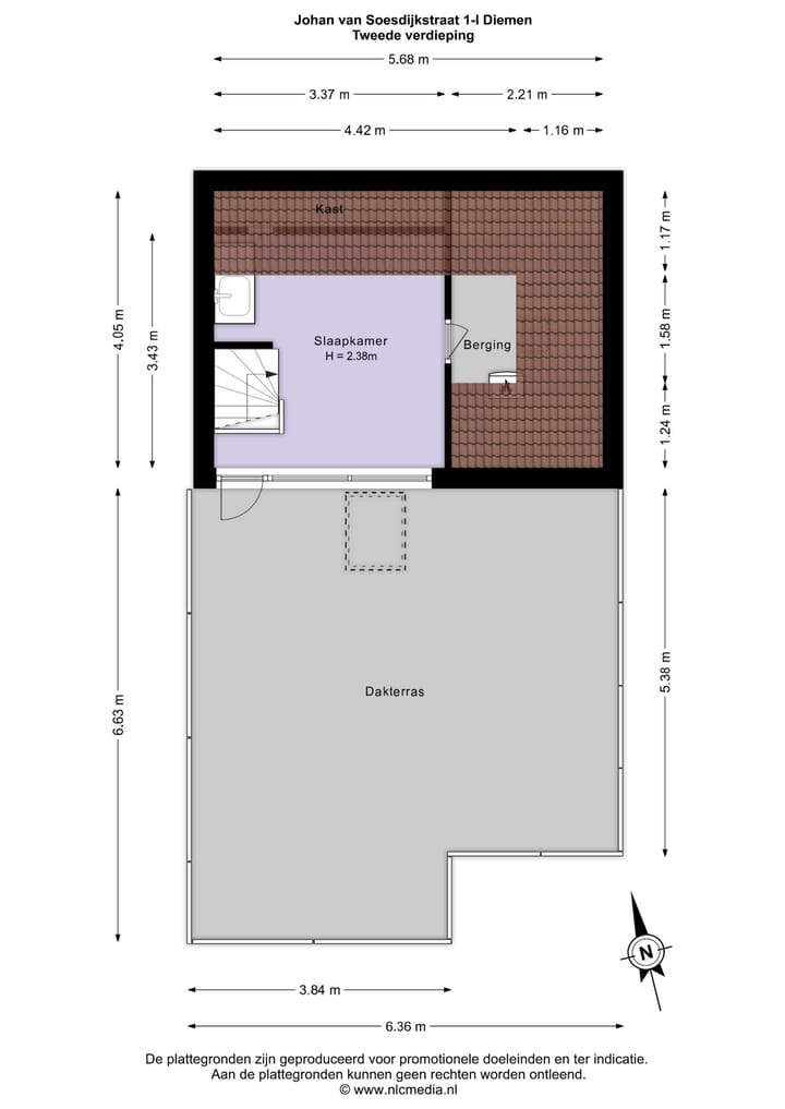
Tweede verdieping:
Via een vaste trap kom je op de tweede verdieping, waar de derde slaapkamer is gelegen. Deze kamer is voorzien van een wastafel en bergruimte waar zich de opstelling van de HR CV combiketel bevindt en biedt directe toegang tot het dakterras.
Dakterras (niet vergund):
Het ruime dakterras is een heerlijke plek om in alle rust en privacy te genieten onder het genot van een hapje en drankje.
Bijzonderheden:
-Woonoppervlakte circa 71 m² (conform meetinstructie en meetcertificaat);
-Charmante hoek maisonnette;
-Geweldig dakterras van ca. 39m² (niet vergund);
-Gelegen in het karakteristieke centrum;
-Gelegen op eigen grond, met 3 slaapkamers;
-Deels Kunststof kozijnen dubbel glas;
-Verouderd en geheel naar eigenstijl in te richten;
-Standleiding is vernieuwd;
-Eigen entree en 2 verdiepingen;
-Kleine VvE van 4 leden;
-Servicekosten à €150,- p/m incl. opstal verzekering, reservering onderhoud etc.;
-Voldoende (blauwe zone) parkeergelegenheid (vergunning ca. € 96,- per 2 jaar, per auto).
-Op 200m lopen van tram 19 naar Amsterdam centrum;
-Op nog geen 5 min van de Watergraafsmeer;
-Niet zelfbewonings-, asbest en ouderdomsclausule van toepassing.
Is jouw interesse gewekt?
Kom dan gerust langs om deze woning van binnen te ervaren!
***English version***
Charming 4-room maisonette of approx. 71 m² in the bustling heart of Diemen with a great roof terrace!
Also check out our virtual tour!
Are you looking for a house with two floors in a prime location near Watergraafsmeer? Then this attractive 4-room CORNER maisonette is exactly what you are looking for! With approximately 71 m² of living space, a sunny (not permitted) roof terrace of approx. 39 m², a balcony, 3 bedrooms, a bright living room and a separate kitchen, this house in the center of Diemen offers plenty of possibilities.
The house, located on private land, is ideal for modernizing entirely to your own taste and therefore offers a great opportunity to create your dream home!
Environment:
The Johan van Soesdijkstraat is a small, quiet street in a child-friendly residential area in Diemen-Centrum with a central location. It is about a 5-minute walk to the Diemerplein shopping center, where there is a wide variety of shops, including: two supermarkets for daily groceries, a good bakery, fishmonger, drugstore, various clothing and electronics stores, (takeaway) restaurants and a pharmacy. There are also several (primary) schools in this area, one of which is around the corner, a daycare center and a gym. The accessibility is excellent. You can reach public transport in no time with various bus lines and the tram (line 19 stop is a 2-minute walk) and by car the Ring A10 and the A1, A2 and A9 highways. Located in a quiet blue zone, there is ample parking for residents (parking permit only €96 per 2 years).
First floor:
You reach the apartment on the first floor via the stairwell.
The entrance leads to a spacious hall that provides access to all rooms. Thanks to the skylight in the hall, pleasant natural light enters.
At the front you will find the lovely living room, equipped with an attractive wood-burning stove and a light parquet floor.
The dining area is at the rear, where you have access to the balcony through French doors.
The closed kitchen is equipped with a 4-burner gas hob, an extractor hood, a separate refrigerator and a connection for the washing machine.
Adjacent to the kitchen is the first bedroom, which also provides access to the balcony.
The second bedroom is located at the front and has a practical closet.
The bathroom is simply designed and equipped with a shower, sink and toilet with a wall-mounted toilet.
Balcony:
The balcony is very conveniently located on the south and offers an unobstructed view at the rear.
Second floor:
A staircase takes you to the second floor, where the third bedroom is located. This room has a sink and storage space where the HR central heating combination boiler is located and offers direct access to the roof terrace.
Roof terrace (not permitted):
The spacious roof terrace is a wonderful place to enjoy a snack and drink in peace and privacy.
Details:
-Living area approximately 71 m² (in accordance with measuring instructions and measuring certificate);
-Charming corner maisonette;
-Great roof terrace of approx. 39m² (not permitted);
-Located in the characteristic center;
-Located on private land, with 3 bedrooms;
-Partly plastic frames double glazing;
-Outdated and can be decorated entirely in your own style;
-Standing line has been renewed;
-Private entrance and 2 floors;
-Small homeowners' association of 4 members;
-Service costs of €150 per month incl. building insurance, maintenance reservations, etc.;
- Sufficient (blue zone) parking (permit approx. €96 per 2 years, per car).
-A 200m walk from tram 19 to Amsterdam center;
-Less than 5 minutes from the Watergraafsmeer;
- Self-occupancy, asbestos and age clauses do not apply.
Has your interest been aroused?
Then feel free to come by and experience this home from the inside!
Kenmerken
Overdracht
- Servicekosten
- € 150 per maand
- Laatste vraagprijs
- € 395.000 kosten koper
- Vraagprijs per m²
- € 5.563
- Status
- Verkocht
- Bijdrage VvE
- € 150,00 per maand
Bouw
- Soort appartement
- Maisonnette (appartement)
- Soort bouw
- Bestaande bouw
- Bouwjaar
- 1930
- Soort dak
- Samengesteld dak bedekt met bitumineuze dakbedekking en pannen
Oppervlakten en inhoud
- Gebruiksoppervlakten
- Wonen
- 71 m²
- Gebouwgebonden buitenruimte
- 42 m²
- Inhoud
- 249 m³
Indeling
- Aantal kamers
- 4 kamers (3 slaapkamers)
- Aantal badkamers
- 1 badkamer
- Badkamervoorzieningen
- Douche, toilet, en wastafel
- Aantal woonlagen
- 2 woonlagen
- Voorzieningen
- Glasvezelkabel, natuurlijke ventilatie, en TV kabel
- Gelegen op
- 1e woonlaag
Energie
- Energielabel
- G
- Isolatie
- Dubbel glas
- Verwarming
- Cv-ketel
- Warm water
- Cv-ketel
- Cv-ketel
- HR Vaillant (gas gestookt combiketel uit 2011, eigendom)
Kadastrale gegevens
- DIEMEN F 1999
- Kadastrale kaart
- Eigendomssituatie
- Volle eigendom
Buitenruimte
- Ligging
- Aan rustige weg, in centrum, in woonwijk en vrij uitzicht
- Tuin
- Zonneterras
- Zonneterras
- 39 m² (6,00 meter diep en 6,36 meter breed)
- Ligging tuin
- Gelegen op het zuiden
- Balkon/dakterras
- Dakterras aanwezig en balkon aanwezig
Parkeergelegenheid
- Soort parkeergelegenheid
- Openbaar parkeren en parkeervergunningen
VvE checklist
- Inschrijving KvK
- Ja
- Jaarlijkse vergadering
- Ja
- Periodieke bijdrage
- Nee
- Reservefonds aanwezig
- Ja
- Onderhoudsplan
- Ja
- Opstalverzekering
- Ja
Foto's 47
© 2001-2026 funda














































