
Omschrijving
Ruime vrijstaande bungalow op een toplocatie in Diepenveen, welkom aan de Wechelerweg 13!
Deze vrijstaande woning is gelegen op een rustige locatie omgeven door groen en met volop privacy. Het biedt je een unieke kans om je droomwoning te realiseren! Gebouwd in 1982, met een royaal woonoppervlak van ca. 170 m² en een perceel van maar liefst 1.263 m², zijn er tal van mogelijkheden.
De woning beschikt over een gelijkvloers woonprogramma, zo zijn er een ruime leefruimte en slaap- en badkamer op de begane grond aanwezig. Daarnaast zijn er ook drie ruime slaapkamers en een badkamer op de eerste verdieping. Hoewel modernisering wenselijk is, biedt dit huis volop potentie om een fijne woning te realiseren.
De stenen garage aan de woning biedt plaats voor het stallen van een auto. Op de eigen oprit kunnen meerdere auto's gezet worden. De royale achtertuin biedt de nodige privacy door het omliggende groen. Perfect voor tuin liefhebbers!
De woning is gelegen in het dorp Diepenveen, omgeven door bos- en weidegebieden, landgoederen en kastelen. In de directe omgeving zijn diverse wandel- en fietsroutes te vinden in het prachtige Sallandse landschap. Het dorp ligt op slechts een kwartiertje fietsen van het historische centrum van Deventer. Diepenveen maakt deel uit van de gemeente Deventer, maar beschikt over eigen sport- en culturele voorzieningen. In de nabije omgeving vind je onder andere een groot regionaal ziekenhuis en de Sallandsche Golfclub “De Hoek”, een 18-holes golfbaan op korte afstand. De A1 is binnen 15 autominuten bereikbaar en er is een uitstekende busverbinding naar Deventer en Zwolle. Het NS-station van Deventer biedt rechtstreekse verbindingen met onder meer Utrecht Centraal.
Door de woning heen:
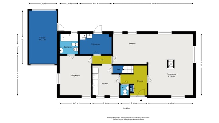
Aan de voorzijde van de woning kom je binnen in de hal met garderobe, toilet en trapopgang naar de verdieping. De woonkamer ligt aan de rechtervoorzijde en kijkt uit op de riante voortuin. Hier tref je een sfeervolle Jøtul-kachel en een deur naar de achtertuin. Aan de achterzijde van de woning vind je de eethoek. De keuken biedt de nodige kastruimte, vanuit de keuken is de kelder bereikbaar. De slaapkamer op de begane grond is royaal te noemen waarbij de badkamer direct vanuit de slaapkamer toegankelijk is. Deze is voorzien van een ligbad, toilet, bidet en wastafel. In de bijkeuken zijn de aansluitingen voor wasmachine en droger te vinden. Vanuit hier is ook de toegang tot de tuin. De gehele begane grond vloer is voorzien van vloerverwarming.
Op de verdieping geeft de overloop toegang tot drie slaapkamers, een badkamer, een apart toilet en royale bergruimtes. De grote slaapkamer beschikt eveneens over een Jøtul-kachel en een dakkapel die zorgt voor veel lichtinval. De badkamer is voorzien van twee wastafels en een ligbad. In de berging aan de achterzijde bevindt zich de c.v.-installatie. Via een vlizotrap op de overloop bereik je de bergzolder.
Enkele kenmerken:
- Energielabel C
- De woning wordt verkocht met ouderdomsclausule, zonder NVM vragenlijst en is niet zelf bewoond door de verkoper
- Het kadastrale perceel Diepenveen A 5044 met een kadastrale oppervlakte van 47 m2 maakt onderdeel uit van het object. Dit perceel is gelegen aan de westzijde van het perceel en is belast met een eeuwigdurend recht van erfpacht. De erfpachter betaald hier momenteel een jaarlijkse canonvergoeding voor ter grootte van € 310,36. De twee overige percelen met een gezamenlijke oppervlakte van 1.263 m2 wordt in volle eigendom overgedragen.
- Op het perceel is een puntstuk aanwezig waarmee u uw eigen grondwater kunt oppompen voor het beregenen van de tuin.
- Gebruiksoppervlakte 170 m², overig inpandige ruimte 20 m² en inhoud 700 m³
Kenmerken
Overdracht
- Laatste vraagprijs
- € 799.000 kosten koper
- Vraagprijs per m²
- € 4.700
- Status
- Verkocht
Bouw
- Soort woonhuis
- Bungalow, vrijstaande woning
- Soort bouw
- Bestaande bouw
- Bouwjaar
- 1982
- Soort dak
- Zadeldak bedekt met pannen
Oppervlakten en inhoud
- Gebruiksoppervlakten
- Wonen
- 170 m²
- Overige inpandige ruimte
- 20 m²
- Perceel
- 1.310 m²
- Inhoud
- 700 m³
Indeling
- Aantal kamers
- 5 kamers (4 slaapkamers)
- Aantal badkamers
- 2 badkamers en 2 aparte toiletten
- Badkamervoorzieningen
- Bidet, 2 ligbaden, toilet, wastafel, en dubbele wastafel
- Aantal woonlagen
- 2 woonlagen en een vliering
- Voorzieningen
- Buitenzonwering, glasvezelkabel, natuurlijke ventilatie, rolluiken, rookkanaal, en TV kabel
Energie
- Energielabel
- C
- Isolatie
- Dakisolatie, dubbel glas, muurisolatie en vloerisolatie
- Verwarming
- Cv-ketel, houtkachel en gedeeltelijke vloerverwarming
- Warm water
- Cv-ketel en elektrische boiler
- Cv-ketel
- Nefit (gas gestookt combiketel uit 2011, eigendom)
Kadastrale gegevens
- DIEPENVEEN A 5045
- Kadastrale kaart
- Oppervlakte
- 1.245 m²
- Eigendomssituatie
- Volle eigendom
- DIEPENVEEN A 7425
- Kadastrale kaart
- Oppervlakte
- 18 m²
- Eigendomssituatie
- Volle eigendom
- DIEPENVEEN A 5044
- Kadastrale kaart
- Oppervlakte
- 47 m²
- Eigendomssituatie
- Eigendom belast met erfpacht
Buitenruimte
- Ligging
- Aan rustige weg en in woonwijk
- Tuin
- Achtertuin, tuin rondom, voortuin en zijtuin
Garage
- Soort garage
- Aangebouwde stenen garage
- Capaciteit
- 1 auto
- Voorzieningen
- Elektra
Parkeergelegenheid
- Soort parkeergelegenheid
- Op eigen terrein en openbaar parkeren
Foto's 48
© 2001-2025 funda















































