
Omschrijving
Kruisherenstraat 2, Dongen
Op zoek naar een goed onderhouden hoekwoning met een diepe tuin en praktische indeling? Gelegen in de rustige woonwijk “Plan West I”, biedt deze woning een perfecte combinatie van wooncomfort en ruimte. Met voorzieningen zoals een winkelplein, openbaar vervoer, scholen, sportfaciliteiten en kinderdagopvang op loopafstand, geniet je hier van het gemak van een goede ligging in Dongen. Deze woning, ideaal voor een gezin, heeft een lichte doorzon woonkamer, open keuken en vier slaapkamers, waarvan één op zolder met een royale dakkapel.
Belangrijkste kenmerken:
- Goed onderhouden hoekwoning met royale tuin
- Centrale ligging in rustige woonwijk
- Drie ruime slaapkamers op de eerste verdieping en een zolderkamer
- Rolluiken op de eerste en tweede verdieping
- Voorzien van airconditioning (2024)
- Energielabel A+
- 12 Zonnepanelen (2024)
- Direct aan de woning een serre van 25 m²
Indeling:
Begane grond
De entree geeft toegang tot een ruime hal met garderobe, meterkast (10 groepen en 3 aardlekschakelaars) en een modern toilet. In de doorzon woonkamer vind je een gezellige zithoek en ruimte voor een grote eettafel. De open keuken in een hoekopstelling is uitgevoerd in een houtlook met rvs, voorzien van diverse inbouwapparaten zoals een kookplaat, rvs afzuigschouw, combimagnetron, koelkast, vaatwasser en close-in boiler.
Eerste verdieping
Op deze verdieping bevinden zich drie ruime slaapkamers (circa 12, 8 en 10 m²), allen met spachtelputz afgewerkte wanden en gipsplaten plafonds. De moderne badkamer beschikt over een ligbad met douche en douchewand, wastafelmeubel, handdoekenradiator en tweede toilet.
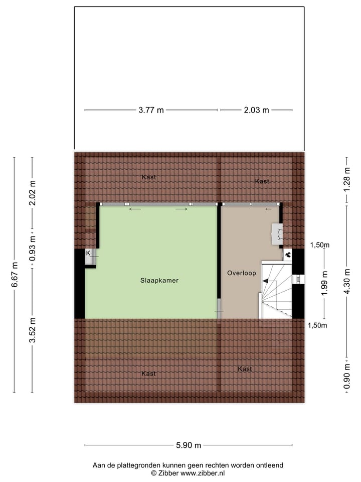
Tweede verdieping
Een vaste trap leidt naar de zolder, die zowel praktische berging biedt als een vierde slaapkamer met veel lichtinval dankzij de dakkapel. Op de voorzolder vind je de aansluitingen voor wasapparatuur en de cv-ketel (Remeha 2021).
Tuin
De diepe achtertuin biedt je altijd wel een zonnig plekje. De tuin is voorzien van terrassen, een gazon, planten borders, een kraanaansluiting en heeft aan de achterzijde een berging over de volle breedte van het perceel. Aan de berging grenst een sfeervolle overkapping met zitgedeelte. De achterom geschiedt middels een poort die uitkomt in de brandgang.
Duurzaamheid
- 12 zonnepanelen (2024)
- Dubbele beglazing
- HR-combiketel (Remeha 2021)
- Energielabel A+
Enthousiast geworden? Maak een afspraak met ons kantoor. Één van onze makelaars laat u de woning graag zien!
Meer dan gemiddelde belangstelling:
Soms zijn er zo veel belangstellenden voor een woning, dat het moeilijk te bepalen is wie de meest geschikte koper is. Op dat moment kan de verkoper – in overleg met de makelaar – besluiten de (verkoop)procedure tussentijds te wijzigen.
De informatie is door ons met de nodige zorgvuldigheid samengesteld. Alle verstrekte informatie moet beschouwd worden als een uitnodiging tot het doen van een bod of om in onderhandeling te treden. Onzerzijds wordt echter geen enkele aansprakelijkheid aanvaard voor enige onvolledigheid, onjuistheid of anderszins, dan wel de gevolgen daarvan. Alle opgegeven maten en oppervlakten zijn indicatief.
Kenmerken
Overdracht
- Laatste vraagprijs
- € 375.000 kosten koper
- Vraagprijs per m²
- € 3.827
- Status
- Verkocht
Bouw
- Soort woonhuis
- Eengezinswoning, eindwoning
- Soort bouw
- Bestaande bouw
- Bouwjaar
- 1963
Oppervlakten en inhoud
- Gebruiksoppervlakten
- Wonen
- 98 m²
- Overige inpandige ruimte
- 25 m²
- Externe bergruimte
- 16 m²
- Perceel
- 258 m²
- Inhoud
- 434 m³
Indeling
- Aantal kamers
- 6 kamers (4 slaapkamers)
- Aantal badkamers
- 1 badkamer en 1 apart toilet
- Badkamervoorzieningen
- Douche, ligbad, toilet, en wastafelmeubel
- Aantal woonlagen
- 3 woonlagen
- Voorzieningen
- Airconditioning, mechanische ventilatie, TV kabel, en zonnepanelen
Energie
- Energielabel
- A+
- Verwarming
- Cv-ketel
- Warm water
- Cv-ketel
- Cv-ketel
- Combiketel, eigendom
Kadastrale gegevens
- DONGEN A 5051
- Kadastrale kaart
- Oppervlakte
- 258 m²
- Eigendomssituatie
- Volle eigendom
Buitenruimte
- Tuin
- Achtertuin en voortuin
Bergruimte
- Schuur/berging
- Vrijstaande stenen berging
Parkeergelegenheid
- Soort parkeergelegenheid
- Openbaar parkeren
Foto's 33
© 2001-2025 funda
































