
Omschrijving
Starters opgelet! Sfeervolle en geheel modern afgewerkte jaren ’30 tussenwoning nabij de historische binnenstad.
Deze goed onderhouden en modern afgewerkte woning uit 1932 heeft de beschikking over een ruime woonkamer met half open keuken. Op de verdieping twee ruime slaapkamers en een dakterras. En voorzien van een strakke moderne keuken- en badkamerinrichting.
Centraal gelegen in de Bloemenbuurt in de wijk Krispijn nabij winkels en uitvalswegen. Op loopafstand van het Centraal Station en op een steenworp afstand van de Dordtse binnenstad. En letterlijk om de hoek van diverse buurtwinkels.
Indeling
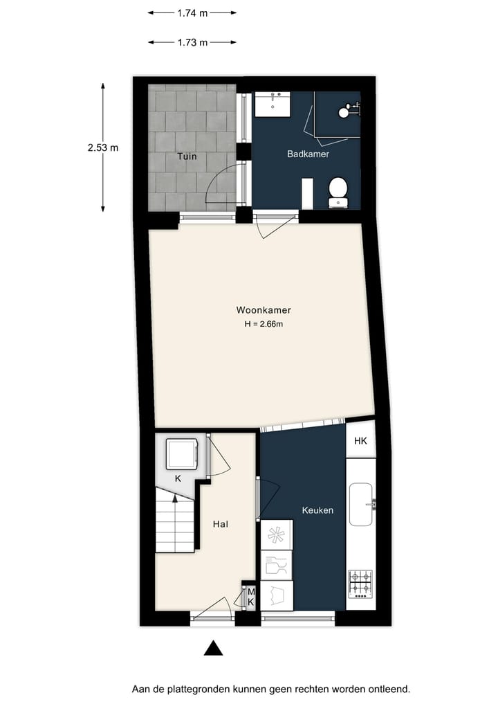
Begane grond:
Entree, hal met meterkast en bergkast onder de trap.
Via de hal toegang tot de keuken. De witte half open keuken is gelegen aan de voorzijde van de woning.
De keukeninrichting is geplaatst in wandopstelling en voorzien van een gaskookplaat met afzuigkap, dubbele spoelbak, koelkast en diverse boven- en onderkastjes.
Het werkblad biedt voldoende werkruimte en er is veel opbergruimte aanwezig.
Hier tevens de aansluitingen voor de wasmachine en vaatwasser.
Ruime woonkamer met fijne lichtinval, mooi afgewerkt met een fraaie laminaatvloer en stucwerk op de wanden. Voldoende ruimte voor een gezellige zithoek en een eettafel bij de keuken.
De geheel betegelde badkamer is gesitueerd aan de achterzijde van de woning. Deze badkamer is voorzien van een staand closet, groot wastafelmeubel met wastafel en bovenkast, designradiator en een douche met glazen wanden. Fraaie mozaïekbetegeling op de wanden.
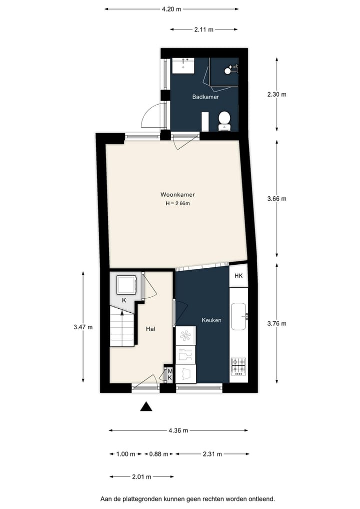
Indeling 1e verdieping
Overloop, met toegang tot de 2 slaapkamers en de bergzolder.
Slaapkamer 1, gelegen aan de voorzijde van de woning met vaste kast, dakkapel en rolluik. In de vaste kast bevindt zich de CV combiketel.
Slaapkamer 2, gelegen aan de achterzijde van de woning met twee vaste kasten en toegang tot het dakterras. Een fijne plek om buiten te zitten, waar je de hele dag zon hebt.
Plaats:
De omsloten buitenplaats is voorzien van tuinverlichting.
Algemeen:
Woonoppervlak: 68,7 m2
Bouwjaar: 1932
Eigen grond: 50 m2
Inhoud: 262 m3
Voorzien van kunststof/houten kozijnen met dubbel glas (1e verd. HR++)
CV combiketel Intergas HRE 28/24, 2014
Kenmerken
Overdracht
- Laatste vraagprijs
- € 279.000 kosten koper
- Vraagprijs per m²
- € 4.043
- Status
- Verkocht
Bouw
- Soort woonhuis
- Eengezinswoning, tussenwoning
- Soort bouw
- Bestaande bouw
- Bouwjaar
- 1932
- Soort dak
- Zadeldak bedekt met bitumineuze dakbedekking en pannen
Oppervlakten en inhoud
- Gebruiksoppervlakten
- Wonen
- 69 m²
- Gebouwgebonden buitenruimte
- 5 m²
- Perceel
- 50 m²
- Inhoud
- 262 m³
Indeling
- Aantal kamers
- 3 kamers (2 slaapkamers)
- Aantal badkamers
- 1 badkamer
- Badkamervoorzieningen
- Douche, toilet, wastafel, en wastafelmeubel
- Aantal woonlagen
- 2 woonlagen
- Voorzieningen
- Glasvezelkabel
Energie
- Energielabel
- F
- Isolatie
- Dubbel glas en vloerisolatie
- Verwarming
- Cv-ketel
- Warm water
- Cv-ketel
- Cv-ketel
- Intergas HRE 28/24 (gas gestookt combiketel uit 2014, eigendom)
Kadastrale gegevens
- DORDRECHT K 1626
- Kadastrale kaart
- Oppervlakte
- 50 m²
- Eigendomssituatie
- Volle eigendom
Buitenruimte
- Ligging
- Aan rustige weg en in woonwijk
- Tuin
- Plaats
- Plaats
- 5 m² (2,50 meter diep en 1,80 meter breed)
- Ligging tuin
- Gelegen op het zuidoosten
- Balkon/dakterras
- Dakterras aanwezig
Parkeergelegenheid
- Soort parkeergelegenheid
- Openbaar parkeren
Foto's 36
© 2001-2025 funda



































