
Omschrijving
Een eigentijdse, duurzame hoekwoning die comfort en kwaliteit combineert.
Instapklare, energiezuinige hoekwoning met royale bijkeuken en tuin op het westen.
Op een ruime kavel van 227 m² staat deze volledig gerenoveerde en energiezuinige hoekwoning met royale bijkeuken en zonnige gelegen achtertuin.
De woning is met oog voor detail gemoderniseerd en tot in de puntjes afgewerkt, hier kun je zo intrekken!
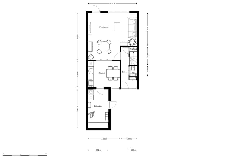
Indeling;
Begane grond: Entree met nieuwe meterkast, hal, modern toilet en handige berg-/trapkast.
De tuingerichte woonkamer met kamer-en-suite deuren biedt een fijne sfeer en veel lichtinval. De nieuwe woonkeuken is voorzien van moderne inbouwapparatuur: vaatwasser, inductiekookplaat, oven en koelkast.
In de woonkamer en keuken ligt een mooie PVC vloer met vloerverwarming en de wanden zijn strak afgewerkt.
Aansluitend een royale en geïsoleerde bijkeuken met betegelde vloer, hybride cv-opstelling, stelplaats voor het witgoed en een entree.
Eerste verdieping:
Overloop met toilet, twee ruime slaapkamers met praktische inbouwkasten. Door de dakkapellen zijn de slaapkamers heerlijk ruim.
Modern uitgevoerde badkamer met regendouche, badkamermeubel met wastafel.
Via een vlizotrap is er toegang tot de bergzolder.
Buitenom;
De zonnige tuin op het westen is onderhoudsvriendelijk aangelegd, door de gunstige ligging is er veel privacy. Voor de fietsen en het tuingereedschap staat er een nieuwe houten berging.
Op de achtergevel hangt een elektrisch zonnescherm (5 meter breed) met windmeter en afstandsbediening.
Aan de voorzijde een diepe oprit met voldoende ruimte voor meerdere auto’s.
Pluspunten
• 10 zonnepanelen (Solar, 4350 Wp);
• Hybride cv-installatie;
• 150L elektrische boiler (badkamer) + 10L keukenboiler;
• Nieuwe kunststof kozijnen en nieuw dakkapel;
• Volledig nieuwe elektrische installatie;
• Strak gestucte en geschilderde wanden (renovliesafwerking);
• Duurzaam en energiezuinig;
• Hoogwaardige afwerking;
• Instapklaar – direct te betrekken
Kortom:
Een eigentijdse, duurzame hoekwoning die comfort en kwaliteit combineert.
Kom kijken en laat je verrassen door de afwerking en het wooncomfort van De Orion 18 in Drachten!
Kenmerken
Overdracht
- Laatste vraagprijs
- € 298.000 kosten koper
- Vraagprijs per m²
- € 3.311
- Status
- Verkocht
Bouw
- Soort woonhuis
- Eengezinswoning, hoekwoning
- Soort bouw
- Bestaande bouw
- Bouwjaar
- 1980
- Soort dak
- Samengesteld dak bedekt met bitumineuze dakbedekking en pannen
Oppervlakten en inhoud
- Gebruiksoppervlakten
- Wonen
- 90 m²
- Externe bergruimte
- 10 m²
- Perceel
- 227 m²
- Inhoud
- 312 m³
Indeling
- Aantal kamers
- 3 kamers (2 slaapkamers)
- Aantal badkamers
- 2 aparte toiletten
- Aantal woonlagen
- 2 woonlagen en een zolder
- Voorzieningen
- Mechanische ventilatie, TV kabel, en zonnepanelen
Energie
- Energielabel
- Isolatie
- Dakisolatie, dubbel glas, muurisolatie en vloerisolatie
- Verwarming
- Cv-ketel, gedeeltelijke vloerverwarming en warmtepomp
- Warm water
- Elektrische boiler
- Cv-ketel
- Hybride warmtepomp (gas gestookt combiketel uit 2024, eigendom)
Kadastrale gegevens
- DRACHTEN A 10937
- Kadastrale kaart
- Oppervlakte
- 227 m²
- Eigendomssituatie
- Volle eigendom
Buitenruimte
- Ligging
- In woonwijk
- Tuin
- Achtertuin, voortuin en zijtuin
- Achtertuin
- 125 m² (12,50 meter diep en 10,00 meter breed)
- Ligging tuin
- Gelegen op het westen bereikbaar via achterom
Bergruimte
- Schuur/berging
- Vrijstaande houten berging
- Voorzieningen
- Elektra
Parkeergelegenheid
- Soort parkeergelegenheid
- Op eigen terrein
Foto's 46
© 2001-2026 funda













































