
Omschrijving
EEN AANVRAAG VOOR BEZICHTIGING ONTVANGEN WIJ GRAAG PER MAIL
Voor starter of doorstromer een ideale woning!
Deze ruime HOEKWONING met bijkeuken/berging is rustig en kindvriendelijk gelegen in een groenrijke omgeving van De Folgeren. Een mooie en vrije woonstand met ruim parkeergelegenheid. De diepe achtertuin -met achterom- is gelegen op het zuiden en grenst aan groenstrook. Met drie slaapkamers op de eerste verdieping en een vierde slaapkamer op de tweede verdieping is dit een woning met "inhoud".
INDELING
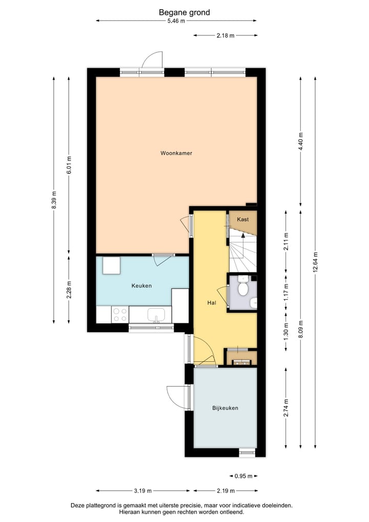
Begane grond:
Entree/hal met toegang tot de berging/bijkeuken aan de voorzijde. Deze ruimte is voorzien van een eigen entree, elektra en zoldertje.
Vanuit de hal is er toegang tot het toilet, een kast onder de trap en de woonkamer.
De tuingerichte woonkamer heeft een zeer goede lichtinval (zuidzijde) en is voorzien van een zonnescherm en tuindeur naar het terras van de achtertuin. De laminaten vloerafwerking is ook aanwezig in de keuken en de hal.
De dichte keuken is aan de voorzijde van de woning gelegen en is ingericht met een L-vormige keukenopstelling met onder- en bovenkasten, kunststof werkblad en bijbehorende apparatuur. Er is een goede lichtinval en een vrij uitzicht vanuit de keuken vanwege het raam boven het werkblad.
1e Verdieping:
Overloop met toegang tot drie slaapkamers en de badkamer. De slaapkamers hebben allen een goede maatvoering en veel lichtinval, mede vanwege de rechte muren -hoge gootlijn- waardoor er geen ruimteverlies is door het dakvlak.
De ruime en betegelde badkamer is ingedeeld met een bad, douchecabine, wandcloset en wastafel met meubel.
Er is een vaste trap naar de tweede verdieping.
2e Verdieping:
Overloop met bergruimte, dakraam, CV-ketel, wasmachine-aansluiting en met toegang tot een vierde slaapkamer met dakraam.
Tuin:
De achtertuin is gelegen op het zuiden en is aangelegd met bestraat terras, gazon, borders en erfafscheidingen. De achtertuin is bereikbaar met een eigen achterom aan de zijkant van de woning.
Bijzonderheden en/of Goed om te weten:
-totaal perceel 184 m2;
-betonnen vloeren ook op de verdiepingen;
-centrale verwarming met een Intergas HR combi ketel;
-energielabel C;
-woning met een hoge gootlijn, dus: RUIMTE;
-beschutte ligging met parkeerpleintje aan de voorzijde;
-goed bereikbaar vanaf de doorgaande en rondwegen van Drachten;
-basisscholen en wijkwinkelcentrum op korte loopafstand gelegen.
Voor indeling en maatvoering zie de plattegronden.
Deze woning heeft een eigen site:dewetterwille83.nl
Kenmerken
Overdracht
- Laatste vraagprijs
- € 259.000 kosten koper
- Vraagprijs per m²
- € 1.992
- Status
- Verkocht
Bouw
- Soort woonhuis
- Eengezinswoning, hoekwoning
- Soort bouw
- Bestaande bouw
- Bouwjaar
- 1982
- Soort dak
- Zadeldak
Oppervlakten en inhoud
- Gebruiksoppervlakten
- Wonen
- 130 m²
- Perceel
- 184 m²
- Inhoud
- 469 m³
Indeling
- Aantal kamers
- 5 kamers (4 slaapkamers)
- Aantal badkamers
- 1 badkamer en 1 apart toilet
- Badkamervoorzieningen
- Douche, ligbad, toilet, en wastafel
- Aantal woonlagen
- 3 woonlagen
- Voorzieningen
- Buitenzonwering, mechanische ventilatie, en TV kabel
Energie
- Energielabel
- C
- Isolatie
- Dakisolatie, gedeeltelijk dubbel glas en muurisolatie
- Verwarming
- Cv-ketel
- Warm water
- Cv-ketel
- Cv-ketel
- Intergas ( combiketel, eigendom)
Kadastrale gegevens
- DRACHTEN A 11817
- Kadastrale kaart
- Oppervlakte
- 184 m²
- Eigendomssituatie
- Volle eigendom
Buitenruimte
- Ligging
- Aan rustige weg, beschutte ligging en in woonwijk
- Tuin
- Achtertuin en voortuin
- Achtertuin
- 77 m² (11,00 meter diep en 7,00 meter breed)
- Ligging tuin
- Gelegen op het zuiden bereikbaar via achterom
Bergruimte
- Schuur/berging
- Vrijstaande houten berging
Foto's 36
© 2001-2025 funda



































