
Omschrijving
Ruimte, licht en sfeer! Dat is wat dit uitstekend onderhouden herenhuis (middenwoning) te bieden heeft. De woning heeft een grote lichte woonkamer met open keuken, vier slaapkamers, een dakterras, compleet ingerichte badkamer en een fantastische tuin op het zuidwesten met berging en carport. Deze woning heeft een woonoppervlakte van maar liefst 172 m² en is energiezuinig gebouwd, waardoor de energiekosten laag zijn!
Ligging
De woning is gelegen in de wijk de Wildbaan in Driebergen-Rijsenburg. Het is een kinderrijke wijk, met scholen, winkels en sportfaciliteiten in de nabije omgeving. Winkelcentrum De Sluis heeft een grote Jumbo en verder een diversiteit aan winkels voor de dagelijkse boodschappen. Het station Driebergen-Zeist is op 10 minuten fietsafstand en het is slechts een paar minuten rijden naar de oprit van de A12. Het centrum van Driebergen-Rijsenburg heeft een gezellige winkelstraat met diverse winkels en horecagelegenheden.
In 2001 zijn aan de Sint Hubertuslaan 12 van deze fraai vormgegeven woningen gebouwd naar een ontwerp van de Belgische architect Jo Crepain. Kenmerkend zijn de strakke belijningen; donkere steen contrasterend met aluminium en brede smalle raampartijen in de gevels die in verbinding staan met ‘de buitenwereld’. Binnen vallen juist de op de tuin gerichte grote raampartijen op, die zorgen voor een zee van licht. Een doordacht ontwerp dus, dat veel privacy oplevert in huis én tuin.
Dit is een buitenkans wanneer je op zoek bent naar veel woonruimte in combinatie met een zonnig perceel op een kindvriendelijke locatie.
Indeling
Entree met garderobe, toilet, meterkast en een ruime berging onder de trap. Toegang tot de opvallend lichte en royale woonkamer met compleet ingerichte open keuken. Op de gehele beganegrond is gekozen voor een prachtige kwaliteit teakhout parketvloer. De Bruynzeel keuken biedt héél veel werkruimte en is voorzien van alle noodzakelijke inbouwapparatuur, waaronder een inductie kookplaat, vaatwasser en een combi-oven/magnetron van Siemens. Bij de keuken is ook een handige provisieruimte.
Vanuit de woonkamer is er toegang tot een tweede hal met trapopgang naar de eerste verdieping en de uitgang naar de tuin.
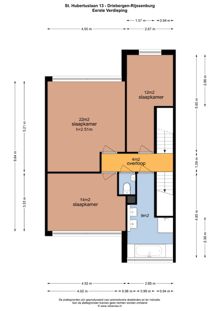
Eerste verdieping
De overloop biedt toegang tot drie slaapkamers, een badkamer en een separaat toilet met fonteintje. De hoofdslaapkamer is voorzien van een moderne inbouwkledingkast met spiegelwand en is buitengewoon ruim en licht, evenals de slaapkamer aan de voorzijde. De derde slaapkamer kan ook als thuiswerkplek/kantoor gebruikt worden.
De badkamer is comfortabel ingericht met een bad, twee wastafels, een aparte douche en een designradiator. Op deze verdieping is gekozen voor een laminaatvloer met een houten toplaag.
Tweede verdieping
Op deze verdieping is een ruime vierde slaapkamer. Deze kamer heeft veel lichtinval door de grote schuifpui die toegang geeft naar het dakterras. Op de overloop is de aansluiting voor wasmachine/droger, de cv installatie en de warmte terugwin (WTW) installatie. Ook op deze verdieping is gekozen voor een laminaatvloer met een houten toplaag.
Tuin en berging
Vanuit de woonkamer is via de grote schuifpui toegang naar de achtertuin, die op het zuidwesten is gelegen. De tuin is onder architectuur aangelegd met twee vijvers en biedt optimale privacy. Ook is de tuin zeer onderhoudsvriendelijk.
De berging biedt genoeg ruimte voor het stallen van fietsen en het bergen van tuin benodigdheden. De carport is ideaal voor het parkeren op eigen terrein en het stallen van de kliko’s.
Afmetingen
• Woonoppervlak 172 m²
• Perceelgrootte 206 m²
• Externe bergruimte 13 m²
• Inhoud 591 m³
Alle maten zijn officieel gemeten op basis van de NEN2580-meetmethode.
Bijzonderheden
• Vaillant HR Solide Plus cv-ketel uit het jaar 2012;
• De woning is volledig geïsoleerd;
• Het energielabel van de woning is een A;
• Er is een warmte terugwin installatie (WTW);
• Er is energiezuinig gebouwd, waardoor er lage energiekosten zijn;
• De woning is voorzien van screens aan de buitenzijde;
• Er is een elektrisch bedienbaar zonnescherm aan de achterzijde van de woning aanwezig;
• Er is een mogelijkheid om op de eerste verdieping een opbouw te realiseren;
• Op het dak kun je gemakkelijk zonnepanelen aanbrengen;
• De achtertuin is onder architectuur aangelegd;
• In de zonnige tuin op het zuidwesten is veel rust en privacy;
• De oplevering is in overleg.
Ben je enthousiast geworden?
Dat kunnen we ons goed voorstellen! Wij hebben twee open huis dagen ingepland: op woensdag 10 april van 16:00 tot 18:00 uur en zaterdag 13 april van 15:00 tot 17:00 uur. De verkoopbrochure met plattegronden zijn te downloaden op onze website.
Kenmerken
Overdracht
- Laatste vraagprijs
- € 795.000 kosten koper
- Vraagprijs per m²
- € 4.622
- Status
- Verkocht
Bouw
- Soort woonhuis
- Eengezinswoning, geschakelde woning
- Soort bouw
- Bestaande bouw
- Bouwjaar
- 2001
- Soort dak
- Plat dak bedekt met bitumineuze dakbedekking en overig
- Keurmerken
- Energie Prestatie Advies
Oppervlakten en inhoud
- Gebruiksoppervlakten
- Wonen
- 172 m²
- Gebouwgebonden buitenruimte
- 12 m²
- Externe bergruimte
- 13 m²
- Perceel
- 206 m²
- Inhoud
- 591 m³
Indeling
- Aantal kamers
- 5 kamers (4 slaapkamers)
- Aantal badkamers
- 1 badkamer en 2 aparte toiletten
- Badkamervoorzieningen
- Dubbele wastafel, inloopdouche, en ligbad
- Aantal woonlagen
- 3 woonlagen
- Voorzieningen
- Buitenzonwering, glasvezelkabel, mechanische ventilatie, natuurlijke ventilatie, en TV kabel
Energie
- Energielabel
- A
- Isolatie
- Dakisolatie, dubbel glas, muurisolatie en vloerisolatie
- Verwarming
- Cv-ketel
- Warm water
- Cv-ketel
- Cv-ketel
- Vaillant HR Solide Plus (gas gestookt combiketel uit 2012, eigendom)
Kadastrale gegevens
- DRIEBERGEN-RIJSENBURG C 4246
- Kadastrale kaart
- Oppervlakte
- 206 m²
- Eigendomssituatie
- Volle eigendom
Buitenruimte
- Ligging
- Aan rustige weg, beschutte ligging en in woonwijk
- Tuin
- Achtertuin en voortuin
- Achtertuin
- 113 m² (15,00 meter diep en 7,50 meter breed)
- Ligging tuin
- Gelegen op het zuidwesten bereikbaar via achterom
- Balkon/dakterras
- Dakterras aanwezig
Bergruimte
- Schuur/berging
- Vrijstaande houten berging
- Voorzieningen
- Elektra
Garage
- Soort garage
- Carport
Parkeergelegenheid
- Soort parkeergelegenheid
- Op eigen terrein en openbaar parkeren
Foto's 44
© 2001-2025 funda











































