
Omschrijving
Op zoek naar een zeer ruime tussenwoning met een aanbouw, garage en volop mogelijkheden voor creatieve verbouwingen en persoonlijke touch?
Dan is deze woning gelegen aan de Kerkveldsweg Oost 13b te Echt precies wat u zoekt! Met een woonoppervlakte van ca. 142 m², inhoud van ca. 753 m³ en een perceel van 246 m² biedt deze woning volop mogelijkheden.
Ontdek de veelzijdige van deze woning, die een scala aan mogelijkheden biedt voor een aangepaste indeling en modernisering.
De woning is zeer centraal gelegen. Alle basisvoorzieningen, o.a. diverse supermarkten, winkels, sportactiviteiten, NS station en (middelbare) scholen bevinden zich op loop/fietsafstand. Echt is centraal gelegen ten opzichte van diverse uitvalswegen zoals de A2 en A73, waardoor steden als Roermond, Venlo, Maastricht en Eindhoven snel en goed bereikbaar zijn.
Alleen een bezichtiging geeft een juiste weergave van de woning. Wij laten het U graag zien!
De indeling is als volgt:
SOUTERRAIN: Op gedeeld in 2 provisiekelders.
BEGANE GROND:
Bij binnenkomst in de hal/entree wordt u verwelkomd door een prachtige natuurstenen vloer de toiletruimte en de meterkast. Vanuit de hal zijn zowel de 1e etage, souterrain als de keuken en de woonkamer te bereiken. De woonkamer bevindt zich aan de voorzijde van de woning en beschikt over een parketvloer. De woonkamer staat in openverbinding met de keuken en geeft via de schuifpui toegang tot de tuinkamer.
De keuken biedt een hoekopstelling en is uitgerust met een koelkast, 4-pits gasfornuis, oven en afzuigkap. Grenzend aan de keuken bevindt zich een bijkeuken die leidt naar de garage.
In de bijkeuken bevinden zich de witgoedaansluitingen.
Vanuit de tuinkamer kunt u optimaal kunt genieten van contact met de tuin.
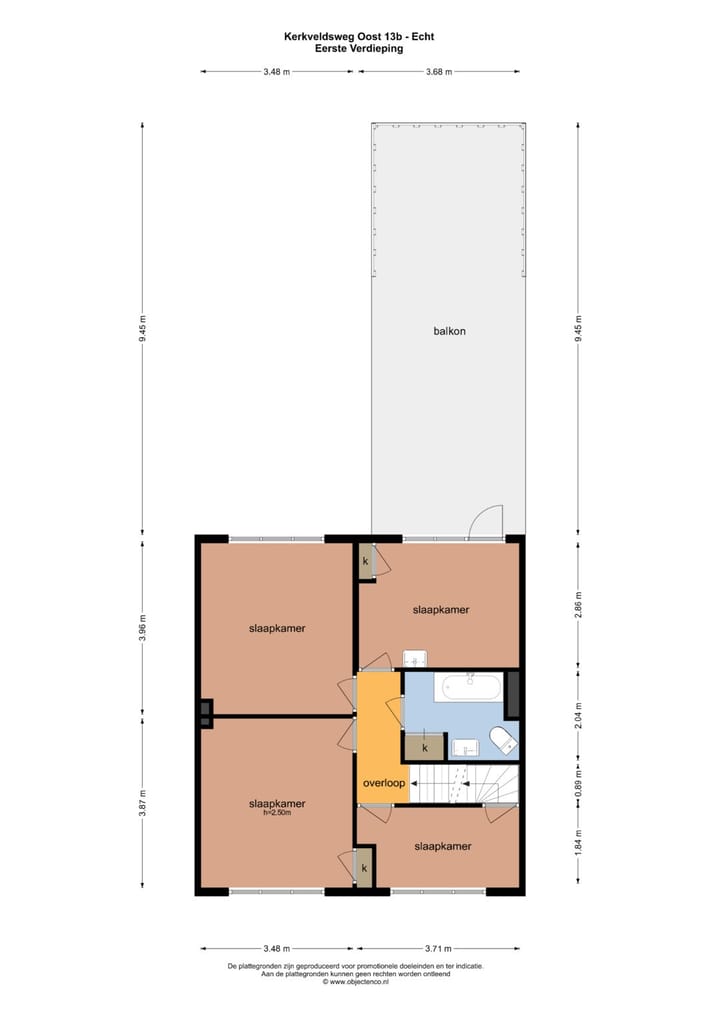
EERSTE VERDIEPING:
Via de overloop bereik je de vier slaapkamers voorzien van een Novilon vloer en de badkamer welke is uitgerust met een wastafel, 2e toilet en ligbad.
TWEEDE VERDIEPING:
Via een vaste trap is de royale 2e etage bereikbaar. Deze is nu in gebruik als bergruimte. Met de mogelijkheid tot het maken van meerdere slaapkamers.
TUIN:
Een groene tuin met overdekt terras is aan de achterzijde van de woning gelegen. Aan de achterzijde van de woning bevindt zich een brede oprit die leidt naar de garage.
Bijzonderheden:
- Bouwjaar: 1960
- Perceeloppervlakte: 246m²
- Woonoppervlakte: ca. 142m²
- Overige inpandige ruimte: ca.76m²
- Gebouw gebonden buitenruimte: ca.44m²
- Inhoud: ca.753m³
- Verwarming: CV ketel (eigendom)
- Extra: gedeeltelijk dubbele beglazing
Bijzonderheden
INFORMATIE
Algemeen: De gegevens en eventuele plattegronden in deze documentatie zijn zo
correct mogelijk weergegeven, opdat u zich kunt oriënteren omtrent het object. De
informatie is met zorg samengesteld en uit ons inziens betrouwbare bron afkomstig. Ten
aanzien van de juistheid ervan kunnen wij echter geen aansprakelijkheid aanvaarden.
Eventuele bijgesloten tekeningen zijn ter indicatie en kunnen afwijken van de werkelijke
situatie.
Indicatie maten: De gehanteerde Meetinstructie is gebaseerd op de NEN2580. De
Meetinstructie is bedoeld om een eenduidige manier van meten toe te passen voor het
geven van een indicatie van de gebruiksoppervlakte. De opgegeven meetuitkomsten
zijn indicatief en kunnen niet als een garantie worden gezien. De Meetinstructie sluit
verschillen in meetuitkomsten niet uit, door bijvoorbeeld interpretatieverschillen,
afrondingen of beperkingen bij het uitvoeren van de meting en mede als gevolg van het
gegeven dat Peters & Jacobs makelaardij geen professioneel inmeter is.
Onderzoeksplicht: De koper / geïnteresseerde heeft een onderzoeksplicht. U mag voor
eigen rekening een bouwkundige keuring laten verrichten / dan wel adviseurs
raadplegen om een goed inzicht te verkrijgen over de staat en het gebruik van deze
onroerende zaak.
Bieding uitbrengen: Het bod dat u wilt uitbrengen kunt u doorgeven aan de makelaar.
Waarborgsom: De waarborgsom/bankgarantie bedraagt 10% van de koopsom en is
een uitdrukkelijk onderdeel van de koopovereenkomst. De koper dient deze binnen 3
dagen na het vervallen van eventuele ontbindende voorwaarde bij de transporterende
notaris te deponeren.
De koopovereenkomst / schriftelijkheidsvereiste: Zodra er een overeenstemming is
tussen de koper en verkoper over de koopsom, de opleveringsdatum en alle overige
voorwaarden, wordt door de makelaar een koopovereenkomst opgemaakt, geheel
conform het VBO-model. Uitdrukkelijk wordt gesteld dat de koop van de woning met
betrekking tot deze onroerende zaak pas tot stand is gekomen nadat alle partijen de
koopovereenkomst hebben getekend, de “schriftelijkheidvereiste” is in deze van
toepassing.
De oplevering: Vóór de eigendomsoverdracht bij de notaris zal er een laatste inspectie
plaatsvinden om te controleren of de woning wordt afgeleverd zoals afgesproken. Hierbij
worden ook de meterstanden genoteerd.
Uiteraard kan het zijn dat er nog vragen of onduidelijkheden zijn, laat het ons
even weten.
Wij helpen u graag!
Kenmerken
Overdracht
- Laatste vraagprijs
- € 249.000 kosten koper
- Vraagprijs per m²
- € 1.754
- Status
- Verkocht
Bouw
- Soort woonhuis
- Eengezinswoning, tussenwoning
- Soort bouw
- Bestaande bouw
- Bouwjaar
- 1960
- Soort dak
- Zadeldak bedekt met pannen
Oppervlakten en inhoud
- Gebruiksoppervlakten
- Wonen
- 142 m²
- Overige inpandige ruimte
- 76 m²
- Gebouwgebonden buitenruimte
- 44 m²
- Perceel
- 246 m²
- Inhoud
- 753 m³
Indeling
- Aantal kamers
- 6 kamers (4 slaapkamers)
- Aantal badkamers
- 1 badkamer en 1 apart toilet
- Badkamervoorzieningen
- Ligbad, toilet, en wastafel
- Aantal woonlagen
- 2 woonlagen, een zolder, en een kelder
- Voorzieningen
- Rolluiken
Energie
- Energielabel
- F
- Isolatie
- Gedeeltelijk dubbel glas
- Verwarming
- Cv-ketel
- Warm water
- Cv-ketel
- Cv-ketel
- Gas gestookt, eigendom
Kadastrale gegevens
- ECHT-SUSTEREN K 1193
- Kadastrale kaart
- Oppervlakte
- 246 m²
- Eigendomssituatie
- Volle eigendom
Buitenruimte
- Ligging
- In woonwijk
- Tuin
- Achtertuin
- Balkon/dakterras
- Balkon aanwezig
Garage
- Soort garage
- Aangebouwde stenen garage
- Capaciteit
- 1 auto
Parkeergelegenheid
- Soort parkeergelegenheid
- Openbaar parkeren
Foto's 41
© 2001-2025 funda








































