
Omschrijving
Bij deze ruime hoekwoning in Egmond-Binnen zijn er genoeg mogelijkheden om dit huis echt uw thuis te maken. Met drie ruime slaapkamers en een grote zolder met een vierde slaapkamer is deze woning uitstekend voor een leuke familie.
MEER ZIEN?
Via 'Download brochure' en 'Bekijk de unieke website' kom je terecht in de onlineomgeving van deze woning. Hier kun je alle informatie, documenten en meer van de woning bekijken.
Met zijn ruime lichte woonkamer met openslaande deuren naar de tuin is het heerlijk om lekker een boekje te lezen of tv te kijken. Vanaf de eetkamertafel zie je de vogeltjes buiten in de tuin spelen. Via een sfeervolle boog loop je zo de moderne en ook weer lichte keuken in. De ruimte is groot genoeg om nog een eetkamertafel in kwijt te kunnen. En hoe comfortabel, de hele begane grond is voorzien van vloerverwarming! De berging is vanuit de keuken bereikbaar. Op de eerste verdieping zijn maar liefst 3 ruime slaapkamers en een fijne badkamer welke van alle gemakken voorzien is. De schuine daken in de slaapkamers maken het extra sfeervol. Op zolder is de vierde ruime slaapkamer met ook hier weer genoeg raampartijen zodat het een lekkere lichte kamer is.
De woning is gelegen aan een doorgaande weg en binnen enkele loopminuten bevindt u zich op het mooie Noord-Hollandse strand of in de duinen voor een heerlijke wandeling. Ook de bosgebieden van Bergen, Schoorl en Heiloo zijn snel te bereiken. Nabij de woning is een winkelstraat en een supermarkt gevestigd. Egmond-Binnen ligt iets ten zuiden van de gezellige stad Alkmaar en op ongeveer 1 kilometer van Heiloo.
De indeling is als volgt:
Begane grond: Entree, meterkast. Lichte woonkamer, met strak gestukte wanden, open trap naar boven, openslaande tuindeuren, moderne ruime woonkeuken, toilet, berging met loopdeur naar de achtertuin. De achtertuin is op het oosten gelegen en biedt voldoende ruimte voor een gezellig tuinfeest, een barbecue of om simpelweg gewoon even te ontspannen. Tevens heeft de woning beschikking over een berging en een eigen parkeerplek aan de voorzijde van de woning.
1e Verdieping: Overloop, drie ruime slaapkamers en een nette badkamer voorzien van een tweede toilet, wastafel, whirlpool en inloopdouche.
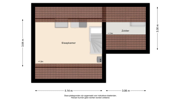
2e Verdieping: Vaste trap naar voorzolder en ruime 4e slaapkamer met dakraam
Bijzonderheden:
- Bouwjaar 1989
- Perceeloppervlakte 227 m²
- Woonoppervlakte 126 m²
- Inhoud 488 m³
- Energielabel B
- Duingebied en strand op steenworp afstand
- Berging op begane grond
- Tuin op het oosten
Interesse in deze woning? Schakel direct uw eigen NVM-aankoopmakelaar in.
Uw NVM-aankoopmakelaar komt op voor úw belang en bespaart u tijd, geld en zorgen.
Adressen van collega NVM-aankoopmakelaars vindt u op Funda.
Kenmerken
Overdracht
- Laatste vraagprijs
- € 529.000 kosten koper
- Vraagprijs per m²
- € 4.198
- Status
- Verkocht
Bouw
- Soort woonhuis
- Eengezinswoning, hoekwoning
- Soort bouw
- Bestaande bouw
- Bouwjaar
- 1989
- Specifiek
- Gedeeltelijk gestoffeerd
- Soort dak
- Zadeldak bedekt met pannen
Oppervlakten en inhoud
- Gebruiksoppervlakten
- Wonen
- 126 m²
- Overige inpandige ruimte
- 11 m²
- Externe bergruimte
- 5 m²
- Perceel
- 227 m²
- Inhoud
- 488 m³
Indeling
- Aantal kamers
- 7 kamers (4 slaapkamers)
- Aantal badkamers
- 1 badkamer en 1 apart toilet
- Badkamervoorzieningen
- Douche, jacuzzi, toilet, en wastafel
- Aantal woonlagen
- 3 woonlagen
- Voorzieningen
- Dakraam, mechanische ventilatie, en TV kabel
Energie
- Energielabel
- B
- Isolatie
- Dakisolatie, muurisolatie en vloerisolatie
- Verwarming
- Cv-ketel
- Warm water
- Cv-ketel
- Cv-ketel
- Intergas HRE (gas gestookt combiketel uit 2022, eigendom)
Kadastrale gegevens
- EGMOND-BINNEN C 2589
- Kadastrale kaart
- Oppervlakte
- 227 m²
- Eigendomssituatie
- Volle eigendom
Buitenruimte
- Ligging
- In woonwijk
- Tuin
- Achtertuin en voortuin
- Achtertuin
- 76 m² (8,00 meter diep en 9,50 meter breed)
- Ligging tuin
- Gelegen op het oosten bereikbaar via achterom
Bergruimte
- Schuur/berging
- Vrijstaande houten berging
Parkeergelegenheid
- Soort parkeergelegenheid
- Op eigen terrein en openbaar parkeren
Foto's 43
© 2001-2025 funda










































