
Omschrijving
Goed onderhouden, ruime maisonnette met 3 slaapkamers, een royaal dakterras op het zonnige zuiden en een eigen berging op de begane grond! Verder is de maisonnette nog voorzien van een praktische bijkeuken en een extra bergzolder. In 2023 zijn de spouwmuren opnieuw geïsoleerd en in 2024 zijn er 7 zonnepanelen geplaatst en een airconditioning. De maisonnette is zeer gunstig en goed gelegen in de wijk 't Ven in stadsdeel Strijp nabij diverse winkelvoorzieningen, scholen, park, restaurants en verschillende uitvalswegen. Ook zijn er voldoende, gratis parkeerplaatsen beschikbaar in de straat. Zoekt u een instapklaar appartement met een geweldig dakterras? Dan moet u dit gezien hebben!
INDELING:
BEGANE GROND:
Eigen entree met trapopgang naar de maisonnette. Meterkast met 6 groepen en 2 aardlekschakelaars.
1E VERDIEPING:
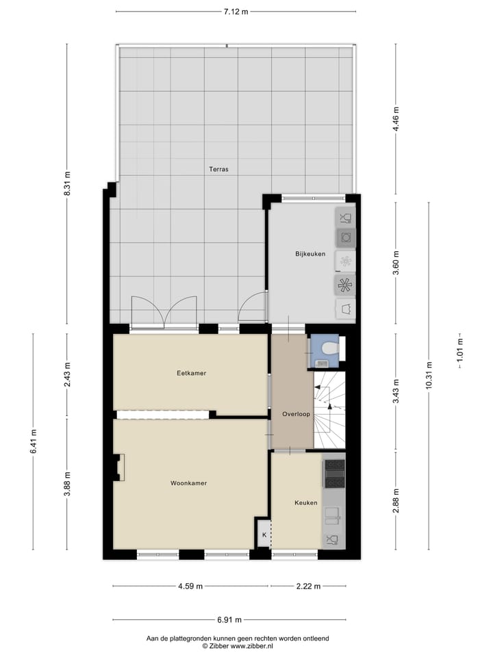
Hal / overloop met vinyl vloer en stucwerk wandafwerking. Separaat toilet met hangcloset en fonteintje. Ruime woonkamer met vinyl vloer, stucwerk wandafwerking en dubbele openslaande deuren naar het dakterras. De woonkamer is fraai opgedeeld in een zit- en een eetgedeelte. Flinke raampartijen zorgen voor veel daglicht in de woning. Verder is er nog een sfeervolle schouw in het zitgedeelte.
Dichte keuken aan de voorzijde met vinyl vloer, stucwerk wandafwerking en een rechte keuken opstelling. De keukenopstelling is vernieuwd in 2017 en is voorzien van verschillende inbouwapparatuur; 4-pits gasfornuis, afzuigkap, combi oven/magnetron (2020), koelkast en verschillende opbergkastjes en lades.
Praktische bijkeuken aan de achterzijde vv zeil vloer en deur naar het dakterras. In de bijkeuken bevinden zich de aansluitingen voor de wasapparatuur.
2E VERDIEPING:
Overloop met vinyl vloer, stucwerk wandafwerking, luik naar de bergvliering en airconditioning (2024). Slaapkamer 1 aan de voorzijde met vinyl vloer en stucwerk wandafwerking. Slaapkamer 2 aan de achterzijde met vinyl vloer en stucwerk wandafwerking. Slaapkamer 3 aan de voorzijde met vinyl vloer en stucwerk wandafwerking. Walk in closet aan de achterzijde met vinyl vloer en raam. Deze kamer kan eventueel ook prima dienen als een thuis kantoor. Volledig betegelde badkamer aan de achterzijde met ligbad, douche en een wastafel met meubel.
BERGVLIERING:
Via vlizotrap bereikbare bergvliering. Een flinke en vooral praktische opbergzolder. Ideaal voor het opbergen van bijvoorbeeld uw seizoensartikelen. Hier bevindt zich de CV ketel (Remeha, 2005).
DAKTERRAS EN BERGING:
Flink dakterras, ruim 50 m2, gelegen op het zonnige zuiden. Het dakterras is geheel voorzien van een tegel vloer, er zijn verschillende elektra punten en er is een kraantje. Fietsen berging op de begane grond aan de achterzijde.
ALGEMEEN:
- Goed onderhouden, ruime maisonnette met 3 slaapkamers, een royaal dakterras op het zonnige zuiden en een eigen berging op de begane grond!
- De maisonnette is zeer gunstig en goed gelegen in de wijk 't Ven in stadsdeel Strijp nabij diverse winkelvoorzieningen, scholen, park, restaurants en verschillende uitvalswegen.
- In 2023 is het stucwerk in de hal en in de trapopgang vernieuwd.
- In 2023 zijn de spouwmuren opnieuw geïsoleerd.
- In 2024 zijn er 7 zonnepanelen geplaatst.
- In 2024 is er een airconditioning geplaatst.
- Energielabel A.
- Service kosten VvE € 200,- per maand.
- Aanvaarding in overleg.
Kenmerken
Overdracht
- Laatste vraagprijs
- € 400.000 kosten koper
- Vraagprijs per m²
- € 3.922
- Status
- Verkocht
- Bijdrage VvE
- € 200,00 per maand
Bouw
- Soort appartement
- Maisonnette (appartement)
- Soort bouw
- Bestaande bouw
- Bouwjaar
- 1952
- Soort dak
- Zadeldak bedekt met pannen
Oppervlakten en inhoud
- Gebruiksoppervlakten
- Wonen
- 102 m²
- Overige inpandige ruimte
- 16 m²
- Gebouwgebonden buitenruimte
- 50 m²
- Inhoud
- 387 m³
Indeling
- Aantal kamers
- 5 kamers (3 slaapkamers)
- Aantal badkamers
- 1 badkamer
- Badkamervoorzieningen
- Douche, ligbad, wastafel, en wastafelmeubel
- Aantal woonlagen
- 2 woonlagen en een vliering
- Voorzieningen
- Airconditioning, glasvezelkabel, natuurlijke ventilatie, rookkanaal, TV kabel, en zonnepanelen
- Gelegen op
- 2e woonlaag
Energie
- Energielabel
- A
- Isolatie
- Dakisolatie, dubbel glas, HR-glas en muurisolatie
- Verwarming
- Cv-ketel
- Warm water
- Cv-ketel
- Cv-ketel
- Remeha (gas gestookt combiketel uit 2005, eigendom)
Kadastrale gegevens
- STRIJP C 6475
- Kadastrale kaart
- Eigendomssituatie
- Volle eigendom
Buitenruimte
- Ligging
- In woonwijk
- Tuin
- Zonneterras
- Zonneterras
- 59 m² (8,31 meter diep en 7,12 meter breed)
- Ligging tuin
- Gelegen op het zuiden
- Balkon/dakterras
- Dakterras aanwezig
Bergruimte
- Schuur/berging
- Vrijstaande stenen berging
- Voorzieningen
- Elektra
Parkeergelegenheid
- Soort parkeergelegenheid
- Openbaar parkeren
VvE checklist
- Inschrijving KvK
- Ja
- Jaarlijkse vergadering
- Ja
- Periodieke bijdrage
- Ja (€ 200,00 per maand)
- Reservefonds aanwezig
- Ja
- Onderhoudsplan
- Ja
- Opstalverzekering
- Ja
Foto's 37
© 2001-2025 funda




































