
Omschrijving
ZIJ presenteert dit herenhuis aan de Zuiderkerkstraat 12 te Enkhuizen. Stijlvol wonen in de binnenstad, met het comfort van nu!
Droom jij van wonen in de historische binnenstad van Enkhuizen, maar dan wél met eigen parkeerplek en het comfort van een jonge woning? Dan is deze prachtige stadswoning aan de Zuiderkerkstraat 12 jouw kans. Een charmant herenhuis met drie slaapkamers, twee badkamers, een garage én een royaal dakterras op een unieke plek in hartje stad.
De ligging is ideaal: een rustige zijstraat van de levendige Westerstraat, de winkelstraat van Enkhuizen. Binnen enkele minuten wandel je naar sfeervolle horecagelegenheden, de jachthaven en het station. De stad bruist, maar jouw thuis is een oase van rust. Hier voelt elke dag als een beetje vakantie.
Welkom thuis
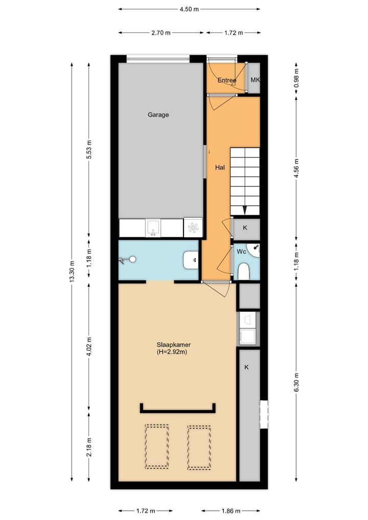
De woning is in 2006 gebouwd en heeft energielabel A. Voor de deur is een eigen parkeerplek, wel zo comfortabel in de binnenstad. Bij binnenkomst stap je de hal binnen, waar zich de meterkast, garderobe, het toilet en de toegang tot de garage én de slaapkamer bevinden. De garage is voorzien van elektra en water, en is perfect als berging, hobbyruimte of plek voor je fiets of motor. De elektrische garagedeur maakt het compleet.
Aan de achterzijde van de woning bevindt zich een royale slaapkamer met een nette keramische houtlook tegelvloer met vloerverwarming, een grote kastenwand en ruimte voor een bureau. Dankzij de lichtkoepels valt hier heerlijk veel daglicht naar binnen. Aangrenzend vind je de recent vernieuwde badkamer op de begane grond: stijlvol uitgevoerd met een inloopdouche, wastafelmeubel en een sunshower.
Door de grootte van de slaapkamer beneden is het zelfs mogelijk om deze woning dubbel te bewonen of biedt je een familielid meer eigen woonruimte.
Woonverdieping met heerlijk terras
Op de eerste verdieping vind je de leefruimte: een fijne woonkamer aan de voorzijde met uitzicht op de straat en een robuuste, op maat gemaakte vensterbank die direct de aandacht trekt. Aan de achterzijde is de ruime woonkeuken, voorzien van alle luxe: een grote oven, combimagnetron, vaatwasser, koelkast, Quooker en een gaskookplaat. Dankzij de op maat gemaakte U-vormige zitbank is er een knusse eetplek gecreëerd.
Via de dubbele deuren bereik je het royale dakterras. Gelegen op het noordwesten biedt deze plek volop zon in de middag en avond. De composiet vlonderdelen zorgen voor een strakke, onderhoudsvriendelijke basis. Hier is ruimte genoeg voor een grote loungebank of eettafel: perfect voor lange zomeravonden. En wordt het te warm? Het op maat gemaakte sunscreen overdekt het terras waardoor het heerlijk koel kan blijven tijdens de zonnige dagen.
Sfeervol slapen onder de balken
Op de tweede verdieping zijn nog twee slaapkamers aanwezig. De kleinere kamer is ideaal als kinderkamer, thuiswerkplek, sportruimte of walk-in closet. De grote slaapkamer ademt sfeer, met zichtbare houten dakconstructie en een fijne indeling.
En dan de tweede badkamer: een echte blikvanger. In december 2022 is deze met veel oog voor stijl gerealiseerd. Denk aan een vrijstaand hoekbad, inloopdouche, tweede toilet, dubbele wastafel en een luxe afwerking. De blauwgroene hexagon-tegels in combinatie met houtaccenten geven de ruimte een frisse, eigentijdse uitstraling. Dankzij het grote dakraam is ook deze badkamer heerlijk licht.
Bijzonderheden op een rij:
* Unieke locatie in de historische binnenstad
* Moderne woning uit 2006
* Energielabel A
* Herenhuis met garage
* Drie slaapkamers | Twee nieuwe badkamers
* Fraai aangelegd dakterras op het noordwesten
* Luxe keuken en stijlvolle afwerking
Ben jij op zoek naar een plek waar sfeer, comfort en locatie samenkomen? Dan nodigen we je van harte uit voor een bezichtiging. Zuiderkerkstraat 12 zou zomaar jouw nieuwe thuis kunnen zijn.
Kenmerken
Overdracht
- Laatste vraagprijs
- € 550.000 kosten koper
- Vraagprijs per m²
- € 5.340
- Status
- Verkocht
Bouw
- Soort woonhuis
- Eengezinswoning, geschakelde woning
- Soort bouw
- Bestaande bouw
- Bouwjaar
- 2006
- Soort dak
- Schilddak bedekt met pannen
Oppervlakten en inhoud
- Gebruiksoppervlakten
- Wonen
- 103 m²
- Overige inpandige ruimte
- 15 m²
- Gebouwgebonden buitenruimte
- 25 m²
- Perceel
- 79 m²
- Inhoud
- 442 m³
Indeling
- Aantal kamers
- 4 kamers (3 slaapkamers)
- Aantal badkamers
- 2 badkamers en 1 apart toilet
- Badkamervoorzieningen
- 2 inloopdouches, wastafel, 2 wastafelmeubels, dubbele wastafel, ligbad, toilet, en vloerverwarming
- Aantal woonlagen
- 3 woonlagen
- Voorzieningen
- Buitenzonwering, dakraam, mechanische ventilatie, en TV kabel
Energie
- Energielabel
- A
- Isolatie
- Dakisolatie, dubbel glas, muurisolatie, vloerisolatie en volledig geïsoleerd
- Verwarming
- Cv-ketel
- Warm water
- Cv-ketel
- Cv-ketel
- Vaillant (gas gestookt combiketel uit 2019, eigendom)
Kadastrale gegevens
- ENKHUIZEN F 173
- Kadastrale kaart
- Oppervlakte
- 37 m²
- Eigendomssituatie
- Volle eigendom
- ENKHUIZEN F 3578
- Kadastrale kaart
- Oppervlakte
- 42 m²
- Eigendomssituatie
- Volle eigendom
Buitenruimte
- Ligging
- In centrum
- Tuin
- Zonneterras
- Zonneterras
- 25 m² (5,40 meter diep en 4,50 meter breed)
- Ligging tuin
- Gelegen op het noorden
- Balkon/dakterras
- Dakterras aanwezig
Garage
- Soort garage
- Inpandig
- Capaciteit
- 1 auto
- Voorzieningen
- Elektrische deur, elektra, verwarming en stromend water
- Isolatie
- Dakisolatie, muurisolatie, vloerisolatie en volledig geïsoleerd
Parkeergelegenheid
- Soort parkeergelegenheid
- Op eigen terrein
Foto's 40
© 2001-2026 funda







































