
Omschrijving
In het centrum-West, rustig gelegen, over volle breedte uitgebouwde tussenwoning met stenen berging en gezellige stadstuin op zonzijde. Deze woning is geheel gasloos, vloerverwarming en warmwater via pellets, elektra en zonnepanelen.
Alle voorzieningen zijn op loopafstand bereikbaar.
Begane grond:
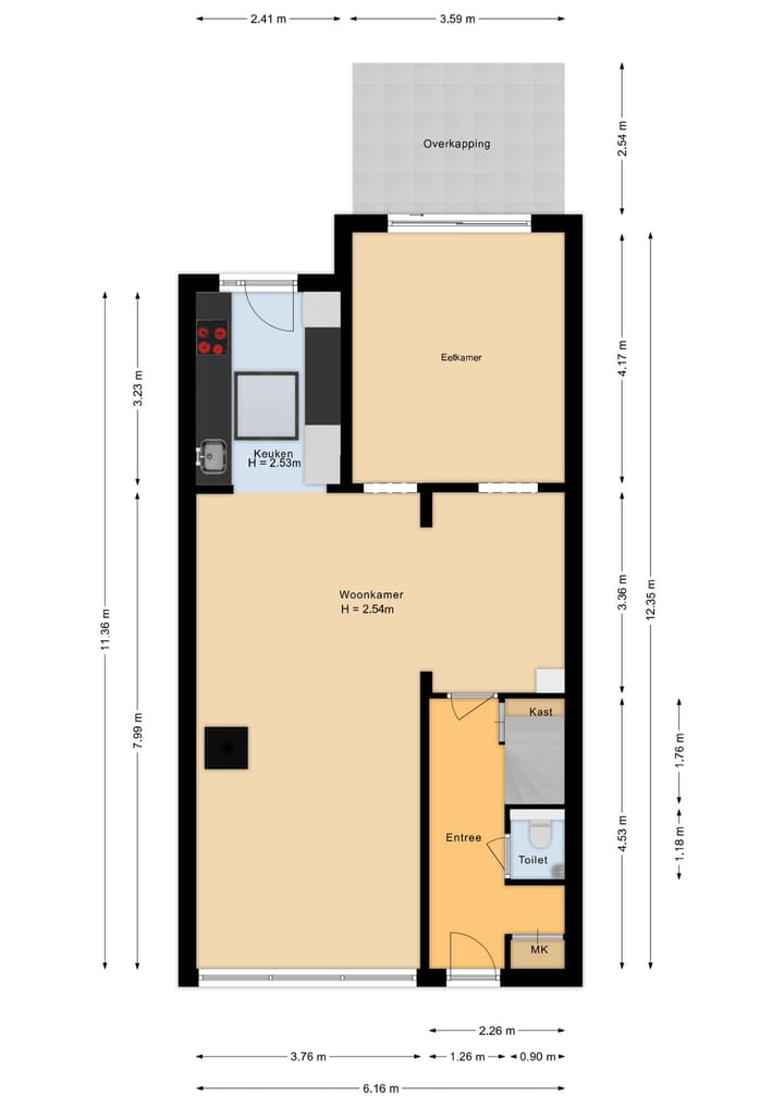
- entree/hal met garderobe-nis, meterkast, betegeld toilet, trapkast en gerenoveerde trapopgang
- L-vormige woonkamer (ca 38 m2) met moderne CV-pelletkachel (2020)
- aangebouwde tuinkamer (ca 15 m2) met schuifpui naar het terras
- woonkamer en tuinkamer hebben dus een gezamenlijk vloeroppervlakte van ca. 53 m2
- aangebouwde keuken, afm. ca. 3.23 x 2.41 m. met deur naar de tuin, lichtkoepel en een aan 2 zijden opgestelde moderne keukeninrichting (2019) voorzien van vaatwasser, koelkast, inductiekookplaat, afzuigkap, combistoomoven en Quooker-kraan met extra gekoeld water en bruisfunctie
Eerste verdieping:
- overloop
- slaapkamer 1, afm. ca. 4.35 x 3.74 m.
- slaapkamer 2, afm. ca. 3.73 x 3.51 m.
- slaapkamer 3, afm. ca. 3.35 x 2.28 m.
- tot plafond betegelde, moderne badkamer (2023), afm. ca. 2.49 x 2.25 m. met ruime inloopdouche, dubbel wastafelmeubel met extra kastruimte, hangend toilet, extra elektrische vloerverwarming en badkamerkachel als bijverwarming
Tweede verdieping:
- vaste trap met gerenoveerde traptreden
- voorzolder met aparte bergruimte, dakraam, kleine vliering boven trap, 1 zonneboiler (elektrisch bijverwarmen mogelijk) en 1 buffervat tbv vloerverwarming
- slaapkamer 4, afm. ca. 5.49/3.92 x 3.73 m. voorzien van 2 dakkapellen en aansluitingen t.b.v. wasmachine en droger
Tuin:
de op het westen gesitueerde stadstuin is voorzien van sierbestrating, beplantingen, stenen berging (afm. ca 14 m2) met elektra en een achterom. In de tuin is aan de tuinkamer een mooie terrasoverkapping van ca. 4.00 x 2.50 m. geplaatst.
Bijzonderheden:
- kunststof kozijnen met Triple-beglazing
- spouwmuurisolatie
- alle platte daken geïsoleerd en dakbedekking vernieuwd
- 11 zonnepanelen voor totaal 4200 wp, jaarlijkse opbrengst ca 3500
- geheel gasloos, dus toekomstbestendig
- vloerverwarming op alle verdiepingen, verwarming middels cv-pelletkachel incl. Buffervat
- warm water via zonneboiler
- op loopafstand van centrum, alle voorzieningen op korte afstand aanwezig
- rondom elektrische (evt op afstand-)bedienbare rolluiken
Kenmerken
Overdracht
- Laatste vraagprijs
- € 395.000 kosten koper
- Vraagprijs per m²
- € 2.616
- Status
- Verkocht
Bouw
- Soort woonhuis
- Eengezinswoning, tussenwoning
- Soort bouw
- Bestaande bouw
- Bouwjaar
- 1960
- Soort dak
- Zadeldak bedekt met pannen
Oppervlakten en inhoud
- Gebruiksoppervlakten
- Wonen
- 151 m²
- Gebouwgebonden buitenruimte
- 9 m²
- Externe bergruimte
- 14 m²
- Perceel
- 168 m²
- Inhoud
- 511 m³
Indeling
- Aantal kamers
- 6 kamers (4 slaapkamers)
- Aantal badkamers
- 1 badkamer en 1 apart toilet
- Badkamervoorzieningen
- Dubbele wastafel, inloopdouche, toilet, en wastafelmeubel
- Aantal woonlagen
- 2 woonlagen en een zolder
- Voorzieningen
- Mechanische ventilatie, natuurlijke ventilatie, rolluiken, rookkanaal, schuifpui, zonnecollectoren, en zonnepanelen
Energie
- Energielabel
- A
- Isolatie
- Volledig geïsoleerd
- Verwarming
- Pelletkachel en gehele vloerverwarming
- Warm water
- Zonneboiler
Kadastrale gegevens
- ETTEN-LEUR L 5320
- Kadastrale kaart
- Oppervlakte
- 168 m²
- Eigendomssituatie
- Volle eigendom
Buitenruimte
- Ligging
- In centrum en in woonwijk
- Tuin
- Achtertuin en voortuin
- Achtertuin
- 42 m² (6,50 meter diep en 6,50 meter breed)
- Ligging tuin
- Gelegen op het westen bereikbaar via achterom
Bergruimte
- Schuur/berging
- Vrijstaande stenen berging
- Voorzieningen
- Elektra
Parkeergelegenheid
- Soort parkeergelegenheid
- Parkeervergunningen
Foto's 45
© 2001-2025 funda












































