
Omschrijving
Deze nette en goed onderhouden woning met maar liefst 4 slaapkamers is nu te koop! De woning heeft een sfeervolle woonkamer met vloerverwarming, een moderne open keuken, en een fijne tuin. Met grotendeels kunststof kozijnen en 12 zonnepanelen is de woning zeker energiezuinig! Deze woning is gelegen in een rustige, kindvriendelijke buurt met alle voorzieningen dichtbij. Ben je nieuwsgierig geworden naar deze woning? Bel ons dan om een bezichtiging in te plannen.
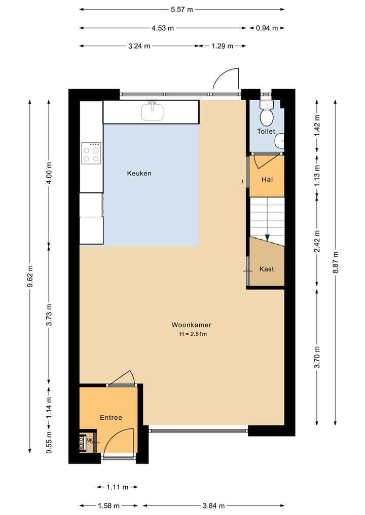
Begane grond – woonkamer met moderne open keuken
We komen de woning binnen via de voordeur. In de hal hebben we toegang tot de meterkast en de woonkamer.
We lopen door naar de woonkamer. De woonkamer is ruim van opzet en staat in open verbinding met de keuken. Zowel van de voor- als van de achterzijde komt er veel zonlicht de woning binnen. In de woonkamer vinden we de trapkast met bergruimte. Middels een mooie schuifdeur is de geheel betegelde toiletruimte en de trapopgang te bereiken. De achtertuin is tevens bereikbaar via een aparte deur.
De moderne keuken is recentelijk vernieuwd en helemaal van deze tijd. Er is voldoende bergruimte in de lades en onderkasten. Daarnaast heeft de keuken een koelkast, een vriezer, een 4-pits inductiekookplaat met een ingebouwde afzuigkap, een combi-oven/magnetron, een vaatwasser en een Quooker. In de keuken kunt u heerlijk tafelen met vrienden en familie.
1e verdieping met 3 goede slaapkamers
We lopen via de vaste trapopgang door naar de 1e verdieping. Vanaf de overloop hebben we toegang tot de badkamer en 3 slaapkamers.
2 Slaapkamers bevinden zich aan de voorzijde van de woning en de kleinste hiervan heeft een vaste kast. De 3e slaapkamer bevindt zich aan de achterzijde en heeft een fijn uitzicht over de achtertuin.
De volledig betegelde badkamer heeft een ligbad, douche (beide met handdouche en thermostaatkraan), een toilet, een dubbele wastafel met meubel en een radiator.
2e verdieping met een ruime 4e slaapkamer
Via een vaste trap komen we op de 2e verdieping. Hier bevinden zich de aansluitingen t.b.v. de wasapparatuur en de omvormer van de zonnepanelen. De woning beschikt namelijk over 12 zonnepanelen. Tevens is er nog bergruimte achter de schotten. Vanaf de overloop hebben we toegang tot de 4e slaapkamer.
De slaapkamer is ruim en voorzien van een groot dakraam. Via een deur is de berging te bereiken. Hier kunt u veel spullen opslaan en hangt de c.v. combiketel (AWB, 2015). Ook in deze slaapkamer is er voldoende bergruimte aanwezig achter de schotten.
Gezellige achtertuin met ruime berging
De woning heeft een nette voor- en achtertuin. De gezellige achtertuin ligt op het noordoosten en is voorzien van bestrating, borders en kunstgras. Via de schuifdeur achterin de tuin is de overkapping bereikbaar. Vanuit hier komen we bij de berging en de brandgang. De berging heeft elektra.
Algemeen
- De woning heeft betonnen verdiepingsvloeren.
- De woning is grotendeels voorzien van kunststof kozijnen. Het kozijn van de toiletruimte en het dakraam op de 2e verdieping zijn van hout.
- De woning heeft 12 zonnepanelen.
- De slaapkamers en de keuken zijn voorzien van horren.
- De begane grond is voorzien van een plavuizen vloer met vloerverwarming.
- De slaapkamers op de 1e verdieping zijn voorzien van een laminaatvloer. De badkamer is betegeld.
- De overloop van de 1e verdieping en de gehele 2e verdieping heeft vloerbedekking.
- Er is voldoende parkeergelegenheid aanwezig in de straat en in de directe omgeving.
- De woning ligt in een kindvriendelijke woonwijk op loopafstand van diverse speelgelegenheden.
- Scholen, het centrum van Etten-Leur, diverse sportaccommodaties, zwembad De Banakker, Cultuurhuis De Nobelaer en de uitvalswegen van en naar Etten-Leur zijn dichtbij.
De Grient
Met een park als middelpunt en veel groen is De Grient een fijne wijk om te wonen. Het is er ook rustig. Dat komt omdat de Wildbaan de doorgaande weg is en de overige straten vooral bestemmingsverkeer. In de wijk wonen veel jonge gezinnen met kinderen die in het park aan de Wildbaan naar hartenlust kunnen spelen. Zo ook in de verschillende speeltuintjes die in deze wijk te vinden zijn. De Grient is een jaren tachtig-wijk met voornamelijk eengezinswoningen, maar er zijn ook appartementen en vrijstaande villa’s. De Grient heeft geen eigen voorzieningen, maar het centrum van Etten-Leur is dichtbij. Hier vindt u onder andere supermarkten voor de dagelijkse boodschappen, maar ook scholen, kinderopvang, horecagelegenheden en een uitgebreid winkelaanbod. Het NS-station ligt op loop-/fietsafstand van De Grient. Vanwege de goede bereikbaarheid van de wijk, rijdt u ook vlot op de snelweg richting Breda, Roosendaal of Antwerpen.
Wonen in Etten-Leur
Waar in Etten-Leur u ook gaat wonen: dagelijkse voorzieningen zijn altijd binnen handbereik. Van scholen (basis en middelbaar), kinderdagverblijven en buitenschoolse opvang tot ambachtelijke bakkers, slagerijen en supermarkten voor de dagelijkse boodschappen. Verder is het sport- en beweegaanbod binnen de gemeente Etten-Leur groot. Het openbaar vervoer is goed geregeld. Binnen de stad zijn goede busverbindingen tussen de wijken en er is een NS-station met een Intercity-verbinding richting Roosendaal of Breda. Reist u liever met de auto, dan bent u altijd binnen vijftien minuten op de snelweg. Uitgebreid winkelen kan in Etten-Leur naar hartenlust. Grote ketens zijn vertegenwoordigd, maar het centrum is ook rijk aan andere leuke en unieke winkels/boetieks. Tussendoor of na afloop een hapje eten of drinken? Dat kan in één van de vele lunchrooms en restaurants. Etten-Leur bruist. De evenementenkalender is dan ook rijkelijk gevuld. Tel daar de bioscoop en cultuurhuis De Nobelaer bij op en kom tot de conclusie dat in Etten-Leur altijd iets te beleven is. Houdt u van natuur? Ontdek dan al wandelend of met de fiets de prachtige nabijgelegen natuurgebieden. Etten-Leur heeft ook een gezellige jachthaven met directe aansluiting op de vaarwegen naar Breda, Oosterhout, de Biesbosch, Dinteloord en het Volkerak.
Verkoopvoorwaarden
Asbestclausule
Bij woningen gebouwd voor 1 juli 1993 was het normale praktijk asbesthoudende materialen te verwerken in o.a. (rook)kanalen, dak(beschot), scheidingswanden, gevelpanelen, nabij verwarmings- en warmwatertoestellen en in vloerbedekking. Koper verklaart ermee bekend te zijn dat er wellicht asbesthoudende materialen zijn verwerkt.
Het is koper bekend dat bij eventuele verwijdering van asbesthoudende materialen op grond van milieuwetgeving speciale maatregelen in acht dienen te worden genomen en vrijwaart verkoper voor alle aansprakelijkheid die uit de aanwezigheid in en/of de verwijdering van enig asbest uit de desbetreffende onroerende zaak kan voortvloeien.
Ouderdomsclausule
De ouderdomsclausule zal voor deze woning in de koopakte worden opgenomen omdat de onroerende zaak meer dan 45 jaar oud is, wat betekent dat de eisen die aan de bouwkwaliteit gesteld mogen worden aanzienlijk lager liggen dan bij de nieuwe woningen. Koper kan zich hierdoor niet beroepen op het feit dat deze woning afwijkt van de huidige bouwvoorschriften.
Meetinstructie NEN2580
De Meetinstructie is gebaseerd op de NEN2580. De Meetinstructie is bedoeld om een meer eenduidige manier van meten toe te passen voor het geven van een indicatie van de gebruiksoppervlakte. De Meetinstructie sluit verschillen in meetuitkomsten niet volledig uit, door bijvoorbeeld interpretatieverschillen, afrondingen of beperkingen bij het uitvoeren van de meting. Uitgangspunt blijft altijd; “wat u ziet is wat u koopt” en de objectinformatie is van lagere prioriteit.
Rechtsgeldige koopovereenkomst pas na ondertekening
Een mondelinge overeenstemming tussen de particuliere verkoper en de particuliere koper is niet rechtsgeldig. Dit wil zeggen dat er pas sprake is van een rechtsgeldige koop als de particuliere verkoper en de particuliere koper de koopovereenkomst hebben ondertekend. Dit vloeit voort uit artikel 7:2 Burgerlijk Wetboek. Een bevestiging van de mondelinge overeenstemming per e-mail of een toegestuurd concept van de koopovereenkomst wordt tevens niet gezien als een rechtsgeldige overeenkomst.
Waarborgsom of bankgarantie
Omdat Agnes Tomesen Makelaardij is aangesloten bij de NVM wordt gebruik gemaakt van de modelkoopovereenkomst zoals deze is vastgesteld door de NVM, VBO, de Consumentenbond en de Vereniging Eigen Huis. In deze koopakte wordt door ons standaard opgenomen dat er een waarborgsom of een bankgarantie ter grootte van 10% van de koopsom gesteld dient te worden.
Verkoopdocumentatie
Deze documentatie is met zorg door ons samengesteld, echter voor de juistheid van de verstrekte informatie zijn wij in de regel in grote mate afhankelijk van derden en daarom aanvaarden de verkoper en wij geen aansprakelijkheid.
Tot slot
Wij vinden het fijn dat je de moeite neemt om de informatie van deze woning door te nemen. Als je de woning wilt bezichtigen, kan dat natuurlijk. Dan laten wij je de woning zien zoals deze op dit moment is ingericht en ingedeeld. We leiden je rond in de bestaande situatie, maar misschien heb je andere ideeën. Daar luisteren we graag naar. We leggen uit wat je met de ruimtes en de indeling kunt doen om er een nieuwe bestemming aan te geven die je past. Met beperkte middelen kun je veel bereiken. Tijdens de bezichtiging maken we dat graag duidelijk.
Als je nog vragen hebt, neem dan contact met ons op. Dat kan per e-mail of telefonisch. We zijn je graag van dienst!
Kenmerken
Overdracht
- Laatste vraagprijs
- € 375.000 kosten koper
- Vraagprijs per m²
- € 3.000
- Status
- Verkocht
Bouw
- Soort woonhuis
- Eengezinswoning, tussenwoning
- Soort bouw
- Bestaande bouw
- Bouwjaar
- 1983
- Soort dak
- Zadeldak bedekt met pannen
Oppervlakten en inhoud
- Gebruiksoppervlakten
- Wonen
- 125 m²
- Externe bergruimte
- 17 m²
- Perceel
- 186 m²
- Inhoud
- 436 m³
Indeling
- Aantal kamers
- 7 kamers (4 slaapkamers)
- Aantal badkamers
- 1 badkamer en 1 apart toilet
- Badkamervoorzieningen
- Dubbele wastafel, inloopdouche, ligbad, toilet, en wastafelmeubel
- Aantal woonlagen
- 3 woonlagen
- Voorzieningen
- Natuurlijke ventilatie en zonnepanelen
Energie
- Energielabel
- A
- Isolatie
- Dakisolatie en HR-glas
- Verwarming
- Cv-ketel en gedeeltelijke vloerverwarming
- Warm water
- Cv-ketel
- Cv-ketel
- AWB HR Combiketel CW5 (gas gestookt combiketel uit 2015, eigendom)
Kadastrale gegevens
- ETTEN-LEUR K 2532
- Kadastrale kaart
- Oppervlakte
- 186 m²
- Eigendomssituatie
- Volle eigendom
Buitenruimte
- Ligging
- Aan rustige weg en in woonwijk
- Tuin
- Achtertuin en voortuin
- Achtertuin
- 67 m² (11,51 meter diep en 5,84 meter breed)
- Ligging tuin
- Gelegen op het noordoosten bereikbaar via achterom
Bergruimte
- Schuur/berging
- Vrijstaande stenen berging
- Voorzieningen
- Elektra
Parkeergelegenheid
- Soort parkeergelegenheid
- Openbaar parkeren
Foto's 47
© 2001-2025 funda














































