
Omschrijving
Een buitenkans als deze komt zelden voorbij. Op een royaal perceel van 1.290 m² staat nu een zeer ruime bedrijfswoning mét bedrijfshal van 9 bij 25 meter te koop. Liever twee grote woningen op dit terrein? Ook dat kan — met daarnaast nog meer dan 200 m² aan opslagruimte, inclusief overheaddeur. Perfect voor ondernemers, klussers of verzamelaars. Denk aan een werkplaats, kantoor, opslag, atelier of stalling voor oldtimers. Je hebt de ruimte, het bestemmingsplan biedt mogelijkheden, en de ligging is top.
Op een mooie locatie aan de doorgaande weg tussen Garderen en Putten ligt deze keurig onderhouden vrijstaande woning met een groot vrijstaand bijgebouw (200 m²) en een 2e multifunctioneel bijgebouw (totaal 180 m²), waarvoor de mogelijkheid bestaat om hierin een TWEEDE WONING te realiseren.
De huidige bestemming van het perceel is ‘bedrijf’. Er is een vooronderzoek beoordeeld door de gemeente Barneveld waarin staat dat men bereid is mee te werken aan een wijziging van het bestemmingsplan naar wonen, met daarbij de mogelijkheid voor het realiseren van een tweede woning.
Het geheel verkeert in zeer goede staat en is voorzien van onder andere 42 zonnepanelen t.b.v. de woning. De woning beschikt over vloerverwarming op de begane grond, een stofzuigsysteem en een volledig alarm- en camerasysteem. Aan de voorzijde vindt u de oprit met een elektrische toegangspoort . Tevens is het gehele perceel omheind met hekwerk. Een ideaal object voor wie wonen en werken wil combineren op een zichtlocatie in het buitengebied.
Entree en bijkeuken
De woning is zowel via de voorzijde als via een achterom te bereiken. De bijkeuken is functioneel ingericht met een vaste kastenwand en een uitstortgootsteen – ideaal voor het opbergen van werkkleding of schoonmaakspullen. Aan de voorzijde bevindt zich de hoofdentree, waar ook de trapopgang naar de verdieping en het toilet zijn gesitueerd.
Woonkeuken
De woonkeuken is royaal opgezet en geniet van veel natuurlijk licht. De keuken is voorzien van diverse inbouwapparatuur, waaronder een vaatwasser, oven, magnetron, koel-/vriescombinatie en een elektrische kookplaat. Dankzij de dubbele tuindeuren is er een directe verbinding met de achtertuin, wat zorgt voor een fijne binnen-buitenbeleving.
Woonkamer
De woonkamer is een comfortabele leefruimte met pelletkachel en een erker met triple glas en uitzicht op de kerk en de weg richting Garderen en Putten. De entree is via de woonkamer bereikbaar, ideaal voor het ontvangen van gasten. Het plafond is gestuct en voorzien van sierlijsten. De aanwezige schoorsteen en gasaansluiting bieden mogelijkheid voor een gas- of houtkachel.
Verdieping
Op de eerste verdieping bevinden zich drie royaal ingedeelde slaapkamers, elk voorzien van draai-/kiepramen voor optimaal daglicht en ventilatie. Daarnaast is er een centraal stofzuigsysteem aanwezig op de gehele verdieping, wat bijdraagt aan extra wooncomfort en gemak. Via één van de slaapkamers is de zolder bereikbaar met een vlizotrap. De zolder biedt extra opbergruimte en daar bevindt zich de mechanische ventilatiepomp.
Badkamer
De ruime badkamer is uitgerust met elektrische vloerverwarming voor extra comfort. De inloopdouche, voorzien van een zitgedeelte, biedt voldoende ruimte, en het ligbad biedt de ideale plek om tot rust te komen.
Tuin
Rondom de woning is het buitenterrein en de tuin gelegen. Aan de zijkant van de woning is de tuin volledig bestraat, met ruimte voor een tuinset. De voorzijde is voorzien van een grasstrook en aan de achterzijde is het terrein volledig bestraat (voorzien van verlichting), wat het erf niet alleen onderhoudsvriendelijk maakt, maar ook geschikt voor groot verkeer.
Algemeen
- Woning | Energielabel A++
- Vloerverwarming op de begane grond en de badkamer
- Draadloos alarmsysteem en camera installatie
- Stofzuigsysteem
- 42 zonnepanelen t.b.v. de woning
Ligging
Dankzij de ligging aan de doorgaande weg tussen Putten en Garderen is het object uitstekend bereikbaar en geniet het van een goede zichtbaarheid. De nabijheid van de A1 en A28 zorgt voor goede verbindingen met de rest van het land. Daarnaast biedt het dorp Garderen diverse voorzieningen, waaronder winkels, horeca en recreatiemogelijkheden, wat bijdraagt aan een prettige woon- en werkomgeving.
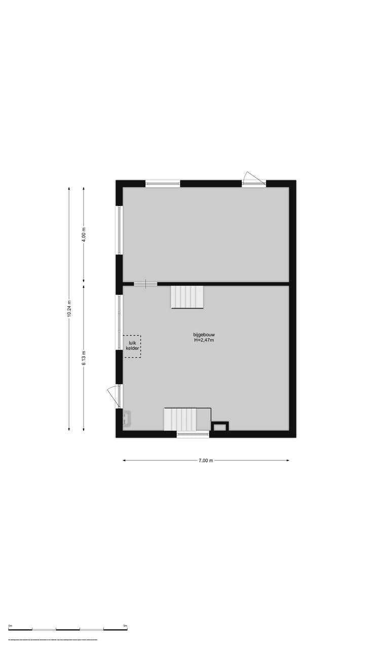
Informatie bijgebouwen:
Indeling
Het vrijstaande bijgebouw is bereikbaar via de voordeur en bestaat uit een hal met entresol. De indeling is flexibel en nu voorzien van stellingen. Aan de zijkant is een overheaddeur en voorin een kantoorruimte. Het multifunctionele bijgebouw is bereikbaar via een zijdeur of een deur aan de achterzijde. Je komt binnen in het bijgebouw dat is opgedeeld in twee ruimten. Vanuit hier leidt een trap naar zowel de verdieping als de kelder. Alle ruimten zijn naar
eigen wens in te delen.
Vloeroppervlakte
Vrijstaand bijgebouw :ca. 200 m²
Multifunctioneel bijgebouw: begane grond ca. 70 m² | verdieping ca. 40 m² | Souterrain ca. 70 m²
Voorzieningen
• Overheaddeur
• 42 zonnepanelen t.b.v. de woning
• Ruim buitenterrein
• Krachtstroom (3x40 Ampère)
• Winter/warm direct gestookte gasheater
Algemeen
Bouwjaar vrijstaand bijgebouw: 1997
Bouwjaar multifunctioneel bijgebouw: 1950 (grotendeels gerenoveerd)
Bouwjaar woning: 1997
De woning beschikt over energielabel A++
Bestemming
Enkelbestemming Bedrijf
Overige condities
De woning en de bijgebouwen worden uitsluitend samen te koop aangeboden en zijn niet afzonderlijk te koop.
Aanvaarding
In overleg.
DISCLAIMER
De vermelde woonoppervlakte is inclusief het multifunctionele bijgebouw. Dit bijgebouw biedt mogelijkheden om tot tweede woonruimte te worden gerealiseerd, mits wijziging van het bestemmingsplan.
Kenmerken
Overdracht
- Laatste vraagprijs
- € 1.195.000 kosten koper
- Vraagprijs per m²
- € 4.492
- Status
- Verkocht
Bouw
- Soort woonhuis
- Eengezinswoning, vrijstaande woning (bedrijfs- of dienstwoning)
- Soort bouw
- Bestaande bouw
- Bouwperiode
- 1991-2000
- Soort dak
- Zadeldak bedekt met pannen
Oppervlakten en inhoud
- Gebruiksoppervlakten
- Wonen
- 266 m²
- Overige inpandige ruimte
- 72 m²
- Externe bergruimte
- 201 m²
- Perceel
- 1.290 m²
- Inhoud
- 685 m³
Indeling
- Aantal kamers
- 5 kamers (3 slaapkamers)
- Aantal badkamers
- 1 badkamer en 2 aparte toiletten
- Badkamervoorzieningen
- Dubbele wastafel, inloopdouche, ligbad, en vloerverwarming
- Aantal woonlagen
- 2 woonlagen en een zolder
- Voorzieningen
- Alarminstallatie, dakraam, rookkanaal, en zonnepanelen
Energie
- Energielabel
- A++
- Isolatie
- Dakisolatie, dubbel glas, muurisolatie en vloerisolatie
- Verwarming
- Cv-ketel, elektrische verwarming, pelletkachel en gedeeltelijke vloerverwarming
- Warm water
- Cv-ketel
- Cv-ketel
- Bosch (gas gestookt combiketel uit 2011, eigendom)
Kadastrale gegevens
- GARDEREN B 1899
- Kadastrale kaart
- Oppervlakte
- 1.290 m²
- Eigendomssituatie
- Volle eigendom
Buitenruimte
- Ligging
- In bosrijke omgeving en in woonwijk
- Tuin
- Tuin rondom
Parkeergelegenheid
- Soort parkeergelegenheid
- Op eigen terrein
Foto's 66
© 2001-2025 funda

































































