
Omschrijving
In het dorpshart van Gemert, met aan de voorzijde de groene, autoloze binnentuin, is deze 2-onder-1-kap woning gelegen. De woning is in 2020 gebouwd met hoogwaardige materialen en beschikt over een compleet isolatiepakket, zonnepanelen (energielabel A) en airco’s. De moderne keuken- en badkamerinrichting en 4 slaapkamers maken het plaatje compleet.
Begane grond:
De entree van de woning bevindt zich aan de voorkant aan de parkzijde. De hal/ entree is voorzien van een PVC vloer, stucwerk wanden en - plafond. In de hal bevinden zich de meterkast met voldoende groepen en glasvezelaansluiting alsmede de toiletruimte. De toiletruimte is half hoog betegeld en is voorzien van een wandcloset en fonteintje. De toiletruimte kan mechanisch worden geventileerd.
De prachtige keuken is aan de voorzijde van de woning gelegen met een fraai uitzicht over de grote, groene binnentuin. De keukeninrichting in lichte kleurstelling is opgesteld in een hoek met een Dekton aanrechtblad met spoelbak en quooker en uitgerust met de volgende inbouwapparatuur; 5-pits gaskookplaat (met voorbereidingen voor een inductiekookplaat), afzuigkap, oven, koel-/vriescombinatie en een vaatwasser. De keuken is voorzien van meer dan voldoende kastruimte.
Zowel de keuken als de woonkamer hebben eenzelfde afwerking met een fraaie PVC vloer, stucwerk wanden en - plafond. De gashaard maakt deze ruimte tot een gezellig en sfeervol geheel. De aanwezige airco geeft de volledige begane grond extra verkoeling of verwarming. Vanwege de schuifpui aan de achterzijde is er veel natuurlijk daglicht en is er een directe connectie met de achtertuin. Verder is er een praktische trapkast. De open trapopgang geeft toegang tot de 1e verdieping.
1e Verdieping:
Vanuit de overloop is er toegang tot 3 slaapkamers en de badkamer. De volledige 1e verdieping is voorzien van een PVC vloer en heeft stucwerk op wanden en plafond.
Slaapkamer 1 en 2 zijn aan de achterzijde van de woning gelegen en hebben een afmeting van respectievelijk 2.68 x 2.05m en 3.97 x 2.51m. Slaapkamer 1 is momenteel ingericht als kledingkamer en is voorzien van een grote, vaste kastenwand.
Slaapkamer 3 is aan de voorzijde gelegen en heeft een afmeting van 4.48 x 2.51m. De slaapkamer beschikt over een airco.
De moderne badkamer is betegeld in een lichte kleurstelling en uitgerust met een ligbad met douchegelegenheid, wastafel in meubel met verwarmde spiegel en een wandcloset. De designradiator en vloerverwarming zorgen voor extra warmte. De badkamer kan zowel natuurlijk als mechanisch worden geventileerd.
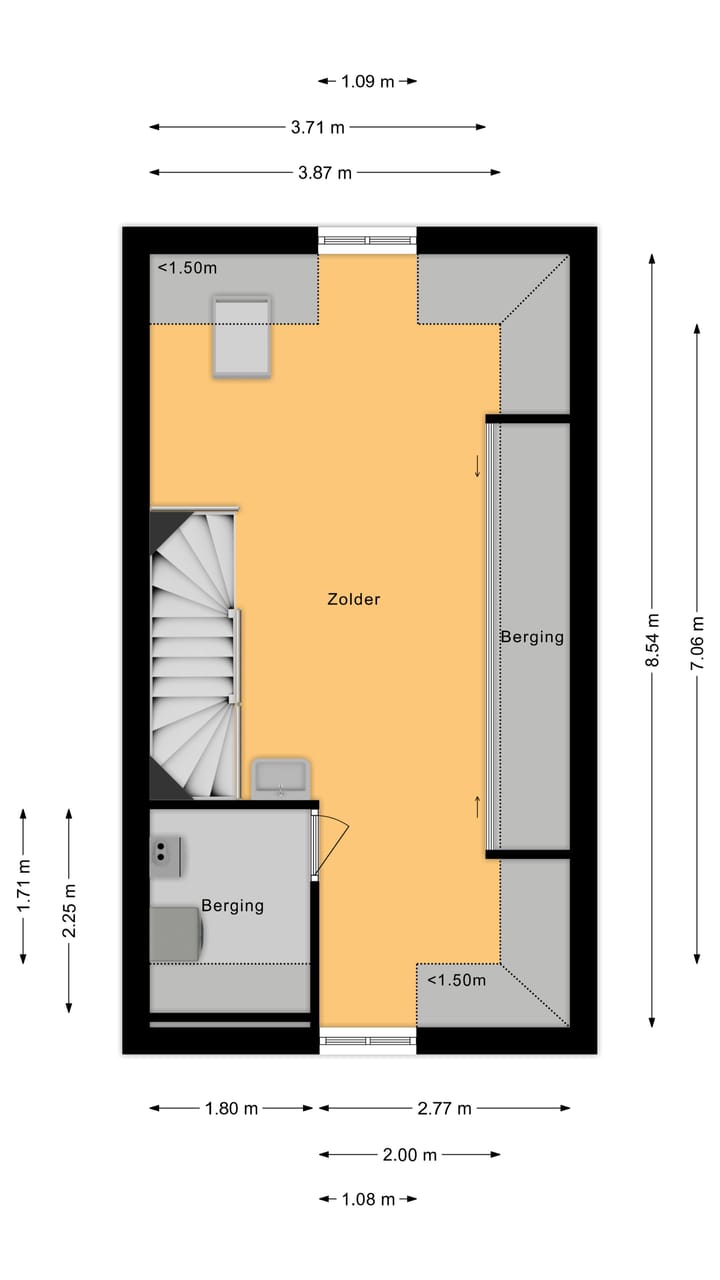
2e Verdieping:
Middels een vaste trap is de ruime 2e verdieping te bereiken. De open zolder is afgewerkt met een PVC vloer en voorzien van meerdere schuifkasten in de knieschotten en een vaste wastafel. De beide dakkapellen alsmede het dakvenster geven deze ruimte extra licht en volume. Een prima ruimte welke bruikbaar is voor meerdere doeleinden; slaapkamer, kantoorruimte, etc.. In de berging zijn de witgoedaansluitingen gesitueerd alsmede de opstelling t.b.v. de c.v.-combiketel (Intergas HR, 2020) en de unit t.b.v. de mechanische ventilatie.
Tuin:
De achtertuin is grotendeels onderhoudsvriendelijk aangelegd waardoor er een ruimtelijk geheel ontstaat. Ter hoogte van de achtergevel bevindt zich een terras met zonneluifel. Verder is de tuin aangelegd met sierbestrating en borders met vaste beplanting. Achter in de tuin is een houten berging gerealiseerd voorzien van elektra met aansluitend een overkapping. Het perceel is op het noorden gesitueerd en beschikt over veel privacy. De erfafscheiding bestaat aan de ene zijde uit houten schuttingdelen en de andere zijde uit een mooie dichtbegroeide haag. Aan de achterzijde is het perceel bereikbaar middels een grote, houten, elektrisch bedienbare schuifpoort.
Bijzonderheden:
- De woning is gelegen aan de autoloze binnentuin van plan 7th Heaven Nazareth met een variatie aan type woningen.
- Perfect afgewerkte en instapklare woning.
- Woonoppervlakte: ca. 116 m², inhoud: ca. 449 m³.
- Gelegen op een privacybiedend perceel van 144 m².
- 4 Slaapkamers verdeeld over 2 verdiepingen.
- De volledige woning is voorzien van vloerverwarming.
- Op de begane grond alsmede de 1e verdieping zijn 2 airco’s gesitueerd voor verkoeling en verwarming.
- Volledig isolatiepakket, isolerende beglazing en 9 zonnepanelen. Energielabel A.
- Parkeerplaats op eigen terrein met elektrisch bedienbare poort. Tevens volop parkeergelegenheid in de directe nabijheid.
Kenmerken
Overdracht
- Laatste vraagprijs
- € 475.000 kosten koper
- Vraagprijs per m²
- € 4.095
- Status
- Verkocht
Bouw
- Soort woonhuis
- Eengezinswoning, 2-onder-1-kapwoning
- Soort bouw
- Bestaande bouw
- Bouwjaar
- 2020
- Soort dak
- Zadeldak bedekt met pannen
Oppervlakten en inhoud
- Gebruiksoppervlakten
- Wonen
- 116 m²
- Externe bergruimte
- 9 m²
- Perceel
- 144 m²
- Inhoud
- 449 m³
Indeling
- Aantal kamers
- 5 kamers (3 slaapkamers)
- Aantal badkamers
- 1 badkamer en 1 apart toilet
- Badkamervoorzieningen
- Ligbad, toilet, vloerverwarming, wastafel, en wastafelmeubel
- Aantal woonlagen
- 3 woonlagen
- Voorzieningen
- Airconditioning, dakraam, glasvezelkabel, mechanische ventilatie, schuifpui, en zonnepanelen
Energie
- Energielabel
- A
- Isolatie
- Dakisolatie, dubbel glas, muurisolatie en vloerisolatie
- Verwarming
- Cv-ketel, gashaard en gehele vloerverwarming
- Warm water
- Cv-ketel
- Cv-ketel
- Intergas (gas gestookt combiketel uit 2020, eigendom)
Kadastrale gegevens
- GEMERT M 5644
- Kadastrale kaart
- Oppervlakte
- 144 m²
- Eigendomssituatie
- Volle eigendom
Buitenruimte
- Ligging
- Aan park, in centrum en vrij uitzicht
- Tuin
- Achtertuin, voortuin en zonneterras
- Achtertuin
- 80 m² (15,25 meter diep en 5,25 meter breed)
- Ligging tuin
- Gelegen op het noorden bereikbaar via achterom
Bergruimte
- Schuur/berging
- Vrijstaande houten berging
- Voorzieningen
- Elektra
Garage
- Soort garage
- Parkeerplaats
Parkeergelegenheid
- Soort parkeergelegenheid
- Parkeervergunningen
Foto's 49
© 2001-2026 funda
















































