
Omschrijving
Een verborgen parel in het bruisende centrum van Gorinchem!
De historische vesting van Gorinchem, of Gorcum in de volksmond, wordt van oudsher doorsneden door de rivier de Linge waardoor de stad verdeeld wordt in de Bovenstad en de Benedenstad. In de Benedenstad, ten westen van de Linge, vind je de Molenstraat, één van de oudste straten van de stad met eenrichtingsverkeer. De straat kenmerkt zich door de vele monumentale gebouwen die de rijke historie van de stad belichamen. Het Groothuis is één van deze prachtige gebouwen en deed in vroeger tijden dienst als R.C. Armen- en Weeshuis met een eigen kapel waar men zijn of haar hart kon luchten en verlichting kon zoeken. In diezelfde kapel is tegenwoordig een gerieflijk en instapklaar appartement gerealiseerd: Molenstraat 38-B. Lees en kijk snel verder en laat je betoveren door dit prachtige appartement!
Op de begane grond kom je door de karakteristieke voordeur in de hal met meterkast en deur naar de inpandige berging van circa 5 m². De open trap brengt je naar de eerste verdieping. De gang met keurig gestucte wanden is bekleed met een fraaie laminaatvloer. De moderne, in 2020 vernieuwde toiletruimte met hangend closet en fonteinmeubeltje is geheel betegeld. In de ruime inpandige berging zijn de witgoedaansluitingen gerealiseerd. Tevens vind je hier de opstelling van de cv-ketel (Intergas Xtreme 36CW5 | 2024).
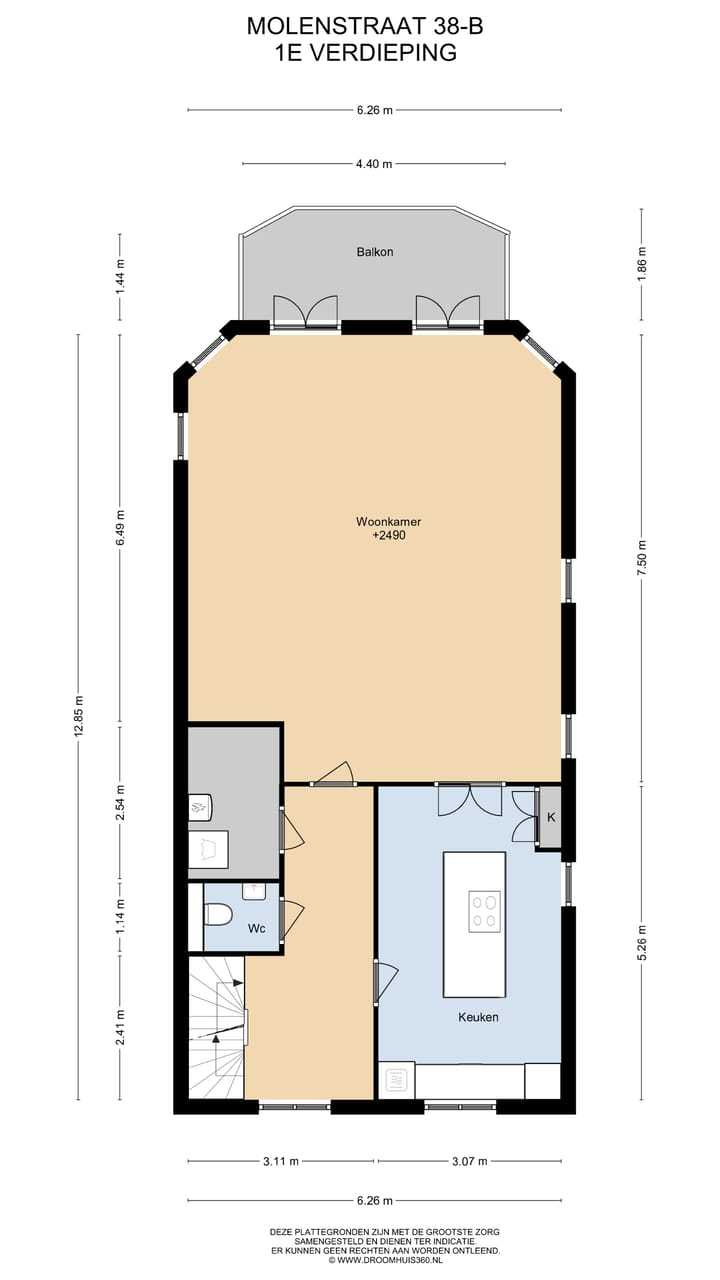
Wanneer je de woonkamer binnenstapt, word je verrast door de hoeveelheid licht en ruimte. Door de vorm van de ruimte kun je goed zien dat je je in een voormalige kapel bevindt. Er zijn twee dubbele openslaande deuren naar het op het westen gelegen balkon en de aanwezige haard staat garant voor sfeer en gezelligheid. De wanden in de woonkamer zijn allen voorzien van strak stucwerk en de vloer is bekleed met een mooie laminaatvloer in lichte kleurstelling. De keuken en suite met gloednieuwe gietvloer is ingericht met een keukenopstelling van het merk Next uit 2020 en is uitgerust met een kookeiland en inbouwapparatuur van een hoge kwaliteit. Zo zijn er een inductiekookplaat met geïntegreerd afzuigsysteem (Miele), een wijnklimaatkast (Miele), een Quooker, een koffiemachine, een vaatwasser, een grote koelkast en een vriezer (allen Siemens). Mooi detail in de keuken zijn de authentieke kasten met geslepen facetglas die na de renovatie bewaard gebleven zijn.
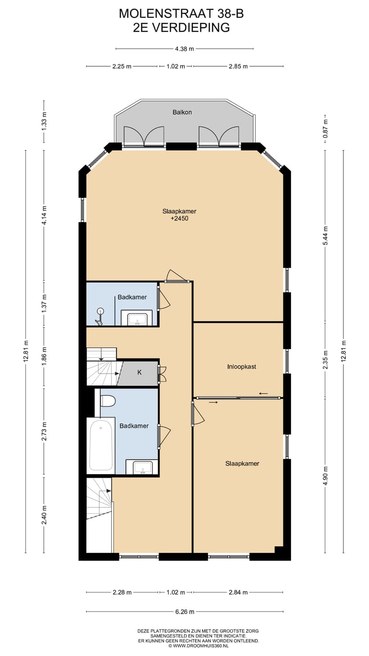
Op de tweede verdieping vind je twee slaapkamers, twee badkamers en een ruime inloopkast. Tevens biedt het ruimte aan een fijne werkplek. De masterbedroom aan de achterzijde van het appartement is zeer royaal en grenst aan een balkon dat ook weer door twee dubbele openslaande deuren te betreden is. De kamer is voorzien van airconditioning en heeft veel natuurlijke lichtinval. De vloeren zijn bekleed met fraai laminaat in lichte kleurstelling.
De tweede slaapkamer beschikt over een op maat gemaakte inloopkast en ook hier is er weer veel natuurlijke lichtinval.
Er zijn maar liefst twee badkamers, beiden volledig betegeld in moderne en rustige kleurstelling. De eerste badkamer is in 2021 gedeeltelijk vernieuwd en is uitgerust met een ligbad met douche en een wastafelmeubel met waskom met daarboven een spiegel met verlichting en een tweede toilet. De tweede badkamer stamt uit 2024 en heeft een ruime inloopdouche met moderne wand van glas met staal. Er zijn zowel een regen als- een handdouche. Naast de inloopdouche is er ook hier weer een wastafelmeubel met waskom en daarboven een verlichte spiegel.
Tot slot kom je op de derde verdieping in de nok van het appartement waar nog eens twee slaapkamers gerealiseerd zijn. Doordat er in beide kamers een groot dakraam aangebracht is, is er ook hier weer veel natuurlijke lichtinval en ventilatiemogelijkheid.
Naast de twee balkons die bij het appartement horen, is er een grote, gezamenlijke tuin op de begane grond. Aansluitend is er een parkeerterrein. Groot voordeel is dat de eigenaar van dit appartement beschikt over een eigen, overdekte parkeerplaats met oplaadpunt voor de elektrische auto.
Het appartement is de afgelopen jaren met veel liefde en zorg bewoond, onderhouden en opgeknapt en dat zie je meteen. Er zijn echter ook details die je niet meteen ziet, maar die wel veel wooncomfort bieden. Zo is de elektrotechnische installatie in 2020 volledig vernieuwd waarbij ook 15 zonnepanelen die ieder een eigen omvormer hebben. In de 2024 is er een zuinige combiketel geplaatst en zijn de rookgaskanalen vernieuwd. Ook is in dat jaar de mechanische afzuiginstallatie met vochtsensoren geplaatst. De meeste radiatoren zijn uitgerust met slimme thermostaatknoppen waardoor ze in iedere ruimte apart te programmeren zijn. Verder is er alles aan gedaan om het appartement te beveiligen met 3-sterren sloten, camerabewaking en een videofooninstallatie.
Het appartement maakt deel uit van een gezonde Vereniging van Eigenaars. De servicekosten ten behoeve hiervan bedragen circa € 72,- per maand.
Gorinchem is in 2021 verkozen tot mooiste vestingstad van Nederland en daar zijn de bewoners trots op! Het rijke historische verleden van de vesting is terug te vinden in de vestingwal met zijn bastions uit de 16e eeuw, de pittoreske markt en de vele karakteristieke straatjes en steegjes. De Molenstraat is zo'n straat in de benedenstad. Het bruisende hart van de stad met grote diversiteit aan winkels en horecagelegenheden ligt op nog geen 5 minuten wandelafstand. Voor een gezellige picknick is het park op Buiten de Waterpoort de uitgelezen plek. Gorinchem is een populaire woonlocatie door de centrale ligging in Nederland. Met zowel aansluitingen op de A15 als de A27 en de makkelijk bereikbare A2 zijn grote steden als Utrecht, Rotterdam en Breda in ongeveer
40 minuten bereikbaar.
Kortom: Molenstraat 38-b is een opeenstapeling van sfeer, ruimte en wooncomfort! Wil jij dit alles zelf ervaren? Bel ons snel om een afspraak voor bezichtiging te maken. Wij laten je dit prachtige appartement maar al te graag zien!
Kenmerken
Overdracht
- Laatste vraagprijs
- € 725.000 kosten koper
- Vraagprijs per m²
- € 3.662
- Status
- Verkocht
- Bijdrage VvE
- € 72,00 per maand
Bouw
- Soort appartement
- Beneden + bovenwoning (appartement)
- Soort bouw
- Bestaande bouw
- Bouwjaar
- 1867
- Specifiek
- Beschermd stads- of dorpsgezicht
- Soort dak
- Tentdak bedekt met pannen
Oppervlakten en inhoud
- Gebruiksoppervlakten
- Wonen
- 198 m²
- Gebouwgebonden buitenruimte
- 13 m²
- Inhoud
- 578 m³
Indeling
- Aantal kamers
- 5 kamers (4 slaapkamers)
- Aantal badkamers
- 2 badkamers
- Badkamervoorzieningen
- Inloopdouche, 2 wastafelmeubels, ligbad, toilet, en vloerverwarming
- Aantal woonlagen
- 3 woonlagen
- Voorzieningen
- Airconditioning, dakraam, mechanische ventilatie, TV kabel, en zonnepanelen
- Gelegen op
- Begane grond
Energie
- Energielabel
- C
- Isolatie
- Dakisolatie, HR-glas en muurisolatie
- Verwarming
- Cv-ketel en gedeeltelijke vloerverwarming
- Warm water
- Cv-ketel
- Cv-ketel
- Intergas Xtreme 36CW5 (gas gestookt combiketel uit 2024, eigendom)
Kadastrale gegevens
- GORINCHEM D 4054
- Kadastrale kaart
- Eigendomssituatie
- Volle eigendom
- GORINCHEM D 4054
- Kadastrale kaart
- Eigendomssituatie
- Volle eigendom
Buitenruimte
- Ligging
- In centrum
- Tuin
- Achtertuin
- Balkon/dakterras
- Balkon aanwezig
Bergruimte
- Schuur/berging
- Inpandig
- Voorzieningen
- Elektra
Garage
- Soort garage
- Parkeerplaats
Parkeergelegenheid
- Soort parkeergelegenheid
- Op eigen terrein
VvE checklist
- Inschrijving KvK
- Ja
- Jaarlijkse vergadering
- Ja
- Periodieke bijdrage
- Ja (€ 72,00 per maand)
- Reservefonds aanwezig
- Nee
- Onderhoudsplan
- Nee
- Opstalverzekering
- Ja
Foto's 31
© 2001-2026 funda






























